Rezydencja Horizon

Rezydencja Horizon

Powierzchnia użytkowa

437,40 m2
Powierzchnia garażu:+59,70 m2
Powierzchnia kotłowni:+5,00 m2

Cena projektu

37 900 zł

Dostępność:Indywidualnie
Ten projekt obejrzało:6191 osób

Wizualizacje

Projekt premium Rezydencja Horizon to harmonia nowoczesnej architektury i wyjątkowych wnętrz – jasnych, przestronnych i pełnych światła. Projekt Rezydencja Horizon wyróżnia się niepowtarzalnym stylem oraz dbałością o najmniejszy szczegół.

play icon

Obejrzyj film

Rezydencja Horizon - 1
Rezydencja Horizon - 2
Rezydencja Horizon - 3
Rezydencja Horizon - 4
Rezydencja Horizon - 5
Rezydencja Horizon - 6
Rezydencja Horizon - 7
Rezydencja Horizon - 8
Rezydencja Horizon - 9
Rezydencja Horizon - 10
Rezydencja Horizon - 11
Rezydencja Horizon - 12
Rezydencja Horizon - 13
Rezydencja Horizon - 14
Rezydencja Horizon - 15

Rzuty

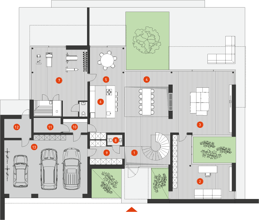
Projekt domu Rezydencja Horizon - Rzut parteru

Rzut parteru

Wersja
podstawowa
Wersja
lustrzana
Rezydencja Horizon - Rzut parteruRezydencja Horizon - Rzut parteru

Powierzchnia użytkowa290,6 m2

1HOL WEJŚCIOWY14,8 m2
2BIURO – GABINET30,7 m2
3SALON43,8 m2
4JADALNIA REPREZENTACYJNA33,9 m2
5JADALNIA15,1 m2
6KUCHNIA22,0 m2
7SPA – SIŁOWNIA – SAUNA44,6 m2
8WC1,9 m2
9GARDEROBA8,5 m2
10SPIŻARNIA4,1 m2
11POM. GOSPODARCZE – KOTŁOWNIA5,0 m2
12SCHOWEK6,4 m2
13GARAŻ59,7 m2

Projekt domu Rezydencja Horizon - Rzut piętra

Rzut piętra

Wersja
podstawowa
Wersja
lustrzana
Rezydencja Horizon - Rzut piętraRezydencja Horizon - Rzut piętra

Powierzchnia użytkowa146,8 m2

1HOL17,1 m2
2SYPIALNIA GŁÓWNA25,3 m2
3GARDEROBA8,0 m2
4ŁAZIENKA9,1 m2
5KOMUNIKACJA8,4 m2
6POKÓJ17,5 m2
7GARDEROBA3,7 m2
8GARDEROBA3,7 m2
9POKÓJ 17,5 m2
10POKÓJ GOŚCINNY18,5 m2
11ŁAZIENKA GOŚCINNA3,9 m2
12ŁAZIENKA8,1 m2
13PRALNIA6,0 m2

Informacje szczegółowe

Pow. użytkowa ogółem

502,10 m2

Ilość pokoi

5

Garaż

3-stanowiskowy

Łazienki (z toaletami)

5

Powierzchnia zabudowy

360,10 m2

Min. szerokość działki

33,55 m

Min. długość działki

30,40 m

Wysokość w kalenicy

0,00 m

Kąt nachylenia dachu

°

Powierzchnia dachu

0,00 m2

Kubatura

0,00 m3

Ogrzewanie

translations.product.gaz_heating
Zobacz dodatki podnoszące energooszczędność

Działka / Nasłonecznienie

Rezydencja Horizon - Działka / NasłonecznienieRezydencja Horizon - Działka / Nasłonecznienie

Sprawdź warunki zabudowy lub wypis z MPZP

Poza minimalnymi wymiarami działki oraz odpowiednim nasłonecznieniem, istotne są również przypisane do każdej nieruchomości tzw. Warunki Zabudowy lub ograniczenia określone w Miejscowym Planie Zagospodarowania Przestrzennego. Jeśli masz wątpliwości oferujemy BEZPŁATNĄ ANALIZĘ WARUNKÓW ZABUDOWY.

Centrum informacji

Centrum informacji

Co zawiera projekt:

  • 3 egzemplarze projektu architektoniczno-budowlanego
  • 3 egzemplarze projektu technicznego
  • analizę i charakterystykę energetyczną
  • bezpłatną zgodę na zmiany
  • kopię uprawnień architektów i branżystów

Tu znajdziesz pozostałe i niezbędne informacje dotyczące wyboru i zakupu projektu:

Przejdź do centrum informacji

Centrum informacji

Opis projektu

Rezydencja Horizon – nowoczesna willa premium z płaskim dachem i strefą spa

Rezydencja Horizon to projekt luksusowego domu jednorodzinnego o powierzchni 440 m², stworzonego z myślą o wymagających inwestorach poszukujących nowoczesnej architektury, komfortu i prestiżowego stylu życia. To willa o horyzontalnej formie, w której elegancka parterowa bryła łączy się z subtelnym piętrem, przeznaczonym na prywatną strefę sypialną.

Projekt wyróżnia się ponadczasowym designem, wysokiej jakości materiałami elewacyjnymi i dużymi przeszkleniami, które otwierają dom na ogród i naturalne światło. To idealny wybór dla osób poszukujących luksusowej rezydencji z płaskim dachem, łączącej minimalistyczną estetykę z maksymalną funkcjonalnością.

Nowoczesna bryła w harmonii z otoczeniem

Architektura Rezydencji Horizon została zaprojektowana tak, aby zapewnić mieszkańcom prywatność i prestiż. Od frontu budynek prezentuje się jako zamknięta, minimalistyczna bryła z ograniczoną liczbą przeszkleń. Dzięki temu dom zyskuje elegancki, reprezentacyjny charakter i chroni życie domowników przed wzrokiem z zewnątrz.

Zupełnie inaczej prezentuje się elewacja ogrodowa – otwarta na otoczenie, z dużymi pasmami szklenia, które sprawiają, że wnętrza są pełne światła i płynnie łączą się z tarasem oraz ogrodem. To rozwiązanie, które inwestorzy często wpisują w zapytania takie jak nowoczesny dom z dużymi przeszkleniami czy luksusowa willa z widokiem na ogród – Horizon odpowiada na te oczekiwania w 100%.

Luksusowy dom z garażem na 3 auta

Jednym z atutów projektu jest garaż na trzy samochody, w pełni zintegrowany z bryłą budynku. To rozwiązanie docenią osoby ceniące wygodę i przestrzeń – garaż ma bezpośrednie połączenie z reprezentacyjnym holem wejściowym poprzez garderobę.

Dodatkowe pomieszczenie gospodarcze w tylnej części garażu pozwala na przechowywanie sprzętu ogrodowego, rowerów czy narzędzi. To funkcjonalny element, którego często poszukują klienci wpisujący w wyszukiwarkę frazy typu dom z garażem na 3 auta czy projekty rezydencji z pomieszczeniami gospodarczymi.

Strefa dzienna – serce nowoczesnej rezydencji

Parter Rezydencji Horizon mieści rozbudowaną strefę dzienną, która spełnia zarówno funkcję reprezentacyjną, jak i codzienną. Jej centralnym punktem jest dwupoziomowa jadalnia z dużym stołem na 12 osób.

Przestrzeń dzienna została podzielona na kilka funkcjonalnych części:

  • nowoczesną kuchnię z wyspą i jadalnią dzienną,
  • przestronny salon oddzielony dwustronnym kominkiem,
  • elegancki gabinet i prywatną pracownię z dostępem do zielonego patio.

Wewnętrzne patio nie tylko doświetla wnętrza, ale również wprowadza naturę do środka budynku – rozwiązanie typowe dla ekskluzywnych willi premium.

Strefa relaksu – domowe spa i siłownia

Horizon to projekt, który łączy codzienny komfort z luksusem rodem z najlepszych resortów. Na parterze zaplanowano rozbudowaną strefę spa z sauną i siłownią, a na życzenie inwestora istnieje możliwość dodania basenu wewnętrznego.

To idealna odpowiedź na potrzeby osób, które poszukują projektów domów z siłownią i spa lub marzą o rezydencji z prywatnym wellness. Dzięki temu inwestor otrzymuje przestrzeń, która pozwala zadbać o zdrowie, relaks i równowagę – bez wychodzenia z domu.

Ekskluzywna strefa nocna na piętrze

Piętro rezydencji pełni funkcję w pełni prywatnej części nocnej. Znajduje się tu:

  • luksusowa sypialnia master z łazienką i garderobą,
  • pokoje dzieci z własnymi garderobami i łazienką,
  • pokój gościnny z prywatną łazienką.

Wnętrza piętra otwierają się na antresolę z widokiem na jadalnię i reprezentacyjny hol, co tworzy unikalny efekt przestrzennej spójności. To układ typowy dla nowoczesnych rezydencji premium, które łączą intymność prywatnych stref z otwartością i prestiżem części wspólnych.

Technologia i energooszczędność

Nowoczesny luksus to nie tylko estetyka i przestrzeń, ale również zaawansowane rozwiązania technologiczne. W Rezydencji Horizon przewidziano:

  • wentylację mechaniczną z rekuperacją,
  • pompę ciepła do ogrzewania i chłodzenia,
  • duże przeszklenia o podwyższonej izolacyjności,
  • możliwość integracji systemów smart home.

Dzięki temu inwestorzy otrzymują energooszczędny dom nowoczesny, który zapewnia komfort cieplny i niskie koszty eksploatacji, a jednocześnie wpisuje się w trend ekologicznego budownictwa.

Możliwość personalizacji projektu

Rezydencja Horizon jest częścią działu Projekty Premium, co oznacza, że inwestorzy mogą zamówić ją zarówno w wersji standardowej, jak i spersonalizowanej. Na życzenie istnieje możliwość:

  • zmiany układu funkcjonalnego,
  • doboru materiałów wykończeniowych,
  • rozbudowy o dodatkowe elementy (basen, oranżeria, garaż podziemny).

Dla klientów poszukujących czegoś absolutnie wyjątkowego oferujemy również przygotowanie indywidualnego projektu rezydencji w podobnym stylu.

Rezydencja Horizon – luksusowa willa marzeń

Jeśli szukasz nowoczesnej rezydencji premium, która łączy ponadczasową estetykę, luksusowe wnętrza i funkcjonalność na najwyższym poziomie – Rezydencja Horizon będzie doskonałym wyborem.
To projekt dla inwestorów, którzy nie godzą się na kompromisy i chcą żyć w domu, który zachwyca każdego dnia. Horizon to połączenie prestiżu, komfortu i technologii – rezydencja, która staje się prawdziwą wizytówką właściciela.

Autorzy

arch. Krzysztof Borowski, arch. Piotr Rynkiewicz

Komentarze

Brak opinii, bądź pierwszym.

Dodaj opinię

© 2026 DOMY Z WIZJĄ Sp. z o.o. Wszelkie prawa zastrzeżone
Projekt i realizacja:Tworzenie stron internetowych - Jellinek