Projekt domu Modern 1

Do ulubionychUsuń z ulubionych
Nowoczesny projekt domu Modern 1
Nowoczesny projekt domu Modern 1
Nowoczesny projekt domu Modern 1
Nowoczesny projekt domu Modern 1
Nowoczesny projekt domu Modern 1
Nowoczesny projekt domu Modern 1
Nowoczesny projekt domu Modern 1
Nowoczesny projekt domu Modern 1
Nowoczesny projekt domu Modern 1
Nowoczesny projekt domu Modern 1
Nowoczesny projekt domu Modern 1
Nowoczesny projekt domu Modern 1

Powierzchnia użytkowa

235,90 m2

Powierzchnia garażu:

+44,50 m2

Powierzchnia kotłowni:

+11,10 m2

Koszt budowy

631 073 zł

Cena projektu

11 680 zł

Dostępność:Od ręki
Ten projekt obejrzało: 35364 osób

Rzuty

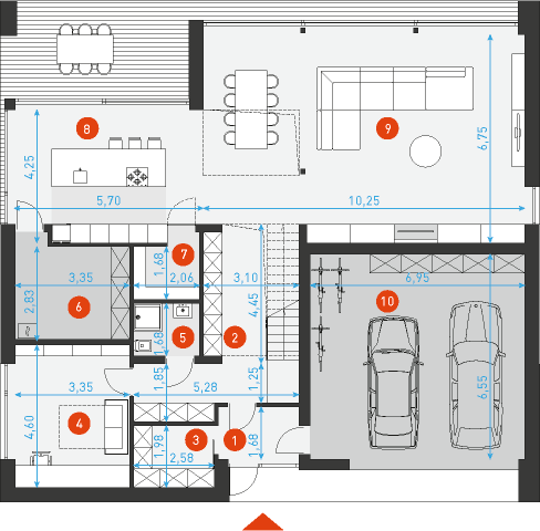
Projekt domu Modern 1 - Rzut parteru

Rzut parteru

Wersja
podstawowa
Wersja
lustrzana
Modern 1 - Rzut parteruModern 1 - Rzut parteru

Powierzchnia użytkowa139,6 m2

1wiatrołap4,2 m2
2hol - komunikacja17,2 m2
3garderoba5,0 m2
4pokój - gabinet16,3 m2
5łazienka3,4 m2
6pom. gospodarcze - kotłownia11,1 m2
7spiżarnia3,9 m2
8kuchnia + jadalnia42,2 m2
9pokój dzienny47,4 m2
10garaż44,5 m2
Drukuj kartę projektu Drukuj kartę projektu

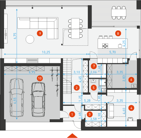
Projekt domu Modern 1 - Rzut piętra

Rzut piętra

Wersja
podstawowa
Wersja
lustrzana
Modern 1 - Rzut piętraModern 1 - Rzut piętra

Powierzchnia użytkowa96,3 m2

1komunikacja14,5 m2
2sypialnia20,7 m2
3garderoba10,4 m2
4łazienka8,6 m2
5pralnia - suszarnia4,1 m2
6sypialnia16,8 m2
7sypialnia16,8 m2
8łazienka4,4 m2
Drukuj kartę projektu Drukuj kartę projektu

Informacje szczegółowe

Pow. użytkowa ogółem

291,50 m2

Ilość pokoi

4

Garaż

2-stanowiskowy

Łazienki (z toaletami)

3

Powierzchnia zabudowy

244,00 m2

Min. szerokość działki

25,19 m

Min. długość działki

24,99 m

Wysokość w kalenicy

7,35 m

Kąt nachylenia dachu

1 °

Powierzchnia dachu

219,00 m2

Kubatura

1 400,70 m3

Warunki techniczne projektu na rok

2021
KONSTRUKCJA

zgodna z normami EUROKOD

FUNDAMENTY

tradycyjne
ławy i stopy żelbetowe.

ŚCIANY

bloczek silikatowy + styropian
na etapie adaptacji można zamienić na inny materiał o tej samej wytrzymałości na ściskanie 10-15 MPa, np. pustak ceramiczny.

ELEWACJA

tynk, na fragmentach elewacji deska kompozytowa
materiał dodatkowy podkreślający podziały elewacji, taki jak deska kompozytowa można zamienić na inny, np. płytkę klinkierową.

STROPY

żelbetowe wylewane
na etapie adaptacji istnieje możliwość zmiany na stropy gęstożebrowe.

SCHODY

systemowe
konstrukcja schodów oraz materiały wykończeniowe przewidziane do indywidualnej aranżacji. Możesz skorzystać z usług naszego partnera. Formularz dostępny w zakładce „kosztorys”

DACH

płaski – membrana dachowa
konstrukcja stropodachu – płyta żelbetowa monolityczna. I strefa wiatrowa, II strefa śniegowa.

Ogrzewanie

Kocioł gazowy i instalacja solarna

Ogrzewanie alternatywne

Pompa ciepła (płatny dodatek)

Wentylacja

Mechaniczna

EUco - Energia użytkowa

13,9 kWh/(m2rok)

EK - Energia końcowa

57,0 kWh/(m2rok)

EP - Energia pierwotna

68,4 kWh/(m2rok)
Zobacz dodatki podnoszące energooszczędność

Działka / Nasłonecznienie

Modern 1 - Działka / NasłonecznienieModern 1 - Działka / Nasłonecznienie

Sprawdź warunki zabudowy lub wypis z MPZP

Poza minimalnymi wymiarami działki oraz odpowiednim nasłonecznieniem, istotne są również przypisane do każdej nieruchomości tzw. Warunki Zabudowy lub ograniczenia określone w Miejscowym Planie Zagospodarowania Przestrzennego. Jeśli masz wątpliwości oferujemy BEZPŁATNĄ ANALIZĘ WARUNKÓW ZABUDOWY.

Kosztorys

Kosztorys możesz zamówić łącznie z projektem lub oddzielnie korzystając z formularza zamówienia projektu. Kosztorys zamówiony łącznie z projektem jest dostarczany na płycie CD. Zamawiany oddzielnie jest plikiem w wersji elektronicznej wysyłanym na adres e-mail podany w formularzu.

Szacunkowy koszt budowy domu. Poziom cen netto: II kwartał 2025

Prace ziemne i fundamenty

69 942 zł

Konstrukcja, strop oraz dach

278 000 zł

Stolarka okienna i drzwiowa

283 131 zł
Stan surowy zamknięty(netto)
631 073 zł

Sprawdź pozostałe pozycje w kosztorysie:

Prace ziemne i fundamenty

110 953 zł

Konstrukcja, strop oraz dach

406 051 zł

Stolarka okienna i drzwiowa

317 968 zł
Stan surowy zamknięty(netto)
834 972 zł

Sprawdź pozostałe pozycje w kosztorysie:

Dodatki

W celu poprawienia energooszczędności budynku oferujemy dodatkowe opracowania instalacyjne. Dodatkowe opracowania możesz zamówić łącznie z projektem lub oddzielnie korzystając z formularza zamówienia projektu. Jeżeli któryś z dodatków ma podany dłuższy czas realizacji niż projekt domu to wysyłamy go w określonym terminie oddzielną, bezpłatną przesyłką.

450 zł
Dostępność:Od ręki
450 zł
Dostępność:Od ręki
450 zł
Dostępność:Od ręki

Centrum informacji

Centrum informacji

Co zawiera projekt:

  • 3 egzemplarze projektu architektoniczno-budowlanego
  • 3 egzemplarze projektu technicznego
  • analizę i charakterystykę energetyczną
  • bezpłatną zgodę na zmiany
  • kopię uprawnień architektów i branżystów

Tu znajdziesz pozostałe i niezbędne informacje dotyczące wyboru i zakupu projektu:

Przejdź do centrum informacji

Centrum informacji

Warianty

Projekt domu - Modern 2
WT 2021

Modern 2

202,70 m2
4
3
2

Podobne

Projekt domu - Otwarty 1
WT 2021

Otwarty 1

227,80 m2
4
3
2
Projekt domu - Autorski 1
WT 2021

Autorski 1

239,20 m2
4
4
2

Opis projektu

Modern 1: dom nowoczesny – projekt piętrowy z płaskim dachem

Modern 1 to projekt domu nowoczesnego z płaskim dachem, który przykuwa uwagę minimalistyczną, geometryczną bryłą i doskonale wpisuje się w krajobraz miejski oraz podmiejski. Jeśli interesują Cię nowoczesne projekty domów jednorodzinnych, które łączą intrygujący design z funkcjonalnością, energooszczędnością i komfortowym zaaranżowaniem przestrzeni – ta propozycja będzie dla Ciebie dobrym wyborem.

Nowoczesny projekt domu jednorodzinnego o dużej powierzchni użytkowej

Łączna powierzchnia użytkowa tego domu jednorodzinnego to aż 291,5 m2. Tak duża przestrzeń zapewni komfort mieszkania rodzinie z dwójką dzieci – zwłaszcza że do dyspozycji jest aż 5 pokoi, w tym pokój dzienny o powierzchni ponad 47 m2! To idealne miejsce do rodzinnego relaksu czy przyjmowania gości.

Ciekawy projekt domu, który łączy funkcjonalność z designem

Architekci, którzy odpowiadają za nasze projekty nowoczesnych domów, zadbali o jasny podział przestrzeni na dzienną oraz nocną. Na parterze znajdują się przestronny pokój dzienny oraz duża kuchnia z wyspą połączona z jadalnią, w której można ulokować stół nawet na 12 osób. Jadalnia jest częściowo otwarta na piętro poprzez otwarty strop. Zwróć uwagę na tę propozycję, jeżeli interesują Cię projekty domów z dużą kuchnią. Tu ta strefa, nieoddzielona ścianą od salonu, ma aż 42,2 m2. To idealna przestrzeń do przygotowywania posiłków oraz celebracji rodzinnych uroczystości. Zewnętrznym przedłużeniem tej strefy jest duży zadaszony taras, który latem będzie idealnym miejscem na rodzinne obiady lub wieczorne przyjęcia.

Charakterystycznym elementem wnętrza jest również reprezentacyjny dwupoziomowy hol wejściowy z nowoczesnymi schodami o prostej jednobiegowej konstrukcji. Takie wejście do domu na pewno zrobi wrażenie na gościach!

Innymi atutami na planie parteru tego projektu są: zadaszone wejście, duża garderoba przy wiatrołapie oraz spiżarnia z bezpośrednim dostępem z kuchni. Ponadto na parterze znalazła się wygodna strefa do pracy lub nocowania gości obejmująca gabinet, który może pełnić funkcję pokoju gościnnego oraz łazienka z prysznicem i niewielki przedpokój z dużą szafą wnękową. To idealne rozwiązanie dla osób, które planują pracę zdalną!

W tym projekcie domu nowoczesnego duży dwustanowiskowy garaż jest wbudowany w bryłę budynku, co oznacza, że tworzy ona zwartą całość. To również rozwiązanie, które pozytywnie wpływa na energooszczędność budynku.

Projekt domu piętrowego – funkcjonalna strefa nocna na pierwszym piętrze

Pierwsze piętro domu nowoczesnego z projektu Modern 1 oferuje dwie oddzielne strefy sypialne – dla dzieci oraz rodziców. Obie połączone są antresolą zawieszoną nad jadalnią i holem wejściowym. Strefa dzieci obejmuje dwa duże dobrze doświetlone pokoje z widokiem na ogród, zewnętrzną garderobę oraz łazienkę. W tym nowoczesnym projekcie część przeznaczona dla rodziców to prawdziwe luksusowy „masterbedroom” z dużą sypialnią otwartą na zewnętrzny taras, wygodną przejściową garderobą, prywatną łazienką oraz pralnio-suszarnią.

Gotowy projekt domu zgodny z WT 2021

Ten projekt domu jest w 100% zgodny z WT 2021 pod kątem zapotrzebowania na energię. Obiekt w standardzie jest ogrzewany kondensacyjnym kotłem gazowym wspomaganym dodatkowo instalacją solarną. Posiada również w standardzie wentylacje mechaniczną z rekuperacją.

Sprawdź również inne projekty nowoczesnych domów piętrowych w naszej ofercie. Jeśli masz dodatkowe pytania lub potrzebujesz pomocy przy wybraniu odpowiedniego rozwiązania, skontaktuj się z naszym zespołem. Chętnie doradzimy Ci przy podjęciu ostatecznej decyzji!

Autorzy

arch. Krzysztof Borowski, arch. Piotr Rynkiewicz

Komentarze

Brak opinii, bądź pierwszym.

Dodaj opinię

FAQ

Czy projekt Modern 1 wyróżnia się nowoczesną bryłą?

Tak, projekt został zaprojektowany w minimalistycznym i nowoczesnym stylu, z prostymi liniami oraz dużymi przeszkleniami. To propozycja dla osób, które szukają nowoczesnych projektów domów o wyrazistej architekturze.

Czy duże okna w projekcie Modern 1 dobrze doświetlają wnętrze?

Tak, duże przeszklenia zapewniają bardzo dobre doświetlenie strefy dziennej i pomagają optycznie powiększyć wnętrza. Dzięki temu dom jest jasny i bardziej otwarty na ogród oraz otoczenie.

Czy projekt Modern 1 będzie odpowiedni dla osób lubiących nowoczesne wnętrza?

Tak, układ pomieszczeń pozwala stworzyć przestronne, minimalistyczne wnętrze z nowoczesną aranżacją. Otwarta strefa dzienna daje dużą swobodę podczas urządzania domu.

Czy kuchnia w projekcie Modern 1 może mieć wyspę?

Tak, przestrzeń dzienna została zaplanowana tak, aby umożliwić wykonanie nowoczesnej kuchni z wyspą lub dużym blatem roboczym. To rozwiązanie bardzo często wybierane przez inwestorów analizujących gotowe projekty domów premium.

Czy projekt Modern 1 będzie dobrze wyglądał na nowoczesnym osiedlu?

Tak, minimalistyczna architektura sprawia, że projekt bardzo dobrze wpisuje się w nowoczesną zabudowę jednorodzinną. Dom może atrakcyjnie prezentować się zarówno w mieście, jak i na działce podmiejskiej.

Czy projekt Modern 1 sprawdzi się dla osób posiadających psa?

Tak, wygodne połączenie wnętrza domu z tarasem i ogrodem może być dużym ułatwieniem dla właścicieli zwierząt. Otwarta strefa dzienna oraz łatwy dostęp do przestrzeni zewnętrznej zwiększają komfort codziennego użytkowania.

Czy projekt Modern 1 będzie trudny w utrzymaniu?

Nie, mimo nowoczesnego charakteru projekt został zaplanowany praktycznie i funkcjonalnie. Prosta bryła domu pomaga również w późniejszym utrzymaniu oraz eksploatacji budynku.

Czy projekt Modern 1 będzie odpowiedni dla osób pracujących zdalnie?

Tak, przestronny i funkcjonalny układ wnętrz pozwala wygodnie wydzielić miejsce do pracy lub nauki. To rozwiązanie coraz częściej pojawia się w nowoczesnych projektach domów dopasowanych do aktualnego stylu życia.

Dlaczego inwestorzy wybierają projekt Modern 1?

Projekt przyciąga nowoczesnym wyglądem, dużymi przeszkleniami oraz otwartą przestrzenią dzienną. To propozycja dla osób, które chcą połączyć minimalistyczną architekturę z wygodnym i funkcjonalnym wnętrzem.
© 2026 DOMY Z WIZJĄ Sp. z o.o. Wszelkie prawa zastrzeżone
Projekt i realizacja:Tworzenie stron internetowych - Jellinek