Projekt domu Modelowy 2

Promocja
Nowość
Do ulubionychUsuń z ulubionych
Nowoczesny projekt domu Modelowy 2
Nowoczesny projekt domu Modelowy 2
Nowoczesny projekt domu Modelowy 2
Nowoczesny projekt domu Modelowy 2
Nowoczesny projekt domu Modelowy 2
Nowoczesny projekt domu Modelowy 2

Powierzchnia użytkowa

175,20 m2

Powierzchnia garażu:

+37,60 m2

Powierzchnia kotłowni:

+4,50 m2

Koszt budowy

519 168 zł

Cena projektu

7 081 zł

8 330 zł
Do końca oferty zostało:
Dostępność:Od ręki
Ten projekt obejrzało: 25790 osób

Rzuty

Projekt domu Modelowy 2 - Rzut parteru

Rzut parteru

Wersja
podstawowa
Wersja
lustrzana
Modelowy 2 - Rzut parteruModelowy 2 - Rzut parteru
1wiatrołap6,4 m2
2łazienka4,7 m2
3kuchnia14,3 m2
4pokój dzienny + jadalnia40,0 m2
5pom. gospodarcze1,8 m2
6pokój - gabinet15,0 m2
7komunikacja11,7 m2
8pom. gospodarcze - kotłownia4,5 m2
9garaż37,6 m2
Drukuj kartę projektu Drukuj kartę projektu

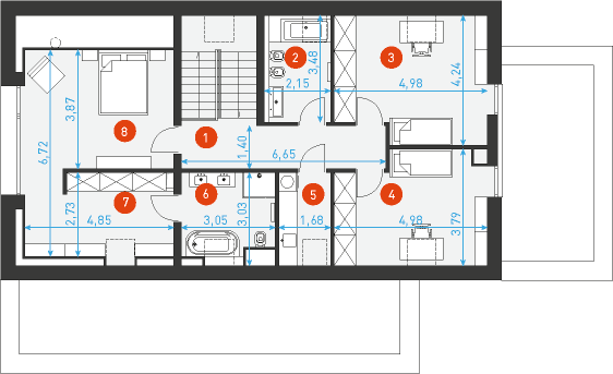
Projekt domu Modelowy 2 - Rzut poddasza

Rzut poddasza

Wersja
podstawowa
Wersja
lustrzana
Modelowy 2 - Rzut poddaszaModelowy 2 - Rzut poddasza
1komunikacja9,7 m2(9,7 m2)
2łazienka5,5 m2(7,3 m2)
3sypialnia15,1 m2(19,5 m2)
4sypialnia12,6 m2(17,0 m2)
5pom. gospodarcze - pralnia3,5 m2(4,9 m2)
6łazienka6,4 m2(8,2 m2)
7garderoba10,3 m2(13,4 m2)
8sypialnia18,2 m2(18,5 m2)
Drukuj kartę projektu Drukuj kartę projektu

Informacje szczegółowe

Pow. użytkowa ogółem

217,30 m2

Ilość pokoi

4

Garaż

2-stanowiskowy

Łazienki (z toaletami)

3

Powierzchnia zabudowy

182,10 m2

Min. szerokość działki

26,88 m

Min. długość działki

21,09 m

Wysokość w kalenicy

9,26 m

Kąt nachylenia dachu

45 °

Powierzchnia dachu

205,40 m2

Kubatura

1 027,90 m3

Warunki techniczne projektu na rok

2021
KONSTRUKCJA

zgodna z normami EUROKOD

FUNDAMENTY

tradycyjne
ławy i stopy żelbetowe.

ŚCIANY

bloczek silikatowy + styropian
na etapie adaptacji można zamienić na inny materiał o tej samej wytrzymałości na ściskanie 10-15 MPa, np. pustak ceramiczny.

ELEWACJA

płytka kliknierowa ręcznie formowana, deska elewacyjna
materiał dodatkowy podkreślający podziały elewacji, taki jak płytka klinkierowa można zamienić na inny.

STROPY

żelbetowe wylewane
na etapie adaptacji istnieje możliwość zmiany na stropy gęstożebrowe.

SCHODY

żelbetowe
konstrukcja schodów oraz materiały wykończeniowe przewidziane do indywidualnej aranżacji. Możesz skorzystać z usług naszego partnera. Formularz dostępny w zakładce „kosztorys”

DACH

system blachy dachowej Ruukki Classic Design C
konstrukcja więźby przewidziana pod pokrycie ciężkie dla I strefy wiatrowej i II strefy śniegowej.

Ogrzewanie

Kocioł gazowy i instalacja solarna

Ogrzewanie alternatywne

Pompa ciepła (płatny dodatek)

Wentylacja

Mechaniczna

EUco - Energia użytkowa

15,0 kWh/(m2rok)

EK - Energia końcowa

55,6 kWh/(m2rok)

EP - Energia pierwotna

66,3 kWh/(m2rok)
Zobacz dodatki podnoszące energooszczędność

Działka / Nasłonecznienie

Modelowy 2 - Działka / NasłonecznienieModelowy 2 - Działka / Nasłonecznienie

Sprawdź warunki zabudowy lub wypis z MPZP

Poza minimalnymi wymiarami działki oraz odpowiednim nasłonecznieniem, istotne są również przypisane do każdej nieruchomości tzw. Warunki Zabudowy lub ograniczenia określone w Miejscowym Planie Zagospodarowania Przestrzennego. Jeśli masz wątpliwości oferujemy BEZPŁATNĄ ANALIZĘ WARUNKÓW ZABUDOWY.

Kosztorys

Kosztorys możesz zamówić łącznie z projektem lub oddzielnie korzystając z formularza zamówienia projektu. Kosztorys zamówiony łącznie z projektem jest dostarczany na płycie CD. Zamawiany oddzielnie jest plikiem w wersji elektronicznej wysyłanym na adres e-mail podany w formularzu.

Szacunkowy koszt budowy domu. Poziom cen netto: IV kwartał 2024

Prace ziemne i fundamenty

67 357 zł

Konstrukcja, strop oraz dach

242 029 zł

Stolarka okienna i drzwiowa

209 782 zł
Stan surowy zamknięty(netto)
519 168 zł

Sprawdź pozostałe pozycje w kosztorysie:

Prace ziemne i fundamenty

105 207 zł

Konstrukcja, strop oraz dach

358 010 zł

Stolarka okienna i drzwiowa

234 420 zł
Stan surowy zamknięty(netto)
697 637 zł

Sprawdź pozostałe pozycje w kosztorysie:

Dodatki

W celu poprawienia energooszczędności budynku oferujemy dodatkowe opracowania instalacyjne. Dodatkowe opracowania możesz zamówić łącznie z projektem lub oddzielnie korzystając z formularza zamówienia projektu. Jeżeli któryś z dodatków ma podany dłuższy czas realizacji niż projekt domu to wysyłamy go w określonym terminie oddzielną, bezpłatną przesyłką.

450 zł
Dostępność:Od ręki
450 zł
Dostępność:Od ręki
450 zł
Dostępność:Od ręki

Centrum informacji

Centrum informacji

Co zawiera projekt:

  • 3 egzemplarze projektu architektoniczno-budowlanego
  • 3 egzemplarze projektu technicznego
  • analizę i charakterystykę energetyczną
  • bezpłatną zgodę na zmiany
  • kopię uprawnień architektów i branżystów

Tu znajdziesz pozostałe i niezbędne informacje dotyczące wyboru i zakupu projektu:

Przejdź do centrum informacji

Centrum informacji

Warianty

Projekt domu - Modelowy 1
Promocja
Nowość
WT 2021

Modelowy 1

175,20 m2
4
3
2

Opis projektu

MODELOWY 2 - projekt domu z wjazdem od południa

Witamy w projekcie „Modelowy 2” – nowoczesnym domu z poddaszem, który przenosi pojęcie komfortu, funkcjonalności i stylu na zupełnie nowy poziom. Ten imponujący projekt z dwustanowiskowym garażem, przemyślanym układem pomieszczeń oraz eleganckim designem, to propozycja dla tych, którzy pragną mieszkać w miejscu, gdzie każdy detal został starannie przemyślany. To co wyróżnia ten projekt to układ funkcjonalny umożliwiający budowę na działkach z wjazdem od strony południowej. Na rynku projektów gotowych nie ma zbyt wielu propozycji ciekawych projektów które można realizować na takich parcelach. Projekt domu „Modelowy 2” został zaprojektowany specjalnie na działki z wejściem od strony południowej. Umieszczony od frontu salon oraz duży zadaszony taras w pełni umożliwia wykorzystanie nasłonecznienia.

Projekt domu z elewacją klinkierową i drewnianą deską

To co wyróżnia ten dom to na pewno piękna elewacja klinkierowa z ręcznie formowanej długiej płytki. Długie płytki klinkierowe w kolorze jasnoszarym nadają nowoczesnego wyglądu i doskonale kontrastują z ciemną wielkoformatową stolarką. Drugim materiałem zastosowanym na elewacji są deski z cedru kanadyjskiego tzw. West Red Cedar, które są pięknie wybarwione oraz lekkie i odporne na warunki atmosferyczne. Dach został pokryty jasnoszarą blachą panelową na rąbek, która jest ekologicznym, trwałym i tanim materiałem, doskonale komponującym się z pozostałymi materiałami wykończeniowymi wybranymi do tego projektu.

Projekt nowoczesnego parterowego domu z poddaszem użytkowym

Parter „Modelowego 2” zapewnia wyjątkową przestrzeń do wspólnego życia i spotkań. Z dużego dwustanowiskowego garażu przechodzimy do dużego wiatrołapu z garderobą. Po wejściu do domu natychmiast zauważamy dużą przestronność salonu, którą podkreślają narożne przeszklenia. Zawieszony pod stropem  nowoczesny kominek firmy Focus to punkt salonu, który nie tylko dodaje uroku, ale także wraz z wygodną narożną kanapą  tworzy przytulne miejsce do relaksu. Kuchnia z jadalnią, wzbogacona o wyspę, staje się sercem domu, zachęcając do wspólnych chwil przygotowywania posiłków. Warto również zauważyć dodatkowy pokój-pracownię na parterze, co daje swobodę dostosowania przestrzeni do różnych celów – od domowego biura po miejsce na hobby. Może służyć również jako dodatkowy pokój dla odwiedzających nas gości. Wygodna łazienka na parterze to kolejny atut tego projektu, eliminujący potrzebę wchodzenia na piętro w trakcie codziennych zajęć. To praktyczne rozwiązanie, które podkreśla funkcjonalność „Modelowego 2”.

Projekt domu z prywatną strefą rodziców

Podczas gdy parter jest miejscem spotkań i wspólnego życia, poddasze to strefa intymna dla domowników. Bardzo duża i wygodna sypialnia rodziców jest połączona z przejściową garderobą, która prowadzi do luksusowej łazienki. W łazience znajduje się podwójna umywalka, duży prysznic oraz wanna wolnostojąca. Ta oddzielna strefa dorosłych domowników to prawdziwy azyl spokoju i relaksu.

Dwie pozostałe sypialnie na poddaszu są przeznaczone dla dzieci. Zaprojektowane w odpowiedniej wielkości  są idealnym miejscem do zabawy, nauki i rozwijania pasji. Dzieci mogą korzystać z własnej łazienki. Na poddaszu znalazło się również miejsce na dużą pralnię z suszarnią.

Podsumowanie zalet projektu „Modelowy 2”:

  • Nowoczesny projekt domu przeznaczony na działki z wjazdem od południa.
  • Nowoczesny design: elegancka forma z dwuspadowym bezokapowym dachem i dużymi narożnymi oknami.
  • Naturalna i ponadczasowa elewacja z klinkieru oraz drewnianej deski.
  • Wygodny dwustanowiskowy garaż.
  • Przemyślany układ funkcjonalny: ergonomiczne rozmieszczenie pomieszczeń w kompaktowej bryle, dostosowane do potrzeb 4-osobowej rodziny.
  • Pokój-pracownia na parterze: elastyczna przestrzeń do pracy zdalnej, indywidualnego rozwoju czy jako dodatkowy pokój dla gości.
  • Przestronny salon z kominkiem: centralne miejsce spotkań, które zachęca do relaksu i wspólnego spędzania czasu.
  • Obszerna jadalnia i kuchnia z wyspą: idealne miejsce do przygotowywania posiłków i rodzinnych uroczystości.
  • Zadaszony taras od strony południowej.
  • Komfort na poddaszu: prywatna przestrzeń dla rodziców i dzieci, zapewniająca intymność i swobodę. Prywatna łazienki dzieci oraz dodatkowe pomieszczenie pralni i suszarni.

Jeśli posiadasz działkę z wjazdem od południa to projekt domu „Modelowy 2” będzie idealnym wyborem. To nie tylko dom – to przestrzeń, w której design spotyka się z funkcjonalnością, tworząc idealne miejsce dla Twojej rodziny!

Autorzy

arch. Krzysztof Borowski, arch. Piotr Rynkiewicz

Komentarze

Brak opinii, bądź pierwszym.

Dodaj opinię

© 2026 DOMY Z WIZJĄ Sp. z o.o. Wszelkie prawa zastrzeżone
Projekt i realizacja:Tworzenie stron internetowych - Jellinek