- Projekty domów
- Popularne
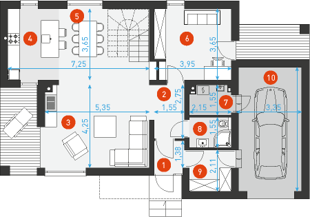
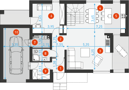
- Wielkość
- Kondygnacje
- Garaż
- Dach
- Działka
- Rodzaj zabudowy
- Inne kategorie projektów
- Projekty domów dla developera
- Projekty domów z pompą ciepła
- Projekty domów z rekuperacją
- Projekty domów z ogrzewaniem podłogowym
- Projekty domów z wyspą kuchenną
- Projekty domów z antresolą
- Projekty domów z wnętrzami
- Projekty domów z poddaszem do adaptacji
- Nietypowe projekty domów
- Projekty domów z płytą fundamentową
- Projekty premium
- Panoramy
- Realizacje
- Centrum informacji
- Dla dewelopera
- Kontakt






















Komentarze
Krzysztof
Dodano : 06/7/2017
Dzień dobry, Czy projekt uwzględnia nowe normy obowiązujące od 01.2017r w odniesieniu do izolacyjności cieplnej przegród?
Administrator
Dodano : 06/7/2017
Tak, wszystkie projekty dostępne w naszej ofercie są zgodne z WT 2017.
Antek
Dodano : 06/5/2017
Witam, Ciekawi mnie jak jest rozwiązane oparcie stropu przy schodach, a w zasadzie jego brak. Patrząc na układ ścian nośnych wewnętrznych, strop rozpięty jest równolegle do dłuższych krawędzi budynku, co daje przypuszczenie, że przy schodach, wymaga on dodatkowego podparcia, np. słupa, podobnie jak w projekcie Prosty 3.
Administrator
Dodano : 06/5/2017
Strop rozpięty jest prostopadle do dłuższych ścian budynku(równolegle do biegu schodów). Opiera się na podciągach: jednym-opartym na ścianie przy kominie i ściance przy szafach, drugim-przebiegającym prostopadle do pierwszego, biegnącym wzdłuż schodów. Słup jest w tym przypadku zbędny.
Szymon
Dodano : 17/5/2016
Witam, Mam pytanie do projektantów: czy waszym zdaniem zmiana materiału pokrycia dachowego np. na blachę na rąbek pionowy negatywnie wpłynie na wygląd budynku? Może macie sugestie w tej kwestii i możecie polecić jakiś materiał, który byłby lżejszy, tańszy i bez negatywnego wpływu na wygląd budynku?
Administrator
Dodano : 17/5/2016
Zmiana pokrycia dachowego na blachę łączoną na rąbek na pewno nie wpłynie negatywnie na wygląd domu. Nie wpłynie również na obniżenie kosztów realizacji ponieważ koszt pokrycia 1 m2 będzie na pewno droższy od dachówki. Jedyną alternatywą pomagającą zredukować wydatki jest wybór tańszej dachówki. Zaproponowana w projekcie dachówka to wydatek rzędu 65-70 zł /1 m2, wybierając tańszą dachówkę można zejść nawet do połowy tej kwoty czyli ok.35 zł/1m2.
Bozena
Dodano : 31/3/2016
Witam. jestem bardzo zachwycona projektem tego domu, ale na poddaszu wyjscie na taras mialabym od strony polnocnej czyli caly dzien cien od tej strony czy istnieje mozliwosc zlikwidowania tego tarasu i np powiekszenia pomieszczen na poddaszu?
Administrator
Dodano : 31/3/2016
Nie ma konieczności wykonywania tarasu użytkowego na dachu garażu, to kwestia wyboru inwestorów. Odradzamy natomiast wykorzystanie tej części do powiększenia poddasza. Po takiej zmianie budynek straci właściwe proporcje i wygląd.
Jan
Dodano : 24/8/2015
Witam, Bardzo podoba mi się ten projekt jednak w planie zagospodarowania mam zapis, że muszę wykonać czerwony dach. Czy uważacie Państwo że dla tego projektu da się wykonać jakąś sensowną elewację (ładnie wyglądającą) z czerwonym dachem?
Administrator
Dodano : 24/8/2015
Nie mamy nic przeciwko czerwonej dachówce i jeśli to będzie model dachówki płaskiej to budynek na pewno zachowa swój współczesny charakter. Przy zastosowaniu czerwonej dachówki należy unikać na elewacji ciemnych i mocno kontrastowych kolorów. Widoczne fragmenty elewacji zaakcentowane w tym projekcie ciemniejszą płytą włóknisto-cementową powinny mieć zdecydowanie jaśniejszy odcień.
Katarzyna
Dodano : 16/11/2013
Czy istnieje mozliwosc wybudowania tego domu bez garazu lub zabudowanie tarasu?(chodzi o to aby dom nie posiadal tarasu).
Administrator
Dodano : 16/11/2013
Oczywiście, jest to bardzo prosta modyfikacja polegająca jedynie na wykreśleniu bryły garażu z dokumentacji, nie wymaga to żadnych dodatkowych korekt w projekcie ani obliczeń konstrukcyjnych. Może to zrobić każdy architekt posiadający uprawnienia w ramach adaptacji do warunków miejscowych.
Anna
Dodano : 07/7/2013
Projekt spełnia wszystkie nasze wymagania. Mam pytanie czy jest możliwość adaptacji tego domu do technologii szkieletowej, bo na taką raczej jesteśmy zdecydowani. Proszę o odpowiedź jakie są możliwości w tym temacie.
Administrator
Dodano : 07/7/2013
Każdy projekt w naszej ofercie można dostosować do technologii szkieletowej. Dobre firmy wykonawcze dysponują zapleczem projektowym, które w ramach kosztów realizacji projektu wykonują bezpłatnie adaptacje dowolnej technologii na szkieletową lub inną drewnianą technologię przez nie stosowaną. Ze względu na mnogość firm i zróżnicowanie technologiczne nie ma obecnie standaryzacji projektowania szkieletowego, firmy stosują np. różne przekroje elementów konstrukcyjnych dlatego najlepiej jest korzystać z adaptacji w ramach działania poszczególnych wykonawców. Nasza Pracownia współpracuje z firmą Kubus i Wolfhause, których dane można znaleźć w dziale Partnerzy.
Marcin
Dodano : 30/6/2013
Podoba nam się projekt, jednak na naszą działkę jest za wysoki (wg mpzp) i tutaj mam pytanie do projektantów, czy jest możliwość zbudowania domu niższego ( max 8 m.,a ewentualne obniżenie pomieszczeń nadrobić np poprzez wstawienie lukarn?
Administrator
Dodano : 30/6/2013
Niestety obniżenie kalenicy tego domu o ponad 60cm jest niemożliwe bez dużej ingerencji w wygląd budynku. Można obniżyć ściankę kolankową z jednoczesnym zmniejszeniem kąta nachylenia połaci do 38 stopni ale takie modyfikacje zmienią na niekorzyść proporcje domu dlatego odradzamy ich przeprowadzenie.
Michal B.
Dodano : 20/6/2013
Projekt zakupiony :)
Dodaj opinię