- Projekty domów
- Popularne
- Wielkość
- Kondygnacje
- Garaż
- Dach
- Działka
- Rodzaj zabudowy
- Inne kategorie projektów
- Projekty domów dla developera
- Projekty domów z pompą ciepła
- Projekty domów z rekuperacją
- Projekty domów z ogrzewaniem podłogowym
- Projekty domów z wyspą kuchenną
- Projekty domów z antresolą
- Projekty domów z wnętrzami
- Projekty domów z poddaszem do adaptacji
- Nietypowe projekty domów
- Projekty domów z płytą fundamentową
- Projekty premium
- Panoramy
- Realizacje
- Centrum informacji
- Dla dewelopera
- Kontakt
























Komentarze
Edyta
Dodano : 25/1/2014
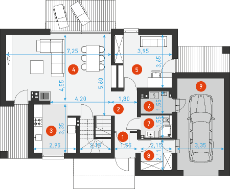
Witam, Czy istnieje mozliwosc dołozenia 2-go stanowiska garazowego w tej wersji? Chodzi mi o zachowanie rozkladu pomieszczen z tego wariantu. Pozdrawiam
Administrator
Dodano : 25/1/2014
Oczywiście, garaż można poszerzyć o kolejne stanowisko w ramach adaptacji projektu do warunków miejscowych.
witold
Dodano : 12/10/2013
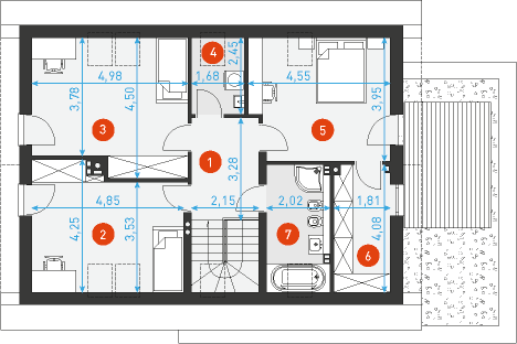
Witam mam pytanie odnośnie podpiwniczenia jeżeli nie całości budynku to chociaż części jaka jest procedura oraz czy mogę sam dokonać zmian na piętrze ponieważ muszę tam mieć cztery sypialnie zmiany tylko wewnątrz nie mające wpływu na dach i konstrukcję.Pozdrawiam
Administrator
Dodano : 12/10/2013
Możliwość podpiwniczenia budynku jest zależna przede wszystkim od indywidualnych warunków gruntowych , a w szczególności od poziomu lustra wody. Jeśli na działce ten poziom jest wysoko to raczej odradza się wykonywanie piwnicy bo wszelkiego rodzaju zabezpieczenia hydroizolacyjne nie wyeliminują w 100% prawdopodobieństwa występowania problemów eksploatacyjnych. Dlatego przed decyzją o doprojektowaniu piwnicy trzeba bezwzględnie wykonać badania gruntowe w planowanym miejscu posadowienia budynku. Zarówno doprojektowanie piwnicy jak i zmiany w układzie funkcjonalnym poddasza należy wykonać przy pomocy lokalnego architekta na etapie adaptacji projektu do warunków miejscowych.
Dodaj opinię