Projekt domu Idealny 1

Do ulubionychUsuń z ulubionych
Nowoczesny projekt domu Idealny 1
Nowoczesny projekt domu Idealny 1
Nowoczesny projekt domu Idealny 1
Nowoczesny projekt domu Idealny 1
Nowoczesny projekt domu Idealny 1
Nowoczesny projekt domu Idealny 1
Nowoczesny projekt domu Idealny 1
Nowoczesny projekt domu Idealny 1
Nowoczesny projekt domu Idealny 1
Nowoczesny projekt domu Idealny 1

Powierzchnia użytkowa

178,80 m2

Powierzchnia garażu:

+46,70 m2

Powierzchnia kotłowni:

+5,90 m2

Koszt budowy

428 493 zł

Cena projektu

7 760 zł

Dostępność:Od ręki
Ten projekt obejrzało: 88111 osób

Rzuty

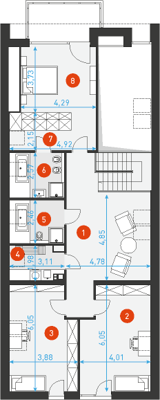
Projekt domu Idealny 1 - Rzut parteru

Rzut parteru

Wersja
podstawowa
Wersja
lustrzana
Idealny 1 - Rzut parteruIdealny 1 - Rzut parteru

Powierzchnia użytkowa85,5 m2

1hol wejściowy11,1 m2
2garderoba3,4 m2
3łazienka3,3 m2
4pom. pomocnicze - kotłownia5,9 m2
5pokój - gabinet10,4 m2
6kuchnia16,1 m2
7pokój dzienny + jadalnia39,6 m2
8pom. pomocnicze - spiżarnia1,6 m2
9garaż46,7 m2
Drukuj kartę projektu Drukuj kartę projektu

Projekt domu Idealny 1 - Rzut poddasza

Rzut poddasza

Wersja
podstawowa
Wersja
lustrzana
Idealny 1 - Rzut poddaszaIdealny 1 - Rzut poddasza

Powierzchnia użytkowa93,3 m2

1strefa wypocz. dzieci25,9 m2(31,3 m2)
2sypialnia15,9 m2(22,2 m2)
3sypialnia15,4 m2(21,7 m2)
4pralnia - suszarnia3,7 m2(5,8 m2)
5łazienka4,9 m2(7,4 m2)
6łazienka5,1 m2(7,8 m2)
7garderoba8,1 m2(10,4 m2)
8sypialnia14,3 m2(15,8 m2)

0,0 m2 - powierzchnia użytkowa
(0,0 m2) - powierzchnia podłogi

Drukuj kartę projektu Drukuj kartę projektu

Informacje szczegółowe

Pow. użytkowa ogółem

231,40 m2

Ilość pokoi

4

Garaż

2-stanowiskowy

Łazienki (z toaletami)

3

Powierzchnia zabudowy

186,70 m2

Min. szerokość działki

17,05 m

Min. długość działki

29,43 m

Wysokość w kalenicy

8,80 m

Kąt nachylenia dachu

45 °

Powierzchnia dachu

271,00 m2

Kubatura

1 167,00 m3

Warunki techniczne projektu na rok

2021
KONSTRUKCJA

zgodna z normami EUROKOD

FUNDAMENTY

tradycyjne
ławy i stopy żelbetowe.

ŚCIANY

bloczek silikatowy + styropian
na etapie adaptacji można zamienić na inny materiał o tej samej wytrzymałości na ściskanie 10-15 MPa, np. pustak ceramiczny.

ELEWACJA

tynk, na fragmentach drewniany profil i kamień łupany
materiał dodatkowy podkreślający podziały elewacji, taki jak kamień łupany można zamienić na inny, np. drewno.

STROPY

żelbetowe wylewane
na etapie adaptacji istnieje możliwość zmiany na stropy gęstożebrowe.

SCHODY

żelbetowe
konstrukcja schodów żelbetowa uwzględniona w dokumentacji projektowej. Materiał wykończenia stopni oraz balustrady do indywidualnej aranżacji.

DACH

system blachy dachowej Ruukki Classic M
konstrukcja więźby przewidziana pod pokrycie ciężkie dla I strefy wiatrowej i II strefy śniegowej.

Ogrzewanie

Kocioł gazowy i instalacja solarna

Ogrzewanie alternatywne

Pompa ciepła (płatny dodatek)

Wentylacja

Mechaniczna

EUco - Energia użytkowa

19,3 kWh/(m2rok)

EK - Energia końcowa

60,4 kWh/(m2rok)

EP - Energia pierwotna

66,3 kWh/(m2rok)
Zobacz dodatki podnoszące energooszczędność

Działka / Nasłonecznienie

Idealny 1 - Działka / NasłonecznienieIdealny 1 - Działka / Nasłonecznienie

Sprawdź warunki zabudowy lub wypis z MPZP

Poza minimalnymi wymiarami działki oraz odpowiednim nasłonecznieniem, istotne są również przypisane do każdej nieruchomości tzw. Warunki Zabudowy lub ograniczenia określone w Miejscowym Planie Zagospodarowania Przestrzennego. Jeśli masz wątpliwości oferujemy BEZPŁATNĄ ANALIZĘ WARUNKÓW ZABUDOWY.

Kosztorys

Kosztorys możesz zamówić łącznie z projektem lub oddzielnie korzystając z formularza zamówienia projektu. Kosztorys zamówiony łącznie z projektem jest dostarczany na płycie CD. Zamawiany oddzielnie jest plikiem w wersji elektronicznej wysyłanym na adres e-mail podany w formularzu.

Szacunkowy koszt budowy domu. Poziom cen netto: IV kwartał 2025

Prace ziemne i fundamenty

68 666 zł

Konstrukcja, strop oraz dach

262 641 zł

Stolarka okienna i drzwiowa

97 186 zł
Stan surowy zamknięty(netto)
428 493 zł

Sprawdź pozostałe pozycje w kosztorysie:

Prace ziemne i fundamenty

113 795 zł

Konstrukcja, strop oraz dach

390 773 zł

Stolarka okienna i drzwiowa

112 633 zł
Stan surowy zamknięty(netto)
617 201 zł

Sprawdź pozostałe pozycje w kosztorysie:

Dodatki

W celu poprawienia energooszczędności budynku oferujemy dodatkowe opracowania instalacyjne. Dodatkowe opracowania możesz zamówić łącznie z projektem lub oddzielnie korzystając z formularza zamówienia projektu. Jeżeli któryś z dodatków ma podany dłuższy czas realizacji niż projekt domu to wysyłamy go w określonym terminie oddzielną, bezpłatną przesyłką.

450 zł
Dostępność:Od ręki
450 zł
Dostępność:Od ręki
450 zł
Dostępność:Od ręki

Centrum informacji

Centrum informacji

Co zawiera projekt:

  • 3 egzemplarze projektu architektoniczno-budowlanego
  • 3 egzemplarze projektu technicznego
  • analizę i charakterystykę energetyczną
  • bezpłatną zgodę na zmiany
  • kopię uprawnień architektów i branżystów

Tu znajdziesz pozostałe i niezbędne informacje dotyczące wyboru i zakupu projektu:

Przejdź do centrum informacji

Centrum informacji

Warianty

Projekt domu - Idealny 4
Nowość
WT 2021

Idealny 4

165,30 m2
5
3
2
Projekt domu - Idealny 1A
Nowość
WT 2021

Idealny 1A

179,00 m2
5
3
2
Projekt domu - Idealny S1
Nowość
WT 2021

Idealny S1

119,70 m2
4
3
Projekt domu - Idealny M3
Nowość
WT 2021

Idealny M3

132,90 m2
4
3
2
Projekt domu - Idealny M2
Nowość
WT 2021

Idealny M2

137,40 m2
4
3
2
Projekt domu - Idealny M1
Nowość
WT 2021

Idealny M1

137,50 m2
4
3
Projekt domu - Idealny 3
WT 2021

Idealny 3

186,30 m2
4
3
2
Projekt domu - Idealny 2
WT 2021

Idealny 2

181,00 m2
4
3
2

Podobne

Projekt domu - Odważny 1
WT 2021

Odważny 1

158,00 m2
4
3
2
Projekt domu - Efektowny 1
Nowość
WT 2021

Efektowny 1

189,90 m2
4
3
2

Opis projektu

Idealny 1: nowoczesna stodoła z poddaszem użytkowym

To wyjątkowy projekt nowoczesnego domu z poddaszem w typie nowoczesnej stodoły zaprojektowany dla czteroosobowej rodziny. Dom powstał dla osób, które cenią zarówno nowoczesny styl, jak i funkcjonalność przestrzeni. Przemyślany układ pomieszczeń zapewnia komfort codziennego życia oraz umożliwia łatwą adaptację wnętrz do zmieniających się potrzeb domowników.

Dom wyróżnia się prostą, tradycyjną formą przykrytą wysokim dwuspadowym dachem, który nawiązuje do klasycznych rozwiązań architektonicznych, a jednocześnie gwarantuje optymalną funkcjonalność poddasza użytkowego. Nowoczesny charakter podkreślają takie detale jak płaska dachówka, ukryte rynny oraz lekka, współczesna deska elewacyjna. Dzięki temu bryła budynku jest elegancka, minimalistyczna i ponadczasowa.

Duże przeszklenia wpuszczają do wnętrz mnóstwo naturalnego światła i sprawiają, że dom płynnie łączy się z ogrodem oraz otaczającą go przestrzenią. Mieszkańcy mogą przez cały rok cieszyć się widokiem zieleni i poczuciem przestronności.

Wyjątkowym elementem projektu jest nowoczesna fasada ogrodowa – niemal całkowicie otwarta na otoczenie dzięki dużym oknom, które przedziela jedynie komin wykończony płytkami z naturalnego łupka. To rozwiązanie nie tylko przyciąga wzrok, ale także podkreśla indywidualny charakter domu i jego otwartość na świat zewnętrzny.

 

Projekt nowoczesnej stodoły na wąską działkę – funkcjonalność i możliwości zabudowy

Projekt Idealny 1 podobnie jak inne projekty w stylu nowoczesnej stodoły, posiada niewielką szerokość, która umożliwia wykorzystanie go na wąskich parcelach. Zwarta bryła z wbudowanym od frontu podwójnym garażem umożliwia lokalizację tego domu na działkach już od 17 metrów szerokości. Ta nowoczesna stodoła będzie doskonałym wyborem dla wszystkich, których interesują projekty domów na wąską działkę. Dzięki temu rozwiązaniu inwestorzy nie muszą rezygnować z funkcjonalności ani atrakcyjnego wyglądu budynku, niezależnie od kształtu czy wielkości parceli.

 

Projekt domu Idealny 1 – dom stodoła z dużym, wielofunkcyjnym garażem dla wymagających użytkowników

W tym projekcie wyróżnia się duży dwustanowiskowy garaż wbudowany w bryłę domu. Takie rozwiązanie jest bardzo ekonomiczne i energooszczędne. Wielkość garażu jest naprawdę imponująca – ponad 8 m szerokości i 6 m głębokości pozwala nie tylko na wygodne zaparkowanie dwóch aut, ale również jednego lub dwóch motocykli.. Poza parkowaniem przestrzeń garażową możesz przeznaczyć na przechowywanie niezbędnych w codziennym użytkowaniu przedmiotów lub aranżację niewielkiego aneksu warsztatowego. Takie rozwiązanie powinien docenić każdy miłośnik domowego majsterkowania.

 

Projekt nowoczesnego domu z poddaszem – komfortowe rozwiązanie na każdą działkę

Projekt Idealny 1 jest przeznaczony przede wszystkim dla inwestorów poszukujących nowoczesne projekty domów z poddaszem. Jest to obecnie najpopularniejsza forma domu w naszym kraju, którą można realizować wszędzie tam gdzie warunki miejscowego planu zagospodarowania przestrzennego wykluczają inny typ zabudowy. Pomimo tego, że domy z poddaszem użytkowym mają na drugiej kondygnacji tzw. „skosy” to w tym projekcie nachylenie połaci dachowych wynosi 45 stopni dzięki czemu użytkowanie poddasza jest znacznie wygodniejsze.

 

Dom stodoła z nowoczesnym i wysokim wnętrzem

Projekt Idealny 1 posiada nowocześnie zaaranżowane wnętrze z pełnym program funkcjonalnym, który zaspokoi potrzeby nawet najbardziej wymagającego inwestora. Na parterze od strony ogrodu zlokalizowana jest obszerna zintegrowana strefa dzienna z salonem, dwupoziomową reprezentacyjną jadalnią, klatką schodową oraz dużą kuchnią z wyspą. Pod schodami znajduje się schowek, który można przeznaczyć na spiżarnię. Połączenie pomieszczeń na jednej pozbawionej barier przestrzeni robi niesamowite wrażenie, które potęguje otwarcie nad jadalnią. Jej wysokość podkreśla zabudowa nowoczesnego panoramicznego kominka wykończonego naturalnym łupkiem.

Środek parteru zajmuje strefa wejściowa z dużym holem, garderobą prowadzącą do garażu, łazienką oraz pokojem do pracy. Ta domowa pracownia może pełnić również funkcję pokoju gościnnego. Od frontu całość parteru zarezerwowana jest na bardzo duży garaż o szerokości ponad 8 metrów, w którym bez problemu zmieszczą się nie tylko dwa auta , ale również motocykl lub rowery dla całej rodziny oraz wszystkie narzędzia niezbędne do majsterkowania czy pielęgnacji ogrodu. Z garażu dostępne jest pomieszczenie techniczne na kocioł gazowy lub pompę ciepła.

Poddasze to prywatna intymna strefa domowników. Nowoczesne schody prowadzą bezpośrednio do dużej otwartej przestrzeni, która może stanowić miejsce wypoczynku lub zabaw dzieci. Stąd wejdziemy do umieszczonych z przodu domu sypialni dzieci oraz do łazienki i pralni z suszarnią. Tylną część poddasza z widokiem na ogród zajmuje luksusowa strefa rodziców obejmująca sypialnię główną ,przejściową garderobę oraz prywatną dużą łazienkę. Z sypialni rodziców można wyjść na balkon, który na parterze pełni funkcję zadaszenia wyjścia na taras. Wszystkie sypialnie na poddaszu są doskonale doświetlone nie tylko oknami połaciowymi, ale również wysokimi oknami w ścianach szczytowych.

 

Idealny1 – energooszczędny projekt z poddaszem użytkowym

Idealny 1 to projekt energooszczędny, zgodny z WT na 2021 r. Dokumentacja zawiera w cenie opracowanie wentylacji mechanicznej z rekuperacją. Źródłem ciepłej wody i ogrzewania jest kondensacyjny kocioł gazowy wspomagany kolektorami słonecznymi lub pompa ciepła. Dzięki temu projekt domu  spełnia aktualne wymagania dotyczące energooszczędności i pozwala na komfortowe użytkowanie przez cały rok. Projekt jest dostępny w trzech wariantach różniących się głównie rozplanowaniem części dziennej. Każdy z wariantów umożliwia dopasowanie układu funkcjonalnego do indywidualnych potrzeb oraz warunków działki. Ponadto wersja 2 ma układ poziomy z wjazdem do garażu na bocznej ścianie. To rozwiązanie sprawdzi się szczególnie na działkach o nietypowym kształcie lub ograniczonej szerokości, zapewniając wygodny dostęp do garażu i optymalne wykorzystanie przestrzeni. Zobacz koniecznie pozostałe wersje lub sprawdź inne projekty domów energooszczędnych z poddaszem dostępne w ofercie naszej pracowni!

 

Projekt domu Idealny 1 – podsumowanie zalet

  • projekt domu o tradycyjnej i ponadczasowej formie w stylu nowoczesnej stodoły
  • wąski trakt i zwarta bryła umożlwiająca lokalizację na wąskich działkach już od 17 m
  • bardzo funkcjonalny układ wnętrza zawierająca pełny program pomieszczeń
  • na parterze: bardzo duży dwustanowiskowy garaż z miejscem na rowery i narzędzia ogrodowe / wejście do domu osłonięte podcieniem / duży i dobrze doświetlony hol / wygodna przejściowa garderoba z garażu / w strefie wejściowej pokój gościnny – gabinet / zintegrowana otwarta część dzienna / kuchnia z wyspą i spiżarnią / reprezentacyjna dwupoziomowa jadalnia / wyjście na taras osłonięte balkonem
  • na poddaszu: otwarta przestrzeń wypoczynkowa dzieci / dwie duże sypialnie dzieci / pomieszczenie pralni i suszarni obok pokoi sypialnych / oddzielna strefa sypialni głównej z garderobą przejściową i dużą łazienką
  • projekt energooszczędny z rekuperacją w standardzie
  • posiada projekt ogrzewania pompą ciepła

Idealny 1 to propozycja dla osób, które cenią połączenie nowoczesnej architektury z funkcjonalnością i komfortem codziennego życia. Projekt sprawdzi się zarówno dla rodzin z dziećmi, jak i dla osób szukających domu na lata, który można łatwo dostosować do zmieniających się potrzeb.

 

Kompleksowa charakterystyka projektu Idealny 1 – funkcjonalność, energooszczędność i nowoczesny styl w jednym domu

Projekt Idealny 1 to propozycja, która łączy w sobie nowoczesną architekturę, funkcjonalność oraz wysoką energooszczędność. Dom został zaprojektowany z myślą o czteroosobowej rodzinie, która ceni sobie wygodę codziennego życia, przestrzeń oraz możliwość elastycznej aranżacji wnętrz. Klasyczna forma nowoczesnej stodoły, wysoki dwuspadowy dach i minimalistyczne detale sprawiają, że budynek prezentuje się ponadczasowo i elegancko, a jednocześnie doskonale wpisuje się w aktualne trendy architektury jednorodzinnej.

Zwarta bryła oraz niewielka szerokość umożliwiają realizację projektu nawet na wąskich działkach już od 17 metrów. Wbudowany od frontu duży, dwustanowiskowy garaż zapewnia nie tylko wygodne parkowanie, ale także miejsce na rowery, narzędzia ogrodowe czy aneks warsztatowy. Przemyślany układ funkcjonalny obejmuje pełny program pomieszczeń – na parterze znajduje się zintegrowana strefa dzienna z salonem, kuchnią z wyspą, reprezentacyjną jadalnią oraz praktycznym schowkiem pod schodami. Strefa wejściowa z dużym holem, garderobą, łazienką i pokojem do pracy zapewnia komfort i wygodę wszystkim domownikom.

Poddasze stanowi komfortową, wyciszoną przestrzeń przeznaczoną wyłącznie dla domowników. Otwarta przestrzeń wypoczynkowa, dwie duże sypialnie dzieci, pralnia z suszarnią oraz luksusowa strefa rodziców z garderobą i dużą łazienką gwarantują wygodę i prywatność. Wszystkie sypialnie są doskonale doświetlone dzięki wysokim oknom połaciowym i oknom w ścianach szczytowych.

Idealny 1 to projekt energooszczędny, zgodny z WT na 2021 rok. W standardzie znajduje się wentylacja mechaniczna z rekuperacją, a źródłem ciepłej wody i ogrzewania może być kondensacyjny kocioł gazowy, kolektory słoneczne lub pompa ciepła. Projekt dostępny jest w trzech wariantach, co pozwala dopasować układ domu do indywidualnych potrzeb i warunków działki – w tym także do działek o nietypowym kształcie lub ograniczonej szerokości.

Idealny 1 to dom, który rośnie razem z rodziną i jej potrzebami. To rozwiązanie dla osób, które szukają połączenia nowoczesnej estetyki, praktycznych rozwiązań i komfortu codziennego użytkowania – zarówno dziś, jak i w przyszłości.

Autorzy

arch. Krzysztof Borowski, arch. Piotr Rynkiewicz

Komentarze

Brak opinii, bądź pierwszym.

Dodaj opinię

FAQ

Czy projekt Idealny 1 nadaje się na wąską działkę?

Tak, projekt Idealny 1 został zaprojektowany z myślą o wąskich działkach – można go realizować już na parcelach o szerokości od 17 metrów.

Jakie rozwiązania energooszczędne zastosowano w projekcie domu Idealny 1?

W projekcie przewidziano wentylację mechaniczną z rekuperacją, możliwość zastosowania pompy ciepła lub kolektorów słonecznych oraz wysokiej klasy izolację termiczną, co przekłada się na niskie koszty eksploatacji.

Czy poddasze użytkowe w projekcie Idealny 1 można dowolnie aranżować?

Tak, poddasze użytkowe w projekcie Idealny 1 daje szerokie możliwości aranżacyjne – można tu urządzić sypialnie, strefę relaksu, domowe biuro, garderobę lub pokój zabaw dla dzieci.

Czy projekt Idealny 1 przewiduje garaż dwustanowiskowy?

Tak, w standardzie znajduje się bardzo duży garaż na dwa samochody z dodatkowym miejscem na rowery i narzędzia ogrodowe.

Jakie są warianty projektu Idealny 1?

Projekt dostępny jest w trzech wariantach, które różnią się głównie rozplanowaniem części dziennej oraz lokalizacją wjazdu do garażu (w tym wersja z wjazdem od bocznej ściany).

Czy dom spełnia aktualne normy energooszczędności?

Tak, projekt jest zgodny z Warunkami Technicznymi na 2021 rok i spełnia wszystkie wymagania dotyczące energooszczędności.

Czy można wprowadzić zmiany w projekcie Idealny 1?

Tak, istnieje możliwość wprowadzenia indywidualnych zmian w projekcie, aby jeszcze lepiej dopasować go do potrzeb inwestora i specyfiki działki.
© 2026 DOMY Z WIZJĄ Sp. z o.o. Wszelkie prawa zastrzeżone
Projekt i realizacja:Tworzenie stron internetowych - Jellinek