Projekt domu Odważny 1

Promocja
Do ulubionychUsuń z ulubionych
Nowoczesny projekt domu Odważny 1
Nowoczesny projekt domu Odważny 1
Nowoczesny projekt domu Odważny 1
Nowoczesny projekt domu Odważny 1
Nowoczesny projekt domu Odważny 1
Nowoczesny projekt domu Odważny 1
Nowoczesny projekt domu Odważny 1
Nowoczesny projekt domu Odważny 1
Nowoczesny projekt domu Odważny 1
Nowoczesny projekt domu Odważny 1

Powierzchnia użytkowa

158,00 m2

Powierzchnia garażu:

+37,90 m2

Powierzchnia kotłowni:

+8,10 m2

Koszt budowy

557 796 zł

Cena projektu

7 973 zł

9 380 zł
Do końca oferty zostało:
Dostępność:Od ręki
Ten projekt obejrzało: 69120 osób

Rzuty

Projekt domu Odważny 1 - Rzut parteru

Rzut parteru

Wersja
podstawowa
Wersja
lustrzana
Odważny 1 - Rzut parteruOdważny 1 - Rzut parteru

Powierzchnia użytkowa112,4 m2

1wiatrołap4,5 m2
2pom. gospodarcze - garderoba7,7 m2
3pom. gospodarcze - kotłownia8,1 m2
4pokój16,1 m2
5łazienka7,7 m2
6pom. gospodarcze - garderoba4,7 m2
7łazienka2,4 m2
8pokój - gabinet11,5 m2
9kuchnia + jadalnia26,7 m2
10pokój dzienny31,1 m2
11garaż37,9 m2
Drukuj kartę projektu Drukuj kartę projektu

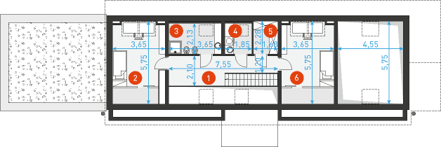
Projekt domu Odważny 1 - Rzut poddasza

Rzut poddasza

Wersja
podstawowa
Wersja
lustrzana
Odważny 1 - Rzut poddaszaOdważny 1 - Rzut poddasza

Powierzchnia użytkowa45,6 m2

1antresola - komunikacja12,1 m2
2sypialnia12,3 m2
3łazienka4,2 m2
4pom. gospodarcze - pralnia2,2 m2
5pom. gospodarcze - garderoba1,9 m2
6sypialnia12,9 m2

0,0 m2 - powierzchnia użytkowa
(0,0 m2) - powierzchnia podłogi

Drukuj kartę projektu Drukuj kartę projektu

Informacje szczegółowe

Pow. użytkowa ogółem

204,00 m2

Ilość pokoi

4

Garaż

2-stanowiskowy

Łazienki (z toaletami)

3

Powierzchnia zabudowy

210,90 m2

Min. szerokość działki

15,77 m

Min. długość działki

37,51 m

Wysokość w kalenicy

7,49 m

Kąt nachylenia dachu

45 °

Powierzchnia dachu

278,00 m2

Kubatura

796,00 m3

Warunki techniczne projektu na rok

2021
KONSTRUKCJA

zgodna z normami EUROKOD

FUNDAMENTY

tradycyjne
ławy i stopy żelbetowe.

ŚCIANY

bloczek silikatowy + wełna mineralna i styropian
na etapie adaptacji projektu istniej możliwość zamiany bloczka silikatowego na inny materiał o podobnych parametrach wytrzymałosciowych, np. na pustak ceramiczny.

ELEWACJA

cegła klinkierowa ręcznie formowana, płytka z włóknocementu

STROPY

żelbetowe wylewane
na etapie adaptacji projektu istnieje możliwość zmiany technologii stropu na gęstożebrowy lub prefabrykowany.

SCHODY

żelbetowe

DACH

płytka z włóknocementu
konstrukcja więźby przewidziana pod pokrycie lekkie dla I strefy wiatrowej i II strefy śniegowej.

Ogrzewanie

Kocioł gazowy

Ogrzewanie alternatywne

Pompa ciepła (płatny dodatek)

Wentylacja

Mechaniczna

EUco - Energia użytkowa

10,1 kWh/(m2rok)

EK - Energia końcowa

55,4 kWh/(m2rok)

EP - Energia pierwotna

69,6 kWh/(m2rok)
Zobacz dodatki podnoszące energooszczędność

Działka / Nasłonecznienie

Odważny 1 - Działka / NasłonecznienieOdważny 1 - Działka / Nasłonecznienie

Sprawdź warunki zabudowy lub wypis z MPZP

Poza minimalnymi wymiarami działki oraz odpowiednim nasłonecznieniem, istotne są również przypisane do każdej nieruchomości tzw. Warunki Zabudowy lub ograniczenia określone w Miejscowym Planie Zagospodarowania Przestrzennego. Jeśli masz wątpliwości oferujemy BEZPŁATNĄ ANALIZĘ WARUNKÓW ZABUDOWY.

Kosztorys

Kosztorys możesz zamówić łącznie z projektem lub oddzielnie korzystając z formularza zamówienia projektu. Kosztorys zamówiony łącznie z projektem jest dostarczany na płycie CD. Zamawiany oddzielnie jest plikiem w wersji elektronicznej wysyłanym na adres e-mail podany w formularzu.

Szacunkowy koszt budowy domu. Poziom cen netto: IV kwartał 2025

Prace ziemne i fundamenty

77 404 zł

Konstrukcja, strop oraz dach

259 377 zł

Stolarka okienna i drzwiowa

221 015 zł
Stan surowy zamknięty(netto)
557 796 zł

Sprawdź pozostałe pozycje w kosztorysie:

Prace ziemne i fundamenty

125 154 zł

Konstrukcja, strop oraz dach

362 539 zł

Stolarka okienna i drzwiowa

252 699 zł
Stan surowy zamknięty(netto)
740 392 zł

Sprawdź pozostałe pozycje w kosztorysie:

Dodatki

W celu poprawienia energooszczędności budynku oferujemy dodatkowe opracowania instalacyjne. Dodatkowe opracowania możesz zamówić łącznie z projektem lub oddzielnie korzystając z formularza zamówienia projektu. Jeżeli któryś z dodatków ma podany dłuższy czas realizacji niż projekt domu to wysyłamy go w określonym terminie oddzielną, bezpłatną przesyłką.

450 zł
Dostępność:Od ręki
450 zł
Dostępność:Od ręki
450 zł
Dostępność:Od ręki

Centrum informacji

Centrum informacji

Co zawiera projekt:

  • 3 egzemplarze projektu architektoniczno-budowlanego
  • 3 egzemplarze projektu technicznego
  • analizę i charakterystykę energetyczną
  • bezpłatną zgodę na zmiany
  • kopię uprawnień architektów i branżystów

Tu znajdziesz pozostałe i niezbędne informacje dotyczące wyboru i zakupu projektu:

Przejdź do centrum informacji

Centrum informacji

Realizacje

Warianty

Projekt domu - Odważny 2
Promocja
WT 2021

Odważny 2

154,40 m2
4
3

Podobne

Projekt domu - Ekonomiczny 4
Promocja
WT 2021
3
2
2
Projekt domu - Rodzinny 1
Promocja
WT 2021

Rodzinny 1

162,50 m2
4
3
2
Projekt domu - Rodzinny 2
Promocja
WT 2021

Rodzinny 2

130,50 m2
3
2
2

Opis projektu

Projekt domu Odważny 1 - nowoczesna stodoła z użytkowym poddaszem i garażem

Projekt nowoczesnej stodoły z poddaszem użytkowym przeznaczony dla 4 - 5-osobowej rodziny. Skierowany przede wszystkim do osób poszukujących oryginalnych rozwiązań projektowych i ceniących nowoczesną architekturę. Ten ultranowoczesny dom stodoła o powierzchni 150 m2 jest idealną propozycja dla osób poszukujących nowoczesnego parterowego domu z użytkowym poddaszem o optymalnej wielkości.

Dom typu nowoczesna stodoła z elewacją z cegły klinkierowej - elegancki i funkcjonalny projekt

Prosta, podłużna bryła przykryta dachem dwuspadowym oraz elewacja wykonana z tradycyjnej cegły klinkierowej odwołują się wprost do archetypu domu-schronienia, jednak pozostałe materiały wykończeniowe, duże przeszklenia oraz współczesne rozwiązanie wnętrza nadają jej zdecydowanie nowoczesnego charakteru. Nowoczesny charakter tego domu stodoły podkreśla również ostra monolityczna bryła ciemnego dachu pokrytego płytką włóknisto cementową Struktonit. Duże wąskoprofilowe okna, charakterystyczne dla współczesnej architektury, są osłonięte dodatkowo żaluzjami fasadowymi. Regulowane elektrycznie mieszczą się w systemowych kasetach ukrytych we wnękach dachowych dając wrażenie, że masywny dach niemal unosi się nad parterem. W wnętrzu salonu i jadalni od strony południowo-zachodniej długi pas przeszkleń sprawia, że okna stają się żywymi obrazami pokazującymi zmieniające się pory roku.

Projekt domu stodoły na wąską działkę - nowoczesne rozwiązanie już od 15 m szerokości

Uniwersalny układ funkcjonalny tego domu pozwala realizować go zarówno na działkach wąskich i długich, jak i na parcelach płytkich i szerokich. Niewielka szerokość budynku - zaledwie 7,7 m - sprawia, że projekt można z powodzeniem zrealizować już na działkach o szerokości od 15 m. To czyni projekt Odważny 1 wyjątkowym rozwiązaniem w kategorii nowoczesne projekty domów na wąską działkę, łączącym funkcjonalność z elegancką, nowoczesną formą.

Projekt domu nowoczesna stodoła 150 m² z poddaszem użytkowym

Powierzchnia użytkowa domu wpływa na koszty budowy i eksploatacji, dlatego wielu inwestorów uznaje, że optymalny projekt domu jednorodzinnego o powierzchni 150 m² to najlepszy wybór. To wystarczająca wielkość do zaprojektowania wygodnego i ergonomicznego projektu domu dla 4-5-osobowej rodziny. Taką powierzchnię posiada właśnie projekt „Odważny 1”.

Na parterze znajduje się otwarta część dzienna łącząca kuchnię, jadalnię oraz salon z wysokim reprezentacyjnym sufitem. Wysoki salon oraz szerokie przesuwne okna sprawiają, że ta otwarta nowoczesna przestrzeń wydaje się jeszcze większa. Od strony jadalni znajduje się wejście do gabinetu, który może pełnić funkcję pokoju gościnnego. Jeśli układ z otwartą kuchnią wydaje Ci się zbyt nowoczesny możesz w miejsce gabinetu przenieść kuchnię powiększając salon.

Środek domu, otwarty na dwie kondygnacje, łączy część wspólną z prywatną - strefę rodziców na parterze oraz pokoje dzieci na poddaszu użytkowym. Sypialnia rodziców posiada przejściową garderobę oraz dużą łazienkę z podwójną umywalką, prysznicem oraz dużą wanną wolnostojącą. Dzięki lokalizacji na parterze posiada bezpośredni dostęp do ogrodu. Dwustanowiskowy garaż w projekcie Odważny 1 stanowi oddzielną część konstrukcyjną, dzięki czemu można go zrealizować od razu, w późniejszym etapie budowy lub całkowicie z niego zrezygnować.

Na poddasze prowadzą nowoczesne jednobiegowe schody. Znajdują się tam dwie duże sypialnie dzieci, należąca do nich łazienka oraz garderoba i pomieszczenie pralnio-suszarni.

Nowoczesny projekt domu stodoły z tarasem - idealne miejsce na odpoczynek i spotkania

W naszym klimacie zadaszony taras to „must have” niemal każdego domu jednorodzinnego. W projekcie stodoły „Odważny 1” bezpośrednio za salonem znajduje się duży taras osłonięty wysuniętym nadwieszonym dachem. Bez problemu możesz postawić tam zewnętrzny zestaw wypoczynkowy, hamak lub stół ogrodowy z grillem. To idealne wręcz miejsce na odpoczynek, letnie przyjęcie lub spędzanie czasu z rodziną.

 

Energooszczędny projekt domu Odważny 1 - nowoczesna stodoła tania w utrzymaniu

Optymalna wielkość domu, zwarta bryła czy właściwa izolacja termiczna to kilka z zalet tego projektu wpływające na niskie koszty zużycia energii. Pozostałe to instalacje rekuperacji w standardzie oraz możliwość zamówienia łącznie z projektem dodatkowych instalacji energooszczędnych jak ogrzewanie pompą ciepła, ogrzewanie podłogowe czy płyta fundamentowa firmy Izodom.

 

Zalety projektu Odważny 1 - dlaczego warto wybrać ten dom? 

  • Prosta bryła domu stodoły o szerokości 7 m - możliwość budowy na działkach od 15 m szerokości.
  • Optymalna powierzchnia użytkowa 150-160 m² - wygodny metraż dla rodziny 4-5-osobowej.
  • Energooszczędny projekt domu - rekuperacja i ogrzewanie podłogowe w standardzie.
  • Przemyślany układ pomieszczeń - wyraźny podział na strefy funkcjonalne.
  • Dwustanowiskowy garaż z możliwością realizacji w dowolnym etapie budowy.
  • Nowoczesny salon z wysokim sufitem i dużymi przeszkleniami otwierającymi wnętrze na ogród.
  • Strefa rodziców na parterze - z garderobą, prywatną łazienką i bezpośrednim wyjściem do ogrodu.
  • Dwie przestronne sypialnie dzieci na poddaszu - z własną łazienką i garderobą.
  • Dodatkowe pomieszczenia użytkowe - garderoba i pralnio-suszarnia na poddaszu.
  • Ponadczasowa bryła domu stodoły z poddaszem - dopasowana do polskiego krajobrazu i zapisów MPZP.

Autorzy

arch. Krzysztof Borowski, arch. Piotr Rynkiewicz

Komentarze

  • D

    Denis

    Dodano : 19/10/2019

    Czy jest możliwość uzyskania większej liczby wizualizacji, szczególnie poddasza i przejścia do sypialni?

    • Administrator

      Dodano : 21/10/2019

      Dzień Dobry, wszystkie wizualizacje są zamieszczone na stronie. Pozdrawiamy Zespół Domy z Wizją

  • M

    Marzena

    Dodano : 25/7/2017

    jakiej firmy jest sofa w pokoju dziennym?

    • Administrator

      Dodano : 25/7/2017

      To włoska sofa modułowa Extrasoft firmy Living Divani : http://www.livingdivani.it/EN/Products/sofas/extrasoft_p490.aspx

  • M

    Marta

    Dodano : 11/7/2017

    Projekt jest wspaniały jednak przydatny byłby chociaż orientacyjny, uproszczony kosztorys - bez niego trudno zdecydować czy stać nas na realizację. Kiedy można się spodziewać kosztorysu?

    • Administrator

      Dodano : 11/7/2017

      Niestety nie mamy poglądowego kosztorysu ponieważ dokumentacja nie została jeszcze ukończona, ale na pewno nie jest to dom tani w budowie. Koszty realizacji znacznie podwyższają: elewacja z cegły klinkierowej, pokrycie dachu struktonitem oraz stolarka. Przy założeniu, że uśredniony koszt budowy systemem zleconym do stanu deweloperskiego to ok. 2800 zł/ brutto za 1 m2 pow. użytkowej ( biorąc pod uwagę również garaż i pom. gospodarcze) ten dom kosztowałby ok. 550 tyś. zł, ale ze względu na wymienione powyżej elementy może się podnieść o ok. 150 tyś. zł do kwoty 700 tyś. zł. Mówimy tutaj oczywiście o stanie deweloperskim czyli bez wykończonego pod klucz wnętrza. Niebawem wprowadzimy tańszą wersją, ale bez garażu tylko z systemową wiatą. Tutaj zastosowane materiały będą tradycyjne i większość rozwiązań wprowadziliśmy pod kątem obniżenia kosztów, zakładamy, że stan deweloperski nowej wersji będzie kosztował w przedziale 420 - 450 tyś.

  • S

    Szymon

    Dodano : 10/7/2017

    Imponujący projekt. Bardzo nam się podoba, aczkolwiek oczekujemy z niecierpliwością wersji 200 m2. Kiedy można się jej spodziewać?

    • Administrator

      Dodano : 10/7/2017

      Najwcześniej jesienią, pierwsza pojawi się wersja ekonomiczna.

  • Ł

    Łukasz

    Dodano : 23/6/2017

    Wakacje już się zaczęły :) kiedy można się spodziewać Odważnego w tańszej wersji? :)

    • Administrator

      Dodano : 23/6/2017

      Materiały do prezentacji już są gotowe, ale opóźniamy premierę ponieważ ze względu na sezon urlopowy nie jesteśmy w stanie określić dokładnego terminu dostępności projektu. Jak tylko to zrobimy zaprezentujemy go na stronie.

  • M

    Michał

    Dodano : 24/5/2017

    Witam, Czy wersja powiększona ciągle jest w planach? Bardzo podoba nam się ten projekt, myślimy jednak o jego powiększeniu do około 200 metrów kwadratowych. Kiedy można spodziewać się kosztorysu?

    • Administrator

      Dodano : 24/5/2017

      Oczywiście, po premierze tańszego wariantu planujemy również zaprezentowanie większej wersji, zwłaszcza, że dla osób, których nie ograniczają możliwości finansowe pierwszy wariant jest po prostu za mały. Prosimy o cierpliwość, ten projekt jest jednym z naszych ulubionych i chcemy spełnić oczekiwania przyszłych inwestorów, tak aby mogły powstać piękne realizacje:)

  • S

    Sylwia

    Dodano : 19/5/2017

    Czy już wiadomo kiedy pojawi sie projekt tańszej wersji? Wyczekujemy z utęsknieniem:)

    • Administrator

      Dodano : 19/5/2017

      Wiadomość do wszystkich zainteresowanych tańszym wariantem- Pracujemy nad nim:) Przepraszamy za opóźnienie, ale po drodze wpadły nam do harmonogramu dwa inne projekty, które otworzą nowe rodziny projektowe. Tymczasem potwierdzamy garść informacji, które pojawiły się wcześniej na temat Odważnego 2: układ funkcjonalny pozostanie bez zmian, ale wizualnie będzie znacznie się różnił od pierwowzoru. Ponieważ wygląd drugiej wersji determinują koszty elewacja budynku będzie w większej części tynkowana i na fragmentach wykończona drewnem. Dach będzie pokryty dachówką lub blachą. Nowa forma budynku oraz uproszczone materiały wykończeniowe wykluczają dodatkową bryłę garażu. Wiemy, że część zainteresowanych będzie z tego powodu niezadowolona, ale nie chcemy iść na kompromis funkcjonalny kosztem wyglądu. Ponadto trzeba pamiętać, że 1m2 powierzchni garażowej kosztuje niemal tyle samo co metr powierzchni mieszkalnej. Pojawi się za to najprawdopodobniej wiata garażowa, która nie wpłynie istotnie na wygląd bryły głównej i nie będzie droga. Prosimy jeszcze o cierpliwość, projekt na pewno ukaże się przed wakacjami.

  • B

    Bartek

    Dodano : 19/5/2017

    Kiedy będzie update tego projektu, miała być nowa wersja początkiem maja :)

  • S

    Sebastian

    Dodano : 18/5/2017

    Kiedy wersja ekonomiczniejsza, miał być początek maja :)

  • W

    Wioletta Pysiak

    Dodano : 23/4/2017

    Chciałam zapytać, czy model stołu i ew. krzeseł, to jakiś konkretny model dostępny na rynku?

    • Administrator

      Dodano : 23/4/2017

      Stół to model Scorpio Wood firmy Cattelan IItalia, a krzesła podobnie jak sofa, to produkt firmy Living Divani model George's. Włoska stylistyka! piękna i niestety kosztowna:)

  • P

    Paweł

    Dodano : 13/4/2017

    Bardzo , bardzo dobry projekt , czekam na kosztorys i pewnie w ciągu kilku miesięcy zamówię. Ale są małe dwa problemy 1. czy przeszklenia nie zabiją mnie finansowo przy inwestycji i 2. nie podoba mi się wejście do salonu , jadalni , gabinetu przez kuchnię. Kuchnię przeniosę do gabinetu.

  • P

    Piotrek

    Dodano : 08/4/2017

    1) Kiedy można się spodziewać kosztorysu oraz deklarowanych następnych wersji ( z wykorzystaniem innych/ tańszych materiałów wykończeniowych ) 2) czy istnieje możliwość umieszczenia otwartej kuchni w miejscu małego pokoju 11,5 przy salonie /jadalni

    • Administrator

      Dodano : 08/4/2017

      1. Tańszą wersję opublikujemy na początku maja. 2. Tak, kuchnię można przenieść w miejsce gabinetu.

  • A

    Anna

    Dodano : 03/4/2017

    Super projekt. Czy możliwa będzie rezygnacja z małego pokoju 11,5m2 na parterze i na miejsce tego pokoju wstawić kuchnię- z zagospodarowaniem miejsca pod schodami-szafki kuchenne oraz wyspą w miejscu gdzie jest jadalnia a jadalnie przenieść na miejsce obecnej kuchni?

    • Administrator

      Dodano : 03/4/2017

      Taka zmiana jest możliwa.

  • W

    Wioletta

    Dodano : 19/3/2017

    Projekt jest przepiękny.Czy planujecie Państwo zaprojektować mniejszą wersję tego domu?Jeżeli tak,to proszę o przybliżony termin.

    • Administrator

      Dodano : 19/3/2017

      Niebawem, tzn. na początku maja planujemy premierę wersji o takiej samej powierzchni użytkowej, ale z wykorzystanie tańszych materiałów, co powinno dość znacznie obniżyć koszty realizacji.

  • K

    Krystian

    Dodano : 18/3/2017

    Witam Projekt swietny mam tylko 1 pytanie: Czy mozna adaptowac pustke nad salonem na dodatkowy pokoj na pietrze?

    • Administrator

      Dodano : 18/3/2017

      Można w miejscu pustki umieścić pokój, ale poprzednia sypialnia, ze względu na charakter przejściowy powinna zostać otwarta, jako strefa rekreacyjna dla dzieci.

  • M

    Monika

    Dodano : 06/2/2017

    Projekt fantastyczny ale zastanawiam się nad jednym- czy okna w salonie się otwieraja/przesuwają?

    • Administrator

      Dodano : 06/2/2017

      Przesuwają - wąskie skrzydło przy jadalni oraz szerokie skrzydło przy kominku.

  • A

    Arek

    Dodano : 02/2/2017

    Czy możliwe jest przeniesie bramy garażowej na ścianę boczną ,tak jak są drzwi wejściowe oraz powiększenie garażu o 2 m?

    • Administrator

      Dodano : 02/2/2017

      Tak, te zmiany można wprowadzić na etapie adaptacji projektu do warunków miejscowych.

  • m

    marzena michałek

    Dodano : 23/1/2017

    Witam, Jeżeli to możliwe proszę o informację jakiej firmy zaprojektowano komplet wypoczynkowy w pokoju dziennym?

    • Administrator

      Dodano : 23/1/2017

      To włoska sofa modułowa Extrasoft firmy Living Divani : http://www.livingdivani.it/EN/Products/sofas/extrasoft_p490.aspx<br /> Moduły można dowolnie konfigurować. Droga, ale warta swojej ceny:)

  • A

    Ada

    Dodano : 22/1/2017

    Czy możliwe jest wykonanie stropu nad salonem (nie zaburzy to jego proporcji?) i dodanie okien tarasowych w sypialniach na piętrze, żeby doświetlić pokoje i wykorzystać przestrzeń nad garażem? Czy mogą Państwo podać orientacyjny koszt stanu deweloperskiego?

    • Administrator

      Dodano : 22/1/2017

      Z technicznego punktu widzenia nie ma przeszkód do zamknięcia stropu, ale pojawia się problem komunikacyjny ponieważ obecna sypialnia nad jadalnią będzie pomieszczeniem przejściowym. W takiej sytuacji wskazane byłoby pozostawienie tej przestrzeni jako otwarte miejsce rekreacyjne dla dzieci. Okno tarasowe można wstawić jedynie w sypialni od frontu. Kosztorys będzie dostępny po ukończeniu całej dokumentacji projektowej.

  • J

    Julita

    Dodano : 16/1/2017

    Projekt naprawdę robi wrażenie! Nowoczesny, prosty, ale także bardzo lekki i na szczęście pozbawiony przyciężkawych elementów zaczerpniętych z "architektury bunkrowej"

  • R

    Rafał

    Dodano : 10/1/2017

    Witam. Projekt bardzo fajny. Ale poczekam na większa wersje. Zdecydowanie przydał by się większy salon. W sumie fajnie by było żeby nad garażem był tarasik.

  • i

    iza

    Dodano : 04/1/2017

    No proszę wchodzę sobie jak zwykle na stronkę, żeby popodziwiać mój wymarzony przyszły dom parterowy 3, którego nic nie pobije, a tu taka niespodzianka. I co teraz?, chyba poczekam, bo może to najlepsze jest jednak dopiero przede mną:)

  • A

    Artur

    Dodano : 04/1/2017

    Witam panie Piotrze, naprawdę ciekawy. (Może to będzie moja następna realizacja:). Jedno pytanie: kuchnia dość skromna ...co z lodówką?

    • Administrator

      Dodano : 04/1/2017

      Na wizualizacji wkradł się drobny błąd:), piekarnik powinien być w słupku zabudowy bliżej ściany pod ekspresem do kawy. Lodówka znajduje się w drugim słupku zabudowy bliżej blatu roboczego ze zlewem.

  • A

    Anna

    Dodano : 02/1/2017

    Cudny!!!

  • M

    Magda

    Dodano : 02/1/2017

    Wreszcie coś na mają długą działkę z wjazdem od południa. Czy dobrze widzę, że garaż jest w zasadzie odrębnym modułem i można by go przenieść z boku - obok wejścia, aby wjazd był na wprost - bez skrętu?

  • A

    Aśka

    Dodano : 01/1/2017

    Witam, czy można dom poszerzyć o ok 2 metry? mamy wąską działkę, ale nie aż tak ;) Czy wejście do małego pokoju na parterze może być pod schodami, a nie z pokoju dziennego?

    • Administrator

      Dodano : 01/1/2017

      Jeśli mamy zachować właściwe proporcje budynku oraz istniejący schemat konstrukcyjny to projekt można maksymalnie poszerzyć o 60 cm w osiach konstrukcyjnych oraz dodatkowo wydłużyć z linią kalenicy w przedziale 09-1,5 m. Tak powiększony budynek w sumie zyska ok. 20 m2 pow. użytkowej więcej. Wejście do gabinetu można umieścić pod schodami tylko pod warunkiem wydłużenia części środkowej domu.

  • P

    Piotr

    Dodano : 28/12/2016

    Bardzo interesujący projekt. Zastanawia mnie w jak znacznym stopniu zastosowanie struktury nośnej ze stali (w zastępstwie murowanej) wpływa na koszt realizacji. W jakim zakresie cenowym należy się spodziewać kosztu realizacji?

    • Administrator

      Dodano : 28/12/2016

      W tym projekcie konstrukcja stalowa ogranicza się głównie do widocznych słupów w części dziennej. Nie podniesie to znacząco kosztów realizacji. Na wysokość kosztów wpłyną natomiast w znacznym stopniu takie elementy jak cegła klinkierowa, pokrycie dachowe z płytek włóknocementowych oraz duża narożna witryna.

  • P

    Piotr

    Dodano : 27/12/2016

    .....Ładny.wypisz wymaluj na moja działkę.

  • M

    Michał

    Dodano : 27/12/2016

    dzień dobry, projekt świetny. pytanie czy przewidujecie Państwo jego pomniejszenie, przykładowo o ten 11,5 m pokój na parterze i inne umieszczenie schodów?

    • Administrator

      Dodano : 27/12/2016

      Zastanawiamy się nad wprowadzeniem dwóch kolejnych wariantów: powiększonego, dla osób wymagających większej powierzchni oraz o takiej samej wielkości, ale z wykorzystaniem tańszych materiałów wykończeniowych - m.in rezygnację z cegły, zmianę pokrycia dachowego oraz mniej kosztowną stolarkę. W drugim wariancie układ funkcjonalny pozostałby taki sam, ale z zewnątrz dom wyglądałby zupełnie inaczej.

  • P

    Piotrek

    Dodano : 25/12/2016

    Kolejny świetny projekt. Myślałem, że mojej "miłości" do Ekonomicznego 2B nic nie przebije, ale najwidoczniej się myliłem. Ten projekt w stu procentach przemawia do moich gustów, zarówno pod względem estetyki (być może to zasługa wizualizacji), jak i rozplanowania pomieszczeń. Dobra robota Panowie.

  • M

    Michał

    Dodano : 25/12/2016

    Fenomenalny! Nieustanna obserwacja Państwa strony prowadzi mnie do wniosku, że zanim kupi się projekt Domów z Wizją trzeba się naprawdę dobrze zastanowić, bo kolejne projekty są rewelacyjne. Przestaje mieć znaczenie czy dom jest parterowy, piętrowy, dach płaski, spadzisty itd, po prostu jest super. Najważniejszym czynnikiem decyzyjnym staje się czas, a tym samym odpowiedź na pytanie - kupować czy jeszcze czekać ....? Gratuluję!

  • M

    Michał

    Dodano : 23/12/2016

    Bardzo fajny projekt. Z ajkiego materiału ma być zrobiona biała podłoga?

  • M

    Michał

    Dodano : 23/12/2016

    Świetny projekt. czas poszukać odpowiedniej działki. Pozdrawiam

  • D

    DOMY Z WIZJA

    Dodano : 22/12/2016

    Zapraszamy na prezentację nowego projektu skierowanego dla odważnych inwestorów, poszukujących domu o ciekawych rozwiązaniach estetycznych i użytkowych. Głównymi atutami tego projektu są niewielka szerokość oraz uniwersalny układ funkcjonalny umożliwiające lokalizowanie go na działkach wąskich i długich lub płytkich i szerokich. Dom posiada garaż dwustanowiskowy, który konstrukcyjnie jest oddzielony od bryły budynku dzięki czemu można wybudować go na późniejszym etapie lub z niego zrezygnować. Mamy nadzieję, że niebanalna forma oraz nowoczesne otwarte wnętrze zyska Państwa przychylność.

Dodaj opinię

FAQ

Czy 150 m² to dobra powierzchnia dla domu jednorodzinnego?

Tak. 150 m² to metraż, który uznaje się za optymalny dla 4-5-osobowej rodziny. Projekt Odważny 1 - nowoczesna stodoła ma przybliżoną powierzchnię użytkową, co pozwala zaplanować wygodną strefę dzienną, prywatną część rodziców i funkcjonalne poddasze dla dzieci.

Czy dom o powierzchni 150 m² można wybudować na wąskiej działce?

Tak, jeśli projekt został odpowiednio zaprojektowany. Odważny 1 ma szerokość jedynie 7,7 m, dzięki czemu można go wybudować już na działkach o szerokości od 15 m.

Ile kosztuje budowa domu 150 m²?

Według kosztorysu projektowego, szacunkowy koszt budowy domu Odważny 1 w stanie surowym zamkniętym wynosi około 365 566 zł netto (ceny z III kwartału 2021 r.). Należy jednak pamiętać, że obecne koszty budowy są wyższe ze względu na wzrost cen materiałów i robocizny.

Czy projekt domu Odważny 1 można wybudować na wąskiej działce?

Tak. Dzięki szerokości 7,7 m dom można zrealizować już na działkach o szerokości od 15 m, co czyni go idealnym wyborem na węższe parcele.

Czy projekt domu Odważny 1 ma poddasze użytkowe?

Tak. Poddasze w projekcie zostało w pełni wykorzystane - znajdują się tam dwie sypialnie dzieci, łazienka, garderoba i pralnio-suszarnia.

Czy projekt Odważny 1 przewiduje garaż?

Tak, w projekcie zaplanowano garaż dwustanowiskowy, który można zrealizować od razu lub pozostawić jego budowę na późniejszy etap.

Czy dom Odważny 1 jest energooszczędny?

Tak. W standardzie przewidziano rekuperację i ogrzewanie podłogowe, a dodatkowo istnieje możliwość zastosowania instalacji takich jak pompa ciepła czy płyta fundamentowa Izodom, co obniża koszty eksploatacji.

Jak wygląda strefa dzienna w projekcie Odważny 1?

Na parterze znajduje się przestronna część dzienna łącząca kuchnię, jadalnię i salon z wysokim sufitem oraz dużymi przeszkleniami. Dzięki temu wnętrze jest jasne, otwarte i funkcjonalne.

Czy w projekcie Odważny 1 zaplanowano taras?

Tak. Za salonem znajduje się zadaszony taras, który działa jak naturalne przedłużenie strefy dziennej i sprawdza się jako miejsce odpoczynku i spotkań rodzinnych.

Czy projekt Odważny 1 pasuje do polskich warunków?

Tak. Bryła domu z dachem dwuspadowym i tradycyjną formą stodoły jest zgodna z zapisami większości MPZP i dobrze wpisuje się w polski krajobraz.

Czy projekt Odważny 1 można modyfikować?

Tak. Adaptację projektu wykonuje lokalny architekt - można zmienić np. układ pomieszczeń, rodzaj instalacji czy szczegóły wykończenia, dopasowując dom do indywidualnych potrzeb.

Czy w projekcie domu Odważny 1 można zrobić kominek?

Tak. W strefie dziennej przewidziano możliwość montażu kominka, który uzupełni system ogrzewania i stworzy przytulny klimat.

Czy można zmienić układ pomieszczeń w projekcie Odważny 1?

Tak. Projekt można dostosować podczas adaptacji - np. zmienić rozmieszczenie kuchni, powiększyć salon czy inaczej zaplanować garderoby.

Czy dom w typie nowoczesnej stodoły jest praktyczny?

Tak. Odważny 1 łączy prostą formę stodoły z nowoczesnymi rozwiązaniami - dużymi przeszkleniami, otwartą częścią dzienną i funkcjonalnym podziałem pomieszczeń. Dzięki temu projekt jest zarówno estetyczny, jak i praktyczny w codziennym użytkowaniu.

Czy dom o powierzchni 150 m² może być energooszczędny?

Tak. Projekt Odważny 1 ma zwartą bryłę, rekuperację i ogrzewanie podłogowe w standardzie, a dodatkowo można zastosować pompę ciepła czy płytę fundamentową firmy Izodom. To rozwiązania, które obniżają koszty utrzymania budynku.

Czy dom o powierzchni 150 m² może mieć garaż dwustanowiskowy?

Tak. Odważny 1 przewiduje garaż na dwa samochody, który można zrealizować od razu lub w późniejszym etapie budowy, co daje elastyczność w planowaniu inwestycji.
© 2026 DOMY Z WIZJĄ Sp. z o.o. Wszelkie prawa zastrzeżone
Projekt i realizacja:Tworzenie stron internetowych - Jellinek