Projekt domu Radosny 4

Promocja
Do ulubionychUsuń z ulubionych
Nowoczesny projekt domu Radosny 4
Nowoczesny projekt domu Radosny 4
Nowoczesny projekt domu Radosny 4
Nowoczesny projekt domu Radosny 4
Nowoczesny projekt domu Radosny 4
Nowoczesny projekt domu Radosny 4

Powierzchnia użytkowa

93,50 m2

Powierzchnia garażu:

+22,30 m2

Powierzchnia kotłowni:

+3,90 m2

Koszt budowy

271 312 zł

Cena projektu

4 658 zł

5 480 zł
Do końca oferty zostało:
Dostępność:Od ręki
Ten projekt obejrzało: 25894 osób

Rzuty

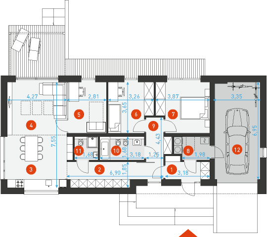
Projekt domu Radosny 4 - Rzut parteru

Rzut parteru

Wersja
podstawowa
Wersja
lustrzana
Radosny 4 - Rzut parteruRadosny 4 - Rzut parteru

Powierzchnia użytkowa93,5 m2

1wiatrołap4,3 m2
2hol10,6 m2
3kuchnia7,8 m2
4pokój dzienny + jadalnia24,7 m2
5gabinet9,8 m2
6sypialnia10,8 m2
7sypialnia13,0 m2
8kotłownia + pralnia3,9 m2
9komunikacja4,6 m2
10łazienka5,2 m2
11wc2,7 m2
12garaż22,3 m2
Drukuj kartę projektu Drukuj kartę projektu

Informacje szczegółowe

Pow. użytkowa ogółem

119,70 m2

Ilość pokoi

3

Garaż

1-stanowiskowy

Łazienki (z toaletami)

2

Powierzchnia zabudowy

155,00 m2

Min. szerokość działki

26,96 m

Min. długość działki

17,45 m

Wysokość w kalenicy

5,92 m

Kąt nachylenia dachu

30 °

Powierzchnia dachu

182,00 m2

Kubatura

714,00 m3

Warunki techniczne projektu na rok

2021
KONSTRUKCJA

zgodna z normami EUROKOD

FUNDAMENTY

tradycyjne
ławy i stopy żelbetowe.

ŚCIANY

bloczek silikatowy + styropian
na etapie adaptacji można zamienić na inny materiał o tej samej wytrzymałości na ściskanie 10-15 MPa, np. pustak ceramiczny.

ELEWACJA

tynk, na fragmentach elewacji deska kompozytowa
materiał dodatkowy podkreślający podziały elewacji, taki jak deska kompozytowa można zamienić na inny, np. drewno.

STROPY

drewniane
na etapie adaptacji istnieje możliwość zmiany na stropy gęstożebrowe.

DACH

system blachy dachowej Ruukki Classic M
konstrukcja więźby przewidziana pod pokrycie ciężkie dla I strefy wiatrowej i II strefy śniegowej.

Ogrzewanie

Kocioł gazowy i instalacja solarna

Ogrzewanie alternatywne

Pompa ciepła (płatny dodatek)

Wentylacja

Mechaniczna

EUco - Energia użytkowa

17,0 kWh/(m2rok)

EK - Energia końcowa

55,5 kWh/(m2rok)

EP - Energia pierwotna

69,0 kWh/(m2rok)
Zobacz dodatki podnoszące energooszczędność

Działka / Nasłonecznienie

Radosny 4 - Działka / NasłonecznienieRadosny 4 - Działka / Nasłonecznienie

Sprawdź warunki zabudowy lub wypis z MPZP

Poza minimalnymi wymiarami działki oraz odpowiednim nasłonecznieniem, istotne są również przypisane do każdej nieruchomości tzw. Warunki Zabudowy lub ograniczenia określone w Miejscowym Planie Zagospodarowania Przestrzennego. Jeśli masz wątpliwości oferujemy BEZPŁATNĄ ANALIZĘ WARUNKÓW ZABUDOWY.

Kosztorys

Kosztorys możesz zamówić łącznie z projektem lub oddzielnie korzystając z formularza zamówienia projektu. Kosztorys zamówiony łącznie z projektem jest dostarczany na płycie CD. Zamawiany oddzielnie jest plikiem w wersji elektronicznej wysyłanym na adres e-mail podany w formularzu.

Szacunkowy koszt budowy domu. Poziom cen netto: IV kwartał 2024

Prace ziemne i fundamenty

39 410 zł

Konstrukcja, strop oraz dach

151 213 zł

Stolarka okienna i drzwiowa

80 689 zł
Stan surowy zamknięty(netto)
271 312 zł

Sprawdź pozostałe pozycje w kosztorysie:

Prace ziemne i fundamenty

63 029 zł

Konstrukcja, strop oraz dach

222 447 zł

Stolarka okienna i drzwiowa

92 093 zł
Stan surowy zamknięty(netto)
377 569 zł

Sprawdź pozostałe pozycje w kosztorysie:

Dodatki

W celu poprawienia energooszczędności budynku oferujemy dodatkowe opracowania instalacyjne. Dodatkowe opracowania możesz zamówić łącznie z projektem lub oddzielnie korzystając z formularza zamówienia projektu. Jeżeli któryś z dodatków ma podany dłuższy czas realizacji niż projekt domu to wysyłamy go w określonym terminie oddzielną, bezpłatną przesyłką.

450 zł
Dostępność:Od ręki
450 zł
Dostępność:7-14 dni

Centrum informacji

Centrum informacji

Co zawiera projekt:

  • 3 egzemplarze projektu architektoniczno-budowlanego
  • 3 egzemplarze projektu technicznego
  • analizę i charakterystykę energetyczną
  • bezpłatną zgodę na zmiany
  • kopię uprawnień architektów i branżystów

Tu znajdziesz pozostałe i niezbędne informacje dotyczące wyboru i zakupu projektu:

Przejdź do centrum informacji

Centrum informacji

Warianty

Projekt domu - Radosny 5
Promocja
WT 2021

Radosny 5

128,40 m2
4
3
1
Projekt domu - Radosny 3
Promocja
WT 2021

Radosny 3

93,40 m2
3
2
Projekt domu - Radosny 2
Promocja
WT 2021

Radosny 2

80,80 m2
2
2
1
Projekt domu - Radosny 1
Promocja
WT 2021

Radosny 1

81,90 m2
2
2

Podobne

Projekt domu - Ekonomiczny 1
Promocja
WT 2021
2
1
Projekt domu - Ekonomiczny 1A
Promocja
WT 2021
3
1
Projekt domu - Ekonomiczny 2
Promocja
WT 2021

Ekonomiczny 2

102,20 m2
3
2
Projekt domu - Ekonomiczny 2A
Promocja
WT 2021
4
2
Projekt domu - Ekonomiczny 3
Promocja
WT 2021

Ekonomiczny 3

102,80 m2
3
2
Projekt domu - Ekonomiczny 4
Promocja
WT 2021
3
2
2
Projekt domu - Ekonomiczny 5
Promocja
WT 2021

Ekonomiczny 5

111,10 m2
4
2
Projekt domu - Ekonomiczny 4T
Promocja
WT 2021
3
2
Projekt domu - Ekonomiczny 2T
Promocja
WT 2021
4
2

Opis projektu

Projekt domu „Radosny 4” – parterowa stodoła z garażem

To ciekawy projekt parterowego domu stodoły z garażem wbudowanym w bryłę budynku. Prosta podłużna forma z dachem dwuspadowym oraz wejściem na elewacji bocznej jednoznacznie nawiązuje do zabudowy gospodarczej, ale współczesne materiały elewacyjne oraz duże okna nadają jej nowoczesnego wykończenia.

Parterowy dom stodoła z garażem i 3 sypialniami do 100 m2

Na powierzchni niecałych 100 m2 zaprojektowaliśmy wygodny program pomieszczeń  dla rodziny 2+1 lub pary. Projekt „Radosny 4” ma czytelny liniowy układ wnętrza z podziałem na część dzienną oraz sypialną. Po jednej stronie budynku jest umieszczony jednostanowiskowy garaż. Dzięki dużej głębokości na całą szerokość budynku po zaparkowaniu auta pozostaje w nim jeszcze sporo miejsca na inne przedmioty – opony, rowery czy narzędzia ogrodowe. Z garażu można przejść do pomieszczenia gospodarczego na kocioł gazowy lub pompę ciepła, pełniącego również funkcję pralni. Z niego wchodzimy do wiatrołapu. Po drugiej stronie domu znajduje się zintegrowana część dzienna z wysokim salonem kuchnią i jadalnią. Z salonu możemy przejść do pokoju, który może być idealnym miejscem na domowe biuro. Środek budynku to część intymna z dwoma sypialniami. Obie posiadają wnęki na szafy. Obok nich znajduje się duża łazienka. Druga łazienka z prysznicem jest obok salonu. Na co dzień pełni funkcję toalety, ale jeśli przyjadą goście  można ich przenocować w gabinecie i wtedy toaleta staje się łazienką gościnną. Obie strefy: sypialną i dzienną, łączy korytarz z długą szafą wnękową, idealną na przechowywanie sezonowych ubrań oraz wielu przedmiotów codziennego użytku. Na przechowywanie można przeznaczyć również całe poddasze nieużytkowe, na które można wejść z pomieszczenia gospodarczego przy pomocy rozkładanych schodów.

Nowoczesna parterowa stodoła z wnętrzem typu loft

Specyficznym elementem wnętrza tego projektu jest wysoka i połączona strefa dzienna z salonem, kuchnią i jadalnią. Zaproponowana przez nas na wizualizacjach aranżacja tej części domu przywodzi na myśl industrialny loft. Wysoki deskowany sufit z oknami połaciowymi, prosta zabudowa kuchenna z betonowym blatem, zacierana podłoga z mikrocementu czy antracytowe stalowe przeszklenia gabinetu sprawiają, że wnętrze to bardziej przypomina artystyczną pracownię niż salon w tradycyjnym domu. Jeśli lubisz proste i praktyczne rozwiązania oraz masz duszę artysty to być może ta stodoła - loft będzie dla Ciebie idealna

Projekt domu stodoły z garażem – tani w budowie i eksploatacji

Prosta, pozbawiona zbędnych dekoracji bryła, nieskomplikowana konstrukcja, drewniane stropy oraz ekonomiczne materiały wykończeniowe to recepta na tanią budowę. Odpowiednia grubość izolacji termicznej oraz energooszczędne rozwiązania takie jak rekuperacja, pompa ciepła czy ogrzewanie podłogowe to z kolei przepis na redukcję rachunków związanych z ogrzewaniem domu. Projekt domu stodoły „Radosny 4” posiada wszystkie te elementy. To idealna propozycja dla tych, którzy dysponują ograniczonym budżetem na realizację i nie chcą ponosić wysokich kosztów utrzymania nieruchomości.  

Zalety projektu:

  • Parterowy dom stodoła do 100 m2 z garażem
  • Wygodny program pomieszczeń dla 2 – 3-osobowej rodziny
  • Układ funkcjonalny z wyraźnym podziałem na część sypialną i otwartą strefę dzienną, 3 sypialnie, 2 łazienki
  • Wysoka część dzienna z salonem, kuchnią i jadalnią typu loft
  • Duża powierzchnia do przechowywania na strychu
  • Prosty w budowie, o nieskomplikowanej konstrukcji z drewnianymi stropami
  • Zoptymalizowane koszty realizacji na etapie projektowym dzięki zastosowaniu niedrogich materiałów elewacyjnych, pokrycia dachu oraz stolarki PVC
  • Budynek energooszczędny z wentylacją mechaniczną i ogrzewaniem podłogowym w standardzie
  • Możliwość zakupu dodatkowych instalacji zmniejszających zużycie energii
    Projekt posiada mniejsze wersje w tym bez garażu

Autorzy

arch. Krzysztof Borowski, arch. Piotr Rynkiewicz

Komentarze

Brak opinii, bądź pierwszym.

Dodaj opinię

© 2026 DOMY Z WIZJĄ Sp. z o.o. Wszelkie prawa zastrzeżone
Projekt i realizacja:Tworzenie stron internetowych - Jellinek