Projekt domu Dom z patio 2

Nowość
Do ulubionychUsuń z ulubionych
Nowoczesny projekt domu Dom z patio 2
Nowoczesny projekt domu Dom z patio 2
Nowoczesny projekt domu Dom z patio 2
Nowoczesny projekt domu Dom z patio 2
Nowoczesny projekt domu Dom z patio 2
Nowoczesny projekt domu Dom z patio 2
Nowoczesny projekt domu Dom z patio 2
Nowoczesny projekt domu Dom z patio 2

Powierzchnia użytkowa

149,00 m2

Powierzchnia garażu:

+37,40 m2

Powierzchnia kotłowni:

+5,90 m2

Koszt budowy

595 154 zł

Cena projektu

9 830 zł

Dostępność:Od ręki
Ten projekt obejrzało: 51414 osób

Rzuty

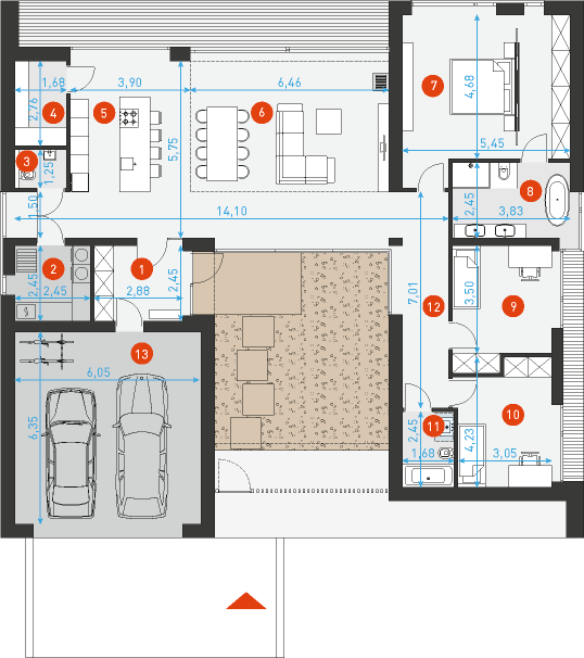
Projekt domu Dom z patio 2 - Rzut parteru

Rzut parteru

Wersja
podstawowa
Wersja
lustrzana
Dom z patio 2 - Rzut parteruDom z patio 2 - Rzut parteru

Powierzchnia użytkowa149,0 m2

1hol wejściowy + garderoba6,9 m2
2kotłownia - pralnia5,9 m2
3wc2,0 m2
4spiżarnia4,5 m2
5kuchnia23,4 m2
6pokój dzienny + jadalnia39,0 m2
7sypialnia + garderoba25,7 m2
8łazienka9,2 m2
9sypialnia12,1 m2
10sypialnia11,9 m2
11łazienka4,0 m2
12komunikacja10,3 m2
13garaż37,4 m2

Informacje szczegółowe

Pow. użytkowa ogółem

192,30 m2

Ilość pokoi

3

Garaż

2-stanowiskowy

Łazienki (z toaletami)

3

Powierzchnia zabudowy

246,00 m2

Min. szerokość działki

26,95 m

Min. długość działki

26,45 m

Wysokość w kalenicy

5,97 m

Kąt nachylenia dachu

1 °

Powierzchnia dachu

230,70 m2

Kubatura

1 012,00 m3

Warunki techniczne projektu na rok

2021
KONSTRUKCJA

zgodna z normami EUROKOD

FUNDAMENTY

tradycyjne
ławy i stopy żelbetowe.

ŚCIANY

bloczek silikatowy + styropian
na etapie adaptacji można zamienić na inny materiał o tej samej wytrzymałości na ściskanie 10-15 MPa, np. pustak ceramiczny.

ELEWACJA

płytki klinkierowe ręcznie formowane, na fragmentach płyta HPL
materiał dodatkowy podkreślający podziały elewacji, taki jak płyta HPL można zamienić na inny, np. drewno.

STROPY

żelbetowe wylewane
na etapie adaptacji istnieje możliwość zmiany na stropy gęstożebrowe.

DACH

płaski – membrana dachowa
konstrukcja stropodachu – płyta żelbetowa monolityczna. I strefa wiatrowa, II strefa śniegowa.

Ogrzewanie

Kocioł gazowy i instalacja solarna

Ogrzewanie alternatywne

Pompa ciepła (płatny dodatek)

Wentylacja

Mechaniczna

EUco - Energia użytkowa

29,7 kWh/(m2rok)

EK - Energia końcowa

80,5 kWh/(m2rok)

EP - Energia pierwotna

68,6 kWh/(m2rok)
Zobacz dodatki podnoszące energooszczędność

Działka / Nasłonecznienie

Dom z patio 2 - Działka / NasłonecznienieDom z patio 2 - Działka / Nasłonecznienie

Sprawdź warunki zabudowy lub wypis z MPZP

Poza minimalnymi wymiarami działki oraz odpowiednim nasłonecznieniem, istotne są również przypisane do każdej nieruchomości tzw. Warunki Zabudowy lub ograniczenia określone w Miejscowym Planie Zagospodarowania Przestrzennego. Jeśli masz wątpliwości oferujemy BEZPŁATNĄ ANALIZĘ WARUNKÓW ZABUDOWY.

Kosztorys

Kosztorys możesz zamówić łącznie z projektem lub oddzielnie korzystając z formularza zamówienia projektu. Kosztorys zamówiony łącznie z projektem jest dostarczany na płycie CD. Zamawiany oddzielnie jest plikiem w wersji elektronicznej wysyłanym na adres e-mail podany w formularzu.

Szacunkowy koszt budowy domu. Poziom cen netto: IV kwartał 2025

Prace ziemne i fundamenty

70 101 zł

Konstrukcja, strop oraz dach

247 861 zł

Stolarka okienna i drzwiowa

277 192 zł
Stan surowy zamknięty(netto)
595 154 zł

Sprawdź pozostałe pozycje w kosztorysie:

Prace ziemne i fundamenty

114 055 zł

Konstrukcja, strop oraz dach

358 715 zł

Stolarka okienna i drzwiowa

315 107 zł
Stan surowy zamknięty(netto)
787 877 zł

Sprawdź pozostałe pozycje w kosztorysie:

Dodatki

W celu poprawienia energooszczędności budynku oferujemy dodatkowe opracowania instalacyjne. Dodatkowe opracowania możesz zamówić łącznie z projektem lub oddzielnie korzystając z formularza zamówienia projektu. Jeżeli któryś z dodatków ma podany dłuższy czas realizacji niż projekt domu to wysyłamy go w określonym terminie oddzielną, bezpłatną przesyłką.

450 zł
Dostępność:Od ręki
450 zł
Dostępność:7-14 dni

Centrum informacji

Centrum informacji

Co zawiera projekt:

  • 3 egzemplarze projektu architektoniczno-budowlanego
  • 3 egzemplarze projektu technicznego
  • analizę i charakterystykę energetyczną
  • bezpłatną zgodę na zmiany
  • kopię uprawnień architektów i branżystów

Tu znajdziesz pozostałe i niezbędne informacje dotyczące wyboru i zakupu projektu:

Przejdź do centrum informacji

Centrum informacji

Warianty

Projekt domu - Dom z patio 3
Nowość
WT 2021

Dom z patio 3

139,60 m2
3
3
Projekt domu - Dom z patio 1
WT 2021

Dom z patio 1

192,80 m2
4
3
2

Podobne

Projekt domu - Parterowy 3
WT 2021

Parterowy 3

145,10 m2
4
2
2
Projekt domu - Parterowy 1A
WT 2021

Parterowy 1A

193,30 m2
4
3
2

Opis projektu

Dom z Patio 2 - Nowoczesny dom parterowy z Patio poniżej 150 m2

Nowoczesny dom parterowy z płaskim dachem, garażem dwustanowiskowym oraz wewnętrznym patio o optymalnej powierzchni użytkowej poniżej 150 m2 przeznaczony dla rodziny z jednym lub dwójką dzieci.

Nowoczesny Dom Parterowy z Patio - projekt o wyjątkowej formie

Dom z Patio 2 to wyjątkowy projekt nowoczesnego domu parterowego, który zachwyca swoją formą i funkcjonalnością. Zdecydowanie nowoczesna architektura, płaski dach, elewacja wykończona długą płytką klinkierową oraz płytami HPL imitującymi kamień tworzą unikalny wygląd zewnętrzny. Duże, wielkoformatowe i niskoprofilowe okna wpuszczają mnóstwo światła do wnętrza, tworząc piękny kontrast z otaczającym dom ogrodem. Wejściowe patio stanowi harmonijne połączenie przestrzeni wewnętrznej i zewnętrznej, dodając uroku całemu projektowi.

Dom z Patio 2 jest mniejszą wersją popularnego projektu Dom z Patio 1. Pomimo zmniejszonej powierzchni, zachowano reprezentacyjną część dzienną, dzięki czemu nowoczesna przestrzeń życiowa jest niemal taka sama jak w wersji 1.

Projekt niedużego domu parterowego - funkcjonalność i rozkład pomieszczeń

Projekt Dom z Patio 2 to przykład nowoczesnej i funkcjonalnej architektury. Budynek jest podzielony na trzy części, wszystkie zorientowane wokół centralnie umieszczonego patio, które stanowi serce domu.

Pierwsza część zawiera dwustanowiskowy garaż, przestronny hol wejściowy z garderobą oraz pomieszczenie gospodarcze, w którym znajduje się pompa ciepła, pralnia i suszarnia. To idealne miejsce na przechowywanie i obsługę techniczne domu.

Otwarta część dzienna to druga część projektu. Wysoki dwupoziomowy salon i jadalnia tworzą przestrzeń pełną światła i przestronności. Nowoczesna kuchnia z wyspą oraz przylegająca duża spiżarnia to raj dla miłośników gotowania. Wc jest wygodnie dostępne z tej strefy. Duże okna otwierają się na taras oraz wejściowe patio, zapewniając doskonałe doświetlenie i dostęp do ogrodu.

Trzecia część to strefa sypialniana. Znajduje się tu sypialnia główna rodziców z dużą garderobą i luksusową łazienką. Dodatkowo, są dwa pokoje i łazienka. Jeden z tych pokoi może pełnić funkcję sypialni dla dziecka, a drugi może być używany jako domowa pracownia – idealne miejsce do pracy zdalnej.

Energooszczędny dom parterowy z patio

Projekt Dom z Patio 2 jest nie tylko piękny, ale także energooszczędny. Został zbudowany w technologii murowanej z elementami i stropami żelbetowymi. Spełnia aktualne wymagania dotyczące niskiego zapotrzebowania na energię. Standardowo wyposażony jest w instalację wentylacji mechanicznej z rekuperacją oraz ogrzewanie podłogowe. Ogrzewanie zapewnia kondensacyjny kocioł gazowy wspomagany kolektorami słonecznymi. Dodatkowo, istnieje możliwość zamówienia projektu instalacji powietrznej lub gruntowej pompy ciepła oraz projektu instalacji inteligentnych, co pozwoli dalej obniżyć koszty eksploatacyjne i zwiększyć komfort mieszkania.

Podsumowanie zalet Domu z Patio 2

Oto podsumowanie najważniejszych zalet projektu Dom z Patio 2:

  • Zdecydowanie oryginalna forma przeznaczona dla miłośników nowoczesnej architektury.
  • Dom parterowy zapewnia komfort użytkowania, a wejścia do ogrodu z wszystkich pomieszczeń sprawiają, że kontakt z naturą jest zawsze na wyciągnięcie ręki.
  • Pomimo niedużej powierzchni użytkowej, zapewniamy optymalny program funkcjonalny dla rodziny 2+1.
  • Układ funkcjonalny obejmuje wiele zalet, takich jak wejściowe patio, dwustanowiskowy garaż, duże pomieszczenie gospodarcze, wysoki reprezentacyjny salon, przestronna kuchnia z wyspą, duża spiżarnia, oraz wyraźnie oddzieloną część intymną z sypialniami.
  • Projekt jest energooszczędny z rekuperacją w standardzie, co przekłada się na niższe rachunki za energię.
  • Istnieje opcja zamówienia projektu ogrzewania pompą ciepła, co jeszcze bardziej zwiększa efektywność energetyczną i ekologiczność domu.


Projekt Dom z Patio 2 to marzenie o nowoczesnym, funkcjonalnym, i energooszczędnym domu parterowym, który spełnia oczekiwania współczesnej rodziny. Zapraszamy do bliższego zapoznania się z naszą ofertą i możliwością realizacji tego wyjątkowego projektu.

Autorzy

arch. Krzysztof Borowski, arch. Piotr Rynkiewicz

Komentarze

Brak opinii, bądź pierwszym.

Dodaj opinię

© 2026 DOMY Z WIZJĄ Sp. z o.o. Wszelkie prawa zastrzeżone
Projekt i realizacja:Tworzenie stron internetowych - Jellinek