Projekt domu Aura 1

Nowość
Do ulubionychUsuń z ulubionych
Nowoczesny projekt domu Aura 1
Nowoczesny projekt domu Aura 1
Nowoczesny projekt domu Aura 1
Nowoczesny projekt domu Aura 1
Nowoczesny projekt domu Aura 1
Nowoczesny projekt domu Aura 1
Nowoczesny projekt domu Aura 1
Nowoczesny projekt domu Aura 1

Powierzchnia użytkowa

164,70 m2

Powierzchnia garażu:

+41,60 m2

Powierzchnia kotłowni:

+5,60 m2

Koszt budowy

482 770 zł

Cena projektu

10 520 zł

Dostępność:Od ręki
Ten projekt obejrzało: 21223 osób
Aura 1
Aura 1
Aura 1
Aura 1
Aura 1
Aura 1
Aura 1
Aura 1

Zobacz w 3D

play icon

Obejrzyj film

Rzuty

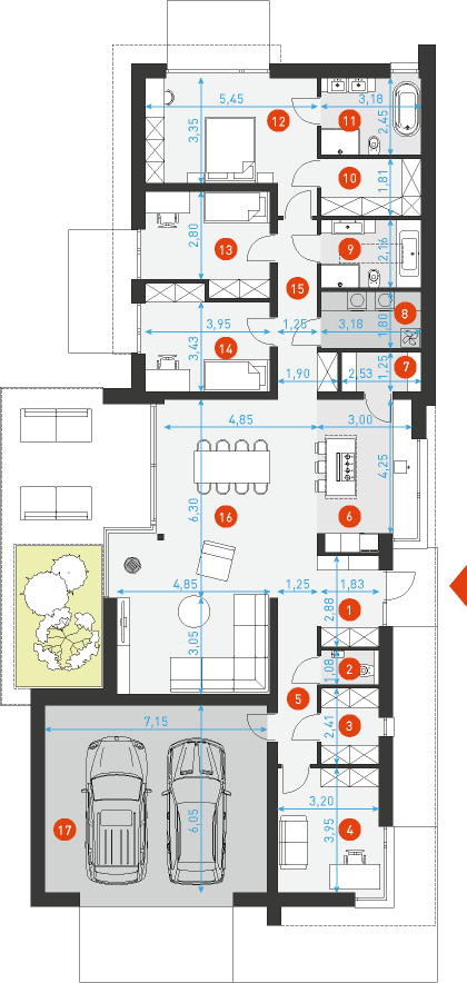
Projekt domu Aura 1 - Rzut parteru

Rzut parteru

Wersja
podstawowa
Wersja
lustrzana
Aura 1 - Rzut parteruAura 1 - Rzut parteru

Powierzchnia użytkowa164,7 m2

1hol wejściowy5,1 m2
2wc1,9 m2
3garderoba4,3 m2
4pokój – gabinet12,4 m2
5komunikacja8,9 m2
6kuchnia13,6 m2
7spiżarnia3,0 m2
8kotłownia – pralnia5,6 m2
9łazienka6,7 m2
10garderoba5,6 m2
11łazienka7,6 m2
12sypialnia19,3 m2
13sypialnia12,0 m2
14sypialnia12,1 m2
15komunikacja7,7 m2
16pokój dzienny + jadalnia44,5 m2
17garaż41,6 m2
Drukuj kartę projektu Drukuj kartę projektu

Informacje szczegółowe

Pow. użytkowa ogółem

211,90 m2

Ilość pokoi

4

Garaż

2-stanowiskowy

Łazienki (z toaletami)

3

Powierzchnia zabudowy

261,00 m2

Min. szerokość działki

19,55 m

Min. długość działki

36,35 m

Wysokość w kalenicy

3,79 m

Kąt nachylenia dachu

1 °

Powierzchnia dachu

266,00 m2

Kubatura

933,70 m3

Warunki techniczne projektu na rok

2021
KONSTRUKCJA

zgodna z normami EUROKOD

FUNDAMENTY

żelbetowa płyta fundamentowa

ŚCIANY

bloczek silikatowy
na etapie adaptacji można zamienić na inny materiał o tej samej wytrzymałości na ściskanie 10-15 MPa, np. pustak ceramiczny.

ELEWACJA

tynk, na fragmentach płytka klinkierowa i deska elewacyjna
materiał dodatkowy podkreślający podziały elewacji, taki jak płytka klinkierowa można zamienić na inny, np. drewno.

STROPY

żelbetowe, wylewane
na etapie adaptacji istnieje możliwość zmiany na stropy gęstożebrowe.

DACH

dach płaski - membrana dachowa
strefy obciążenia dachu: I wiatrowa i II śniegowa.

Ogrzewanie

Powietrzna pompa ciepła

Wentylacja

Mechaniczna
Zobacz dodatki podnoszące energooszczędność

Działka / Nasłonecznienie

Aura 1 - Działka / NasłonecznienieAura 1 - Działka / Nasłonecznienie

Sprawdź warunki zabudowy lub wypis z MPZP

Poza minimalnymi wymiarami działki oraz odpowiednim nasłonecznieniem, istotne są również przypisane do każdej nieruchomości tzw. Warunki Zabudowy lub ograniczenia określone w Miejscowym Planie Zagospodarowania Przestrzennego. Jeśli masz wątpliwości oferujemy BEZPŁATNĄ ANALIZĘ WARUNKÓW ZABUDOWY.

Kosztorys

Kosztorys możesz zamówić łącznie z projektem lub oddzielnie korzystając z formularza zamówienia projektu. Kosztorys zamówiony łącznie z projektem jest dostarczany na płycie CD. Zamawiany oddzielnie jest plikiem w wersji elektronicznej wysyłanym na adres e-mail podany w formularzu.

Szacunkowy koszt budowy domu. Poziom cen netto: III kwartał 2025

Prace ziemne i fundamenty

74 158 zł

Konstrukcja, strop oraz dach

247 668 zł

Stolarka okienna i drzwiowa

160 944 zł
Stan surowy zamknięty(netto)
482 770 zł

Sprawdź pozostałe pozycje w kosztorysie:

Prace ziemne i fundamenty

101 065 zł

Konstrukcja, strop oraz dach

359 232 zł

Stolarka okienna i drzwiowa

180 457 zł
Stan surowy zamknięty(netto)
640 754 zł

Sprawdź pozostałe pozycje w kosztorysie:

Dodatki

W celu poprawienia energooszczędności budynku oferujemy dodatkowe opracowania instalacyjne. Dodatkowe opracowania możesz zamówić łącznie z projektem lub oddzielnie korzystając z formularza zamówienia projektu. Jeżeli któryś z dodatków ma podany dłuższy czas realizacji niż projekt domu to wysyłamy go w określonym terminie oddzielną, bezpłatną przesyłką.

450 zł
Dostępność:Od ręki
450 zł
Dostępność:Od ręki

Centrum informacji

Centrum informacji

Co zawiera projekt:

  • 3 egzemplarze projektu architektoniczno-budowlanego
  • 3 egzemplarze projektu technicznego
  • analizę i charakterystykę energetyczną
  • bezpłatną zgodę na zmiany
  • kopię uprawnień architektów i branżystów

Tu znajdziesz pozostałe i niezbędne informacje dotyczące wyboru i zakupu projektu:

Przejdź do centrum informacji

Centrum informacji

Podobne

Projekt domu - Parterowy 3
WT 2021

Parterowy 3

145,10 m2
4
2
2
Projekt domu - Parterowy 1A
WT 2021

Parterowy 1A

193,30 m2
4
3
2

Opis projektu

Aura 1 – nowoczesny dom parterowy z płaskim dachem i osłoniętym tarasem 

Projekt Aura 1 to propozycja dla osób poszukujących komfortowego, nowoczesnego domu parterowego o czytelnym, praktycznym układzie funkcjonalnym. Projekt ten łączy nowoczesną stylistykę z funkcjonalnym wnętrzem, tworząc idealne warunki do życia dla rodziny 2+2. Dom ma powierzchnię 164 m² oraz pomieszczenie gospodarcze o powierzchni 5,5 m². Dodatkowym atutem jest przestronny garaż dwustanowiskowy o powierzchni 41 m². 

Nowoczesna bryła z płaskim dachem i dużymi przeszkleniami

Zewnętrzna forma budynku opiera się na dynamicznej, nowoczesnej bryle z płaskimi dachami. Wykończenie elewacji płytką betonową typu long w zestawieniu z pionową deską kompozytową nadaje budynkowi minimalistycznego, ale wyrazistego charakteru. Duże przeszklenia oraz szerokie otwarcia na ogród sprawiają, że wnętrze domu jest jasne, naturalnie doświetlone i otwarte na otoczenie.

Nowoczesny dom parterowy z płaskim dachem na wąską działkę 

Projekt Aura 1 jest przystosowany do realizacji na działkach o minimalnej szerokości 19,55 m, co czyni go idealnym wyborem dla inwestorów posiadających wąskie parcele, ale oczekujących przestronnego, funkcjonalnego wnętrza.

Projekt parterowego domu dla rodziny 2+2 – poznaj funkcjonalny układ liniowy

Wnętrze domu Aura 1 zostało zaprojektowane w przejrzystym układzie liniowym. Schemat liniowy pozwala na logiczne oddzielenie stref: wejściowej, dziennej oraz sypialnej. W strefie frontowej znajduje się dwustanowiskowy garaż o szerokości 7 m, gabinet (mogący pełnić funkcję pokoju gościnnego), garderoba, wc oraz przestronny hol wejściowy Centralnym punktem domu jest strefa dzienna z kuchnią z wyspą i salonem otwartym na ogród. Duże, wielkoformatowe okna otwierają wnętrze na zadaszony taras, co pozwala cieszyć się przestrzenią o każdej porze roku. Tuż obok kuchni znajduje się praktyczna spiżarnia, która ułatwia codzienne funkcjonowanie.

Komfortowa strefa prywatna – trzy sypialnie i dwie łazienki

W tylnej części domu znajduje się prywatna strefa nocna. Zaprojektowano tu dwa pokoje dzieci z własną łazienką, a także odrębną strefę rodziców z prywatną garderobą i komfortową łazienką. Wszystkie pokoje mają wyjścia na ogród, co dodatkowo podnosi komfort mieszkańców. W tej części domu przewidziano także wydzielone pomieszczenie gospodarcze z funkcją pralni i suszarni, które ułatwia utrzymanie porządku i organizację codziennych obowiązków domowych.

Podsumowanie – dlaczego warto wybrać projekt domu Aura 1?

  • Nowoczesna parterowa forma z płaskim dachem,
  • Nieduża szerokość budynku  umożliwiająca budowę na wąskich działkach,
  • Czytelny plan wnętrza z wyraźnym podziałem na strefy,
  • Duży garaż na dwa auta, część wejściowa połączona z garderobą i wc,
  • Nowoczesna otwarta strefa dzienna łącząca salon, jadalnię i kuchnię,
  • Przestronna kuchnia z wyspą i spiżarnią,
  • Salon i jadalnia połączone z dużym, osłoniętym dachem tarasem,
  • Cztery pokoje, w tym sypialnia główna z prywatną łazienką i garderobą,
  • Oddzielne pomieszczenie pralni i suszarni,
  • Energooszczędne technologie, w tym rekuperacja w standardzie,

Aura 1 to przemyślany projekt parterowego domu dla rodziny, który łączy nowoczesną estetykę z codziennym komfortem. 

Autorzy

arch. Krzysztof Borowski, arch. Piotr Rynkiewicz

Komentarze

Brak opinii, bądź pierwszym.

Dodaj opinię

FAQ

Jaki to jest projekt domu Aura 1?

Projekt domu Aura 1 to nowoczesny dom parterowy z płaskim dachem, dużymi przeszkleniami oraz funkcjonalnym układem wnętrza dla rodziny 2+2. Dom wyróżnia się minimalistyczną bryłą, osłoniętym tarasem oraz wygodnym podziałem na strefę dzienną i prywatną

Czy projekt Aura 1 nadaje się na wąską działkę?

Tak, projekt Aura 1 został zaprojektowany z myślą o stosunkowo wąskich działkach. Minimalna szerokość działki wymagana do realizacji projektu wynosi 19,55 m. Dzięki liniowemu układowi pomieszczeń dom pozostaje bardzo funkcjonalny mimo kompaktowej szerokości bryły.

Ile metrów ma dom Aura 1?

Powierzchnia użytkowa domu Aura 1 wynosi 164,7 m². Dodatkowo projekt obejmuje garaż dwustanowiskowy o powierzchni około 41,6 m² oraz pomieszczenie gospodarcze. Łączna powierzchnia użytkowa całego budynku to około 211,9 m².

Czy Aura 1 to projekt domu energooszczędnego?

Tak, Aura 1 został przygotowany zgodnie z normami WT 2021 i uwzględnia nowoczesne rozwiązania energooszczędne. W standardzie znajduje się wentylacja mechaniczna z rekuperacją, ogrzewanie podłogowe oraz powietrzna pompa ciepła.

Ile sypialni ma projekt Aura 1?

Projekt przewiduje trzy komfortowe sypialnie oraz dodatkowy gabinet, który może pełnić funkcję pokoju gościnnego lub domowego biura. Dzięki temu dom dobrze sprawdzi się zarówno dla rodziny z dziećmi, jak i osób pracujących zdalnie.

Czy w projekcie Aura 1 znajduje się garaż dwustanowiskowy?

Tak, projekt domu Aura 1 posiada przestronny garaż dwustanowiskowy o szerokości około 7 metrów. Garaż został połączony funkcjonalnie z częścią wejściową domu, garderobą oraz pomieszczeniem gospodarczym.

Jak wygląda układ pomieszczeń w projekcie Aura 1?

Wnętrze domu Aura 1 zostało podzielone na trzy główne strefy: wejściową, dzienną oraz prywatną. Centralną częścią domu jest salon połączony z jadalnią i kuchnią z wyspą. W tylnej części budynku znajdują się sypialnie oraz łazienki.

Czy projekt Aura 1 ma spiżarnię?

Tak, przy kuchni zaprojektowano praktyczną spiżarnię, która zwiększa wygodę codziennego użytkowania domu oraz pozwala lepiej zorganizować przestrzeń kuchenną

Czy dom Aura 1 ma zadaszony taras?

Tak, projekt Aura 1 posiada duży, osłonięty taras połączony bezpośrednio z salonem i jadalnią. Dzięki dużym przeszkleniom taras staje się naturalnym przedłużeniem strefy dziennej domu.

Czy Aura 1 to dobry projekt domu dla rodziny 2+2?

Tak, Aura 1 został zaprojektowany właśnie z myślą o rodzinie 2+2. Funkcjonalny układ pomieszczeń, oddzielna strefa rodziców, pokoje dzieci oraz wygodna część dzienna sprawiają, że dom zapewnia wysoki komfort codziennego życia.

Jakie ogrzewanie przewidziano w projekcie Aura 1?

W standardzie projekt uwzględnia powietrzną pompę ciepła oraz ogrzewanie podłogowe. Istnieje także możliwość zamówienia dodatkowego opracowania dla gruntowej pompy ciepła.

Czy projekt domu Aura 1 ma płaski dach?

Tak, Aura 1 to nowoczesny projekt domu parterowego z płaskim dachem wykończonym membraną dachową. Taka forma podkreśla minimalistyczny i nowoczesny charakter budynku.

Ile kosztuje budowa domu Aura 1?

Szacunkowy koszt budowy domu Aura 1 zależy od wybranego systemu realizacji. Według uproszczonego kosztorysu stan surowy zamknięty może wynosić około 482 tys. zł netto w systemie gospodarczym lub około 640 tys. zł netto w systemie zleconym.

Czy projekt Aura 1 ma pralnię i pomieszczenie gospodarcze?

Tak, w projekcie przewidziano wydzielone pomieszczenie gospodarcze z funkcją pralni i suszarni, co znacząco poprawia komfort organizacji codziennych obowiązków domowych.

Dlaczego warto wybrać projekt domu Aura 1?

Aura 1 to projekt nowoczesnego domu parterowego, który łączy minimalistyczną architekturę, energooszczędne rozwiązania oraz bardzo funkcjonalny układ wnętrza. Duże przeszklenia, płaski dach, garaż dwustanowiskowy i komfortowa strefa prywatna sprawiają, że projekt odpowiada współczesnym potrzebom rodzin szukających wygodnego domu premium.

Czy Aura 1 to jeden z gotowych projektów domów dla nowoczesnej rodziny?

Tak, Aura 1 należy do kategorii gotowych projektów domów nowoczesnych, które zostały zaprojektowane z myślą o wygodnym codziennym użytkowaniu. Funkcjonalny układ pomieszczeń, duże przeszklenia oraz energooszczędne rozwiązania sprawiają, że projekt odpowiada potrzebom współczesnych rodzin.

Dlaczego gotowe projekty domów takie jak Aura 1 cieszą się dużą popularnością?

Gotowe projekty domów pozwalają szybciej rozpocząć budowę oraz dokładnie przeanalizować układ pomieszczeń i koszty inwestycji jeszcze przed zakupem projektu. Aura 1 dodatkowo wyróżnia się nowoczesną architekturą, płaskim dachem oraz komfortową strefą dzienną z widokiem na ogród.

Dlaczego nowoczesne projekty domów parterowych są tak popularne?

Nowoczesne projekty domów parterowych cieszą się dużą popularnością przede wszystkim ze względu na wygodę codziennego użytkowania, funkcjonalny układ pomieszczeń oraz nowoczesny wygląd. Brak schodów sprawia, że taki dom jest komfortowy zarówno dla rodzin z dziećmi, jak i seniorów. Inwestorzy doceniają także łatwiejszą komunikację między pomieszczeniami, większe możliwości połączenia wnętrza z ogrodem oraz nowoczesne rozwiązania energooszczędne. Współczesne gotowe projekty domów parterowych często oferują duże przeszklenia, otwarte strefy dzienne i minimalistyczną architekturę zgodną z aktualnymi trendami.

Czy warto wybrać gotowy projekt domu parterowego?

Tak, gotowy projekt domu parterowego to rozwiązanie, które pozwala szybciej rozpocząć budowę i dokładnie przeanalizować funkcjonalność budynku jeszcze przed zakupem projektu. Gotowe projekty domów są zazwyczaj dopracowane pod względem układu pomieszczeń, ergonomii oraz kosztów realizacji. Dodatkową zaletą jest możliwość wyboru projektu dopasowanego do wielkości działki, liczby domowników oraz stylu architektonicznego. Inwestorzy coraz częściej wybierają nowoczesne projekty domów parterowych, ponieważ łączą komfort życia, estetykę i energooszczędność.

Jakie gotowe projekty domów są najczęściej wybierane przez inwestorów?

Największym zainteresowaniem cieszą się obecnie gotowe projekty domów nowoczesnych, energooszczędnych oraz funkcjonalnych. Inwestorzy najczęściej wybierają domy parterowe z dużymi przeszkleniami, otwartą strefą dzienną, garażem dwustanowiskowym oraz zadaszonym tarasem. Popularne są również projekty domów z płaskim dachem, które wyróżniają się minimalistyczną bryłą i nowoczesnym charakterem. Coraz więcej osób zwraca także uwagę na rozwiązania ekologiczne, takie jak pompa ciepła, rekuperacja czy ogrzewanie podłogowe.

Czy gotowe projekty domów z płaskim dachem są praktyczne?

Tak, gotowe projekty domów z płaskim dachem są bardzo praktyczne i coraz częściej wybierane przez inwestorów szukających nowoczesnej architektury. Płaski dach pozwala uzyskać minimalistyczną bryłę budynku, a jednocześnie daje możliwość zastosowania nowoczesnych technologii, takich jak instalacje fotowoltaiczne czy zielony dach. Domy z płaskim dachem często mają także większe przeszklenia oraz bardziej nowoczesny układ wnętrz. Dobrze zaprojektowany dach płaski jest trwały, funkcjonalny i zgodny z aktualnymi standardami budownictwa energooszczędnego.

Jakie są zalety domu parterowego z płaskim dachem?

Dom parterowy z płaskim dachem łączy nowoczesny wygląd z wygodą codziennego życia. Największą zaletą jest funkcjonalny układ pomieszczeń bez schodów oraz minimalistyczna architektura, która doskonale wpisuje się w aktualne trendy budowlane. Takie gotowe projekty domów często oferują duże przeszklenia, lepsze doświetlenie wnętrz oraz wygodne połączenie salonu z tarasem i ogrodem. Płaski dach pozwala również na bardziej nowoczesne rozwiązania techniczne i estetyczne, dzięki czemu dom wygląda elegancko i nowocześnie przez wiele lat.
© 2026 DOMY Z WIZJĄ Sp. z o.o. Wszelkie prawa zastrzeżone
Projekt i realizacja:Tworzenie stron internetowych - Jellinek