- Projekty domów
- Popularne
- Wielkość
- Kondygnacje
- Garaż
- Dach
- Działka
- Rodzaj zabudowy
- Inne kategorie projektów
- Projekty domów dla developera
- Projekty domów z pompą ciepła
- Projekty domów z rekuperacją
- Projekty domów z ogrzewaniem podłogowym
- Projekty domów z wyspą kuchenną
- Projekty domów z antresolą
- Projekty domów z wnętrzami
- Projekty domów z poddaszem do adaptacji
- Nietypowe projekty domów
- Projekty domów z płytą fundamentową
- Projekty premium
- Panoramy
- Realizacje
- Centrum informacji
- Dla dewelopera
- Kontakt


















Komentarze
Paweł
Dodano : 01/10/2017
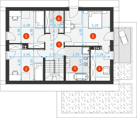
Witam, czy zmiana dachu na dach bez okapów na wzór projektu Atrakcyjny 3 zaburzyłoby proporcje i estetykę domu? Czy istniałaby możliwość stworzenia takiej modyfikacji przez Państwa?
Administrator
Dodano : 01/10/2017
Zmiana dachu na bezokapowy nie wpłynie negatywnie na proporcję budynku o ile zostanie wprowadzony właściwy kąt dachu. Forma dachu bezokapowego wygląda zdecydowanie najlepiej z kątem 42 lub 45 stopni. Nie jest to skomplikowana modyfikacja i można ją bez problemu wykonać na etapie adaptacji projektu do warunków miejscowych.
Sławek
Dodano : 26/2/2017
Chcielibyśmy z narzeczoną obejrzeć wygodnego po wybudowaniu. Od pól roku szukamy projektu i ten wydaje nam się optymalny.. Jesteśmy z wielkopolski, często odwiedzamy okolice Wrocławia. Jeżeli ktoś chciałbym pokazać dwój dom, nawet w budowie proszę o kontakt
Natalia
Dodano : 01/12/2016
Witam Czy ktoś buduje lub wybudował ten dom na śląsku lub w okolicy? Kraków, Zakopane?
Arek
Dodano : 17/5/2016
Witam Pytanie juz sie pojawilo czy zamiast bloczkow silikatowych mozna uzyc gazobetonu badz tez Ytong. Czy maja Panstwo u siebie takie wyliczenia jezeli chodzi o wytrzymalosc i czy beda one spelnialy normy. Czy jest tez mozliwosc uzycia gazobetonu do budowy budynku a tylko w miejscach narazonych na wysoki nacisk silikatowych bloczkow. jezeli tak kto moze takie zmiany zatwierdzic.
Administrator
Dodano : 17/5/2016
Jako zamiennik bloczka silikatowego można stosować pustaka ceramicznego ponieważ oba materiały mają podobna wytrzymałość na ściskanie w przedziale 10-15 MPa. Beton komórkowy natomiast charakteryzuje się bardzo niskim parametrem wytrzymałościowym w tej kategorii - maksymalnie 5 MPa. Przez to w miejscach zwiększonych obciążeń ściana z tego materiału może się rysować. Jedynym argumentem przemawiającym za betonem komórkowym jest jego lepsza izolacyjność, jeśli w ścianę wstawimy wzmacniające słupy żelbetowe to ten argument traci racjonalność, dlatego uważamy że wybór Ytonga ma sens tylko w przypadku projektów bardzo prostych, o niewymagającej konstrukcji, wykorzystujących kompleksowo elementy tej technologii.
justyna
Dodano : 12/4/2016
Witam. czy ktoś z okolic Wrocławia buduje lub wybudował dom wygodny3 i byłby skłonny go pokazać? proszę o kontakt jsloninska@gmail.com
Ewa
Dodano : 03/4/2016
Witam, czy rezygnacja z jednego miejsca garażowego jest możliwa? Cz dzięki temu koszty budowy znacząco by się zmniejszyły, bo nie poniosło by się aż takich kosztów przy izolacji tarasu?
Administrator
Dodano : 03/4/2016
Jak najbardziej, to nie jest skomplikowania zmiana, którą można wprowadzić na etapie adaptacji projektu.
Patrycja
Dodano : 02/2/2016
Witam, Razem z mężem jesteśmy zdecydowani na projekt "wygodny 3", spełnia wszystkie nasze oczekiwania i ma bardzo mądrze zaprojektowane pomieszczenia. Chcielibyśmy jednak prowadzić jedną zmianę dotyczącą dachu, zlikwidować wykusz w największej sypialni i zrównać tym samym dach. W to miejsce chcielibyśmy wstawić 2 okna dachowe, czy jest taka możliwość? bądź też czy jest możliwość uzyskania zgody na taką zmianę?
Administrator
Dodano : 02/2/2016
Jak najbardziej można wykonać taką zmianę i oczywiście wydamy na nią zgodę:)
Marcin
Dodano : 08/11/2015
Witam, będę wdzięczny jeśli ktoś z budujących ten dom zgodzi się na pokazanie go w "realu". Proszę o kontakt na maila Kasznia@wp.pl
Monika
Dodano : 24/8/2015
Witam, czy ktoś wybudował ten dom w województwie kujawsko pomorskim lub jego okolicach i byłby skłonny go pokazać choćby w stanie surowym ? Czy w realu wygląda jakby odrazu wchodziło się do salonu ? proszę o odpowiedź kurtyka.m@wp.pl
PIOTR_K
Dodano : 25/7/2015
@PIOTR: my również chcemy budować pod Wrocławiem. Czy możemy prosić o kontakt w celu obejrzenia domu? piotrekk12_1982@o2.pl
Natalia
Dodano : 25/2/2015
Jeżeli ktoś z Państwa wybudował dom wg tego projektu w Wielkopolsce, bardzo proszę o kontakt.
Piotr
Dodano : 25/2/2015
Witam, Pod Wrocławiem razem z żoną budujemy ten właśnie domek ;)
Maciej
Dodano : 10/2/2015
Witam, czy ktoś z Państwa wybudował dom w okolicy Wielkopolski, jeśli tak byłbym wdzięczny za spotkanie, z góry dziękuje i pozdrawiam Maciej
Bartosz
Dodano : 13/11/2014
Witam. Czy ktoś z Państwa budował ten dom w promieniu 200 KM od Olsztyna? Czy można prosić o przesłanie kilku zdjęć z realizacji? Może pracownia dysponuje takimi zdjęciami?
Tomasz
Dodano : 25/10/2014
Witam chciałbym odwiedzić kogoś z Państwa z Małopolski kto zdecydował się na budowę domu Wygodny 3 .Bede bardzo wdzięczny za możliwość ogladniecia budowy czy tez domu email tomaszolszewski@o2.pl Pozdrawiam
Piotr
Dodano : 24/7/2014
Witam. Bardzo podoba mi sie ten projekt. Czy istnieje mozliwosc poszerzenia garazu o 1m aby pomiescic 2 duze auta i jak wplynie to na ostateczny wyglad budynku? Czy mozna zastapic dwie bramy garazowe jedna duza? Pozdrawiam
Administrator
Dodano : 24/7/2014
Garaż o szerokości 605 cm jest już bardzo wygodny, ale jeśli ktoś potrzebuje więcej nie widzimy problemu z jego poszerzeniem oczywiście w granicach rozsądku. Podwójna brama garażowa nie jest w tym projekcie przypadkiem ze względu na zastosowanie na elewacji płyty włóknisto-cementowej. Ciężar takiej płyty przekracza dopuszczalne obciążenie standardowych mechanizmów otwierających dla bram na dwa auta. Rozwiązaniem jest zastosowanie lżejszego materiału, inne wykończenie elewacji lub mechanizmy otwierające wykonywane na indywidualne zamówienie.
Patrycja
Dodano : 16/7/2014
Otwarta cześć tarasowa nad garażem rodzi ryzyko przeciekania. Jak oceniacie pomysł zabudowania tej części dachem a w ten sposób uzyskaną przestrzeń wykorzystać np na dodatkowe pomieszczenia?
Administrator
Dodano : 16/7/2014
Właściwa technologia dachu płaskiego połączona z rzetelnym wykonaniem to gwarantowany przepis na bezawaryjna eksploatację. Można również zrobić tradycyjny dach nad garażem, ale to już nie będzie ten sam projekt.
Edyta
Dodano : 02/3/2014
Witam, Bardzo mi się podoba ten projekt w opcji zamiany lokalizacji gabinetu z kuchnia na parterze. Chciałabym tylko potwierdzić czy przy takim wariancie istnieje możliwość zabudowy podcienia (tego do którego prowadza drzwi z garażu) na spiżarnię i dodatkowo zrobienia okna w kuchni na ścianie ogrodowej. Dodatkowo mam pytanie czy istniej możliwość zastąpienia lukarny na pietrze oknem polaciowym? Pozdrawiam Edyta
Administrator
Dodano : 02/3/2014
Obie zmiany są możliwe do wprowadzenia.
Katarzyna
Dodano : 16/11/2013
Witam, interesuje mnie czy jest możliwe, aby ten projekt z dwustanowiskowym garazem mial rozklad parteru wygodnego 2. Chodzi mi o to aby kuchnia byla przedłużeniem salonu w miejsu pokoju na dole a pokój w miejscu kuchni. Zalezy mi na wersji 3 z ukladem wersji 2, czy to jest możliwe. Mamy jeszcze problem z planem zagospodarowania przestrzennego, dzialka ma wym. 34x34 a wymóg planu zagosp. to wys kalenicy od 9-12 m i szerokosc elewacji frontowej 12 do 14 m , kalenica dluzsza równoległa do drogi. na dobrą sprawę to chyba żaden z z Państwa projektów nie spełnia tak rygorystycznych norm, jeśli załozyc że chcielibyśmy mieć dwusnanowiskowy garaż +około 180 m. Wjazd mamy od półn wschodu. Prosze o inf. Czy zmiany są możliwe i poradę czy te wymogi planu zagosp. mozna jakos zapewnić w tym czy może innym projekcie. Dziękuję
Administrator
Dodano : 16/11/2013
Zamiana lokalizacji kuchni z gabinetem nie jest przeszkodą. główny problem w Pani przypadku to zapisy miejscowego planu, których niestety nie można ominąć. Ze względu na szerokość elewacji frontowej tej projekt nie spełnia wymagań administracyjnych. W naszej ofercie jest tylko jeden projekt, zgodny z Pani oczekiwaniami oraz zapisami planu - to "Atrakcyjny 1".
Magda
Dodano : 08/11/2013
Witam, Proszę o informację, jak rozwiązane jest odwodnienie i izolacja części tarasowej nad garażem.
Administrator
Dodano : 08/11/2013
Dach nad garażem jest izolowany membraną EPDM balastowaną żwirem. Odwodnienie odbywa się wpustami umiejscowionymi w warstwie izolacji termicznej, które następnie odprowadzają wodę do rur spustowych.
Daniel
Dodano : 01/8/2013
Witam, projekt wygląda bardzo zachęcającą, jednak jestem ciekaw czy jest możliwa jego modyfikacja tak, żeby można było wykonać podpiwniczenie. A jeśli tak to wykonuję ją już architekt adaptacyjny czy może ktoś od Państwa? Z góry dziękuję za odpowiedź. Pozdrawiam Daniel
Administrator
Dodano : 01/8/2013
Podpiwniczyć można każdy budynek pod warunkiem, że pozwalają na to warunki gruntowe, dlatego decyzję o ewentualnym doprojektowaniu dolnej kondygnacji należy podejmować po przeprowadzeniu badań określających nośność gruntu i poziom lustra wody. W przypadku projektów gotowych najczęściej projekt podpiwniczenia wykonują lokalni architekcie adaptujący.
Karolina
Dodano : 11/7/2013
Witam, bardzo podoba mi się ten projekt i mam pytanie (być może trywialne dla osób bardziej zorientowanych w temacie) czy istnieje możliwość takiej adaptacji projektu by zmieścił sie na działce węższej o 35 cm?
Administrator
Dodano : 11/7/2013
Są dwie możliwości adaptacji: zwężenie bryły garażu o wymaganą wartość lub likwidacja okna w kuchni na ścianie szczytowej.
Wojtek
Dodano : 24/5/2013
Witam bardzo podoba nam sie ten projekt. Moze ktos kto buduje ten dom zechce podzielic sie z nami swoja opinia ,zdjeciami z realizacji itp. pozdrawiam
Joanna
Dodano : 21/4/2013
Witam wszystkich, widzę, że parę osób przymierzało się do budowy domu wg tego projektu. Czy moglibyście się podzielić wrażeniami? Jeśli już wybudowaliście - czy wnętrze jest funkcjonalne, czy robiliście jakieś przeróbki? Macie jakieś propozycje zmian? Z góry dziękuję za komentarze:) Pozdrawiam, Joanna
k
Dodano : 23/1/2013
do Artura: jeśli jest Pan tak wybredny to proszę zamówić projekt indywidualny! a nie do proj. za 3 tyś mieć szereg uwag, a podejście klient nasz pan....idz pan do biedronki i zobacz nastawienie, póżniej idz pan do najlepszegu butiku w wawie i też zobacz nastawienie-klient nasz pan .... za 3 koła...śmiech....
Wojciech
Dodano : 08/11/2012
Witam serdecznie. Jestem zainteresowany projektem "wygodny 3". Miejscowy plan zagospodarowania przestrzennego zobowiazuje mnie do budowy domu z dachem dwuspadowym o nachyleniu 45 st. Nachylenie dachu w tym projekcie wynosi 40 st. Czy jest mozliwa zmiana kata do 45 st? Jaki bylby ewntualny koszt takiej zmiany w projekcie? Pozdrawiam i zycze milego dnia. Wojciech
Administrator
Dodano : 08/11/2012
Technicznie taka modyfikacja jest oczywiście możliwa jednak zwiększenie kąta nachylenia o 5 stopni będzie miało widoczny wpływ na proporcję budynku i podział elewacji - w tym przypadku kalenica podniesie się o kilkadziesiąt centymetrów co w następstwie powiększy proporcje dachu i poddasza w stosunku do parteru. Takie zmiany wprowadza za naszą zgodą lokalny architekt w ramach adaptacji projektu do warunków miejscowych.
Jarek
Dodano : 21/9/2012
Witam Wszystkich Czy dla tego projektu ktoś założył forum, gdzie mozna wymieniać się uwagami dotyczącymi budowy tego domu?
Artur
Dodano : 30/8/2012
dzień dobry, przegladam różne Wasze projekty, które umieściliście na stronie, nieraz mam do nich zastrzeżenia, a to przesunąć ściane , a to zmienić przeznaczenie pomieszczenia itp... Zauważyłem jedną niepokojąca rzecz a mnianowicie odnosicie się Państwo do zapytań o zmiany bardzo sceptycznie, za każdym razem tłumacząc, że lepiej będzie tak jak zostało to przez Was zaprojektowane, albo o zgrozo że nie widzicie konieczności modyfikacji. Śmiem jednak twierdzić(z tym zgodzą się ze mną zapewne też inni ludzie czytający i piszący komentarze), że to inwestor będzie mieszkał w budynku a nie projektant.I to inwestor wie czego potrzebuje. Rolą projektanta jest podpowiadać a nie na siłę narzucać rozwiązania, które nie do końca w całości muszą odpowiadać inwestorowi. Dlaczego tak niechętnie podchodzicie do tematu modyfikacji? Pomysły potencjalnych inwestorów są raczej przez Was delikatnie ale stanowczo bombardowane jako niepotrzebne manipulacje przy projektach. Muszę powiedzieć , że nie podoba mi się takie panów nastawienie. Gdzie podejście: KLIENT NASZ PAN??? W większości przypadków ludzie pytaja o zmiany, które nie są drastyczne, a Panowie i tak obstają przy swoim....
Administrator
Dodano : 30/8/2012
Nie jest prawdą, że odnosimy się wyłącznie negatywnie do propozycji zmian wysłanych przez internautów, wystarczy prześledzić opinię poszczególnych projektów by przekonać się, że do części modyfikacji odnosimy się pozytywnie. Często jest również tak, że kolejne wersje projektów powstają w oparciu o sugestie i opinie przyszłych użytkowników. Potwierdzeniem tych słów są również liczne realizacje naszych Klientów, które na różne sposoby odbiegają od oryginalnych założeń projektowych. Odradzamy Klientom stanowczo pewne zmiany tylko w przypadkach kiedy ich przebieg z projektowego punktu widzenia bez wątpienia wpłynie negatywnie na funkcjonalność i ergonomię układu wnętrza lub rażąco zaburzy proporcje i estetykę formy. Naszym celem nie jest pouczanie inwestorów, ale uczciwe doradzanie zgodne z naszym sumieniem, rzetelnością i etyką wykonywanego zawodu. Nasze negatywne opinie nie oznaczają również, że pomysły inwestorów w samej treści są niewłaściwe - szanujemy indywidualizm i zgadzamy się, że każdy dobrze wie czego potrzebuje. My jedynie twierdzimy, że nie wszystkie pomysły modyfikacji będą odpowiednie do pewnych domów. Czasami lepiej jest wybrać inny projekt niż na siłę dopasowywać niepasujący nam układ do własnych potrzeb. Reasumując jeśli na pewne zapytania dotyczące modyfikacji odpowiadamy negatywnie to wynika to jedynie z troski o Klienta i naszej uczciwości zawodowej. Prawdę mówiąc martwi nas ,że w czasach wyłącznie nastawionych na szybki zysk nasza filozofia uczciwego podejścia do Klienta zamiast być doceniona jest poddawana nieuzasadnionej krytyce.
piotr
Dodano : 18/8/2012
z jakiego materiału wykonana jest elewacja przy dzwiach wejściowych? i na bocznej scianie garazu.
Jarosław
Dodano : 19/5/2012
Witam sympatyków tego projektu. Miło mi podzielić się z wami inforamcją, iż po uprawomocnieniu się decyzji pozwolenia na budowę rozpocznie się realizacja tego projektu, czyli budowa. I-a i KiP chętnie wymienimy się z wami doświadczeniami (kontak jaroslaw7119@gmail.com). Pzdr Jarosław.
KiP
Dodano : 17/5/2012
Dzień Dobry Dołączyliśmy do grona szczęśliwych posiadaczy projektu. Chętnie nawiążemy kontakt z I-a i Jarosławem w celu wymiany doświadczeń budowlanych. Oczywiście projekt jest świetny. Kasia i Paweł.
Agnieszka
Dodano : 12/5/2012
Witam, wg. mnie projekt idealny! Utwierdziła mnie w tym wizualizacja wnętrz :) Pozdrawiam.
Joanna
Dodano : 02/4/2012
Jedyny projekt ktory spelnia nasze oczekiwania. Niestety po konsultacji z doktorem na Politechnice oraz z dwoma innymi projektantami wszyscy stwierdzili ze schody sa zle skonstruowane. Ja jestem raczej laikiem w tej sprawie ale ich opinia jest jednoglosna ' schody nie moga schodzic sie w szpic; w najwezszym odcinku musza miec 10cm przy kazdym schodzie'. Zalezy nam na tym projekcie, czy mozemy liczyc na poprawienie tego aspektu?
Administrator
Dodano : 02/4/2012
Nie jest to absolutnie błąd projektowy, tego typu rozwiązanie od lat jest praktykowane. Takie schody spełniają wszystkie wytyczne rozporządzenia dotyczącego warunków technicznych jakim powinny odpowiadać budynki i ich usytuowanie. Wspomniane odstępy są zazwyczaj konieczne w przypadku zastosowania większej ilości stopni w zabiegu w celu uzyskania zgodności z wytyczną wymagającą zachowania min. 25cm głębokości stopnia w odległości nie większej niż 0,4 od poręczy balustrady wewnętrznej lub wewnętrznej krawędzi biegu. W tym projekcie jest tylko 5 stopni zabiegowych i wymagany wymiar jest zachowany, ponadto przy takiej ilości stopni w zabiegu ich głębokość na środku biegu jest większa od głębokości podstawowej co powoduje że stopnie są wygodne i bezpieczne.
I-a
Dodano : 14/2/2012
Czy jest już ktoś kto zdecydował się na kupno tego domu albo już zaczął budowę.
Kamila
Dodano : 26/1/2012
PRZEPIĘKNE WNĘTRZE :) MARZENIE !!!!!!!!!!!!!
Administrator
Dodano : 26/1/2012
:] Cieszymy się, że się Pani podoba
Bogdan
Dodano : 21/1/2012
Czy możliwe są zmiany: ściany z betonu komórkowego; ogrzewanie z gazowego na olej opałowy(tańszy) bądź paliwo stałe; powiększenie kotłowni (o tarasik)- likwidacja wyjścia z gabinetu a okno w gabinecie na południe.Pozdrawiam bj.
Administrator
Dodano : 21/1/2012
Tak, wszystkie powyższe modyfikacje są możliwe do wprowadzenia, ale w przypadku zmiany materiału na beton komórkowy wymagana jest ponowna analiza konstrukcji budynku ponieważ beton komórkowy ma dużo mniejszą wytrzymałość na ściskanie co może powodować rysy i pęknięcia w miejscach zwiększonych obciążeń np. podparć podciągów. Bloczek silikatowy ma wytrzymałość na poziomie 15MPa, natomiast najmocniejszy beton komórkowy ok.5MPa. Bez problemu można natomiast zamienić silikat na pustaka ceramicznego o podobnym parametrze wytrzymałościowym. Kotłownia w obecnym kształcie ma wystarczająca wielkość do zamontowania kotła na paliwo stałe dlatego proszę rozważyć decyzję o jej powiększeniu. Podcień od strony garażu ma istotne znaczenie dla estetyki budynku.
Agnieszka
Dodano : 17/1/2012
Witam, Czy istnieje, bądź jest planowana w przygotowaniu wersja z dachem bez okapów - jak w prostym?
Administrator
Dodano : 17/1/2012
Nie planujemy takiej wersji, ale można dokonać takiej zmiany na etapie adaptacji projektu do warunków miejscowych. Podczas adaptacji sugerujemy zmianę kąta nachylenia dachu z 40 na 42 stopnie do uzyskania odpowiednich proporcji bryły.
Monika
Dodano : 15/1/2012
Witam Jakiej wielkosci jest schowek pod schodami? Czy zmiesci sie tam szafa? Czy maja panstwo inny pomysl na szafe w holu? pozdrawiam
Administrator
Dodano : 15/1/2012
Wysokość przestrzeni pod schodami ze względu na nachylenie biegu jest oczywiście zmienna, od najniższej ok.140cm przy zewnętrznej ścianie budynku do pełnej wysokości stropu przy drzwiach wejściowych do holu. Natomiast drzwi przesuwne mają na całej długości pełną wysokość ponieważ umieszczone są pod podciągiem niosącym strop. Miejsce pod schodami jest wykorzystane w optymalny sposób, można również przenieść szafę na drugą stronę wykorzystując część przestrzeni garażowej.
Jarosław
Dodano : 06/1/2012
Ja już też jestem szczęśliwym posiadaczem projektu :-), teraz tylko mała adaptacja, procedura związana z pozwoleniem na budowę i zaczynamy... :-).
Marcin
Dodano : 02/1/2012
witam serdecznie Dajcie jakis sensowny kosztorys i pewnie zyskacie kolejnego klienta :)
paulina
Dodano : 26/12/2011
Ten projekty jest wspaniały!!Kiedy można się spodziewac wizualizacji wnętrz??;)
Kamila
Dodano : 19/12/2011
Prawie jesteśmy zdecydowani na ten projekt tylko z niecierpliwością czekamy na kosztorys i wizualizacje wnętrza. Kiedy można się spodziewać ? :)
Administrator
Dodano : 19/12/2011
Już wkrótce, pracujemy nad tym.
I-a
Dodano : 17/12/2011
Witam jesteśmy już szczesliwymi posiadaczami projektu zaczynamy przygotowanie dokumentacji i od wiosny ruszamy z dudowa naszego domu.
Łukasz
Dodano : 09/12/2011
Witam, Czy jest możliwość powiększenia balkonu, aby obejmował również przestrzeń nad garażem? Jeśli tak, to wszystko wskazuje na to, że znalazłem swój wymarzony projekt.
Administrator
Dodano : 09/12/2011
Teoretycznie jest to możliwe, ale odradzamy. W praktyce takie tarasy są potem rzadko wykorzystywane, tym bardziej, że w tym przypadku w sytuacji prawidłowego ustawienia budynku względem stron świata, taras będzie usytuowany od północy. Ponadto przygotowanie większej powierzchni tarasu do użytkowania będzie się wiązało z dużym wydatkiem na konstrukcję posadzki oraz balustrady. Według naszej opinii koszty będą znaczne a "zysk" funkcjonalny niewielki , dlatego proszę to rozważyć.
Joanna
Dodano : 01/12/2011
Kiedy będzie można zobaczyć kosztorys :)
Klon
Dodano : 29/11/2011
Mam zamiar wybudowac ten dom z wykorzystaniem wentylacji mechanicznej oraz pompa ciepla. W obecnej sytuacji komin w kotlowni nie bedzie mi potrzebny , co pozwoli mi powiekszyc lazienke o szerokosc komina kosztem mniejszej kotlowni. Druga zmiana: W miejscu gabinetu zrobienie kuchni , a w miejscu kuchni gabinet z zamurowanymi drzwiami wyjsciowymi na taras , co pozwoli mi przesunac komin na zewnatrz budynku i kominek wstawic w kat. Uzyskam wowczas wiecej miejsca na telewizor z kinem. Rozumiem ze jak bede mial wentylacje mechaniczna w calym budynku to kanalow wentylacyjnych nie potrzebuje? Czy wszystkie moje planowe zmiany sa mozliwe do osiagniecia ? Dziekuje i pozdrawiam
Administrator
Dodano : 29/11/2011
Wszystkie powyższe modyfikacje są możliwe do wprowadzenia. Zastosowanie wentylacji mechanicznej umożliwi likwidację kanałów wentylacji grawitacyjnej.
Kamila
Dodano : 25/11/2011
PROJEKT REWELACJA, ale zastanawiam się czy będzie możliwość zlikwidowania ściany między kuchnią a salonem, aby powstała większa przestrzeń, a co za tym idzie przeniesienia kominka na inną ścianę?
Administrator
Dodano : 25/11/2011
Jest to możliwe pod warunkiem zaprojektowania podciągu w miejscu ściany oraz słupa na linii przedłużenia ściany pomiędzy klatką schodową a kuchnią. Komin ze względu na brak alternatywnej lokalizacji powinien pozostać w obecnym miejscu natomiast palenisko można przenieść na ścianę z oknem zmniejszając szerokość otworu okiennego. Można również pozostawić istniejącą wielkość okna przesuwając komin na zewnątrz budynku, ale niestety takie rozwiązanie likwiduje wyjście z kuchni na taras.
I-a
Dodano : 06/11/2011
Czy orientowaliście się w kosztach budowy tego domu tzn. ile stan surowy z ławami itd.?
Administrator
Dodano : 06/11/2011
Prosimy o cierpliwość, kosztorys może zostać opracowany dopiero po ukończeniu dokumentacji projektowej.
Piotr
Dodano : 06/11/2011
Bardzo ładny projekt, czy będzie wersja bez wystającego dachu? Czekam niecierpliwie na dokumentacje i zakup. Pozdrawiam
Administrator
Dodano : 06/11/2011
Niestety nie planujemy takiej wersji, ale likwidację okapów można przeprowadzić przy pomocy lokalnego projektanta na etapie adaptacji projektu do warunków miejscowych.
Maciek
Dodano : 03/11/2011
Też czekam na finalny projekt chcemy ruszyć na wiosnę w małopolsce :)
Administrator
Dodano : 03/11/2011
Dokumentacja jest w końcowej fazie opracowania. Planowany termin wprowadzenia do sprzedaży to koniec listopada.
I-a
Dodano : 02/11/2011
Z niecierpliwością czekamy na kosztorys tego domku oraz całkowite wykończenie projektu, bardzo się nam podoba jest idealny.
Jaroslaw
Dodano : 02/11/2011
Ja też czekam na wizualizację i kosztorys. Bardzo fajny projekt. Mam plan rozpocząć budowę tego domu na wiosnę z małą zmianą funkcjonalną - zamiana na parterze gabinetu z kuchnią, aby była jedna otwarta pow. salonu z kuchnią.
Administrator
Dodano : 02/11/2011
Wizualizacje są w trakcie przygotowania. Taka zmiana funkcjonalna jest oczywiście możliwa. Opracowując koncepcję zakładaliśmy, że część inwestorów będzie chciała przeprowadzić taką modyfikację, dlatego poza korektą instalacji nie wymaga ona żadnych zmian w konstrukcji budynku. Przy zachowaniu wentylacji grawitacyjnej do wentylacji kuchni zostaje przeznaczony kanał z garderoby na poddaszu.
I-a
Dodano : 02/11/2011
My też chcielibyśmy ruszyć z budową na wiosnę, nasze zmiany będą raczej kosmetyczne. Można wiedzieć gdzie będziecie się budować i czy macie już jakieś wstępne rozeznanie co do kosztu tego domu w stanie surowym? Może moglibyśmy wymieniać się informacjami co do pomysłów? Podaję naszego meila jeśli jesteście zainteresowani d.rojs@wp.pl
Dodaj opinię