- Projekty domów
- Popularne
- Wielkość
- Kondygnacje
- Garaż
- Dach
- Działka
- Rodzaj zabudowy
- Inne kategorie projektów
- Projekty domów dla developera
- Projekty domów z pompą ciepła
- Projekty domów z rekuperacją
- Projekty domów z ogrzewaniem podłogowym
- Projekty domów z wyspą kuchenną
- Projekty domów z antresolą
- Projekty domów z wnętrzami
- Projekty domów z poddaszem do adaptacji
- Nietypowe projekty domów
- Projekty domów z płytą fundamentową
- Projekty premium
- Panoramy
- Realizacje
- Centrum informacji
- Dla dewelopera
- Kontakt






















Komentarze
Marcin
Dodano : 08/10/2017
Czy jest możliwośc adaptacji budynku do technologii szkieletowej oferowanej przez firmę Steico?
Administrator
Dodano : 08/10/2017
Wszystkie projekty w nasze ofercie można dostosować do innej technologii, w tym przypadku dokumentacja powinna zostać zaadaptowana przez projektantów firmy Steico.
Katarzyna
Dodano : 10/7/2017
Witam, chciałam zapytać, czy jest możliwość zastąpienia słupa w salonie innym rozwiązaniem konstrukcyjnym ?
Administrator
Dodano : 10/7/2017
Jedynym sposobem na likwidację słupa jest zwiększenie przekroju pionowego podciągu (belki żelbetowej podtrzymującej strop) biegnącego od ściany zewnętrznej do słupa w narożniku stolarki. W tej chwili podciąg ten jest ukryty w suficie podwieszanym i nie jest widoczny. Po likwidacji słupa na stropie pojawi się widoczna belka. Jej wysokość będzie zależna od obliczeń konstrukcyjnych.
Ewelina
Dodano : 12/1/2017
Oczywiście :) aktualnie czekamy na montaż okien w lutym i wykończenie dachu blachą :) po tym etapie zabieramy się za wnętrze :D Zapraszam również na bloga :) http://www.nowoczesny1.mojabudowa.pl/
Katarzyna
Dodano : 18/11/2016
Witam Pani Ewelino, czy jest szansa na przesłanie jakiś zdjęć z realizacji? będą bardzo wdzięczna!
Ewelina
Dodano : 10/10/2016
Witam jakiej firmy jest podłoga w salonie oraz jaki to kolor, mam pytanie również o kanapę gdzie można taką kupić Budujemy ten dom w Opolu właśnie powstaje piętro :) Pozdrawiam
Administrator
Dodano : 10/10/2016
P. Ewelino tekstura podłogi użyta do wizualizacji nie pochodzi od konkretnego producenta, została wykonana przez nas. W kwestii kanapy to jest to przerobiony przez nas model firmy Bonaldo o nazwie Peanut, który niestety jest dosyć kosztowny. Możemy za to polecić polskiego producenta, firmę Olta: http://www.olta.com.pl/produkty.php , który reprezentuje włoską jakość za rozsądne pieniądze. Sam mam kanapy tej firmy i jestem bardzo zadowolony. Może Pani również przejrzeć ofertę sklepu internetowego Moma Studio : http://www.momastudio.pl/meble/salon/sofy. Można tam znaleźć designerskie produkty w dobrej cenie. Polecam. arch. Krzysztof Borowski
Ewelina
Dodano : 08/10/2016
Witam aktualnie budujemy ten dom, planuję założyć blog z etapami budowy :) Jedyne co mogę powiedzieć ze dom owszem piękny ale i kosztowny :D użycie prawie 10 ton stali mówi samo za siebie :) Mam pytanie do projektanta jaka podłoga jest w salonie i jadali oraz gdzie mogę kupić ta kanapę Pozdrawiam
Agata
Dodano : 05/10/2016
Witam będę wdzięczna za informację czy: 1. istnieje opcja powiększenia części domu z garażem poprzez jej poszerzenie powiedzmy o metr? czy nie zaburzy to proporcji projektu? i 2. czy zastanawiali się Państwo może nad możliwymi sposobami zadaszenia przynajmniej części tarasu? Oczywiście innymi niż rozwijana markiza. Jestem zachwycona projektem i to jedyny brakujący mi element.
Administrator
Dodano : 05/10/2016
Poszerzenie garażu nie stanowi problemu i nie wpłynie istotnie na proporcje domu, natomiast kwestia zadaszenia jest bardziej skomplikowana. Technicznie można oczywiście przedłużyć dach nad tarasem, ale taki zabieg optycznie "dociąży" bryłę budynku i finalnie może to wyglądać nie najlepiej.
Kinga
Dodano : 25/5/2016
Witam. Proszę o informacje czy jest możliwość zmiany sposobu ogrzewania z gazowego na drewno lub węgiel? Drugie pytanie dotyczy kąta nachylenia dachu. Tam gdzie chcemy budować dom, wg warunków zabudowy, minimalny kąt nachylenia dachu wynosi 30°. Czy jest możliwość podniesienia ścian na poddaszu i zmianę kąta nachylenia dachu z 45° na 30°? Czy wiąże się to z opracowaniem nowego projektu?
Administrator
Dodano : 25/5/2016
W kwestii źródła ogrzewania doradzamy zastosowanie raczej pompy ciepła niż kotła na paliwo stałe. Wprawdzie kotłownia jest wystarczających rozmiarów do usytuowania pieca, ale powstaje problem obecnej lokalizacji komina, który jest dosyć blisko części mieszkalnej. Zgodnie z warunkami technicznymi komin należałoby wyprowadzić na właściwą wysokość w stosunku do kalenicy domu, co spowoduje że będzie on dosyć wysoki. Reasumując zastosowanie tego rodzaju pieca jest możliwe pod warunkiem zamiany lokalizacji kotłowni z łazienką rodziców, tak aby komin znalazł się przy zewnętrznej ścianie garażu. W pytaniu dotyczącym nachylenia dachu napisała Pani, że 30 stopni to minimalny kąt, a zatem może być większy, jeśli natomiast to błąd i chodziło Pani o kąt maksymalny to stanowczo odradzamy taką zmianę ponieważ z takim nachyleniem budynek straci właściwe proporcje i nie będzie wyglądał dobrze.
Michal
Dodano : 19/5/2016
Witam, prosze o informacje na temat lamp sufitowych w salonie. Czy macie Panstwo jakies namiary na ten model?
Administrator
Dodano : 19/5/2016
To oświetlenie firmy Delta Light model Outfit U, prosimy o pytanie na facebook-u, wyślemy link.
Ania
Dodano : 18/3/2016
Katarzyna, czy możesz podać z jakiej firmy masz wycenę stolarki okiennej na tym poziomie i czy parametry okien są takie same jak w projekcie? Jesteśmy na etapie zbierania ofert i Twoja podpowiedź była by dla Nas cenna. Pozdrawiam
Administrator
Dodano : 18/3/2016
P. Aniu może Pani skorzystać z formularza ofertowego naszego Partnera od okien firmy Ventana - dostępnego w zakładce kosztorys. Niezobowiązująco przygotują wycenę na stolarkę do tego projektu w dowolnej technologii.
Małgośka
Dodano : 14/3/2016
Witam! Jestem zachwycona tym projektem :) bardzo nam się podoba , jest idealny na naszą pięcioosobowa rodzinkę , a w niedalekiej przyszłości sześcioosobową ;p i w związku z tym mam pytanie. Czy można zlikwidować tę antresolę nad jadalnią i zrobić tam pokój ??? Pozdrawiam
Administrator
Dodano : 14/3/2016
Cieszy nas Pani entuzjazm:) odpowiadając na pytanie: nie ma sensu likwidować antresoli ponieważ powstała w ten sposób przestrzeń będzie funkcjonalnie za wąska na pokój. Jeśli zależy Pani na dodatkowej sypialni to sugerujemy połączenie pokoju i garderoby z przodu budynku i podzielenie ich na dwa równe pokoje po ok.10 m2 pow. użytkowej i 12,5 m2 pow. podłogi. Wejście do drugiego będzie wymagało nieznacznego zmniejszenia pralni.
Marta
Dodano : 08/3/2016
Też jesteśmy o krok od zakupy tego projektu. Jezeli jest ktoś, kto juz jest właścicielem takiego domku i chcialby podzielić się zdjęciami z zewnatrz domu. Bardzo prosze o kontakt
JOANNA
Dodano : 29/2/2016
Witam, Czy ktoś może wybrał ten projekt i jest w trakcie realizacji?
Katarzyna
Dodano : 22/2/2016
Mam aktualną wycenę okien do tego projektu. Jest to koszt 80 tys. netto. Mój poprzedni komentarz nadal się nie ukazał. Ten pewnie też nie zostanie zaakceptowany. Okna drewniano-alu trzyszybowe. Uw=0,5
Administrator
Dodano : 22/2/2016
Pani Katarzyno mieliśmy niedawno awarią techniczną związaną z tym działem i część opinii od połowy września do końca stycznia nam przepadła, także uspokajamy: nie cenzurujemy opinii i każda Państwa sugestia jest dla nas cenna. Jeśli chodzi o koszt stolarki podany w kosztorysie to jest on oszacowany w standardzie minimalnym czyli materiał sosna na mikrowczepy, nakładka aluminiowa w kolorze standard oraz narożniki z profili a nie w systemie szkło-szkło, stąd ta różnica w cenie.
Sandra
Dodano : 02/12/2015
Witam, Projekt bardzo mi się podoba. Czy ktoś już z niego korzystał ? I czy ma właśnie taki dom ? Jeśli tak proszę o kontakt. Pozdrawiam Sandra
Katarzyna
Dodano : 17/8/2015
SARA ten taras nie jest tak do końca "przewidziany" wchodzi się na niego po schodkach i jeszcze jest (ten drewniany podest) wyżej niż stolarka okienna..... w moim przypadku wykorzystywać będę całe 100 metrów tarasu....
Anna
Dodano : 30/7/2015
Witam! Projekt boski! Ten dom i Parterowy 1 to moi faworyci!:)) Mam do Państwa uprzejme zapytanie o koszty. Czy zamiana elewacji zewnetrznej w Nowoczesnym 1 na tę z Nowoczesnego 2 spowodowalaby obniżenie kosztów budowy? Jeżeli tak to czy mogliby Państwo podać ten koszt szacunkowo? Rozważam killa domów z Państwa strony i na pewno będę się kontaktować bezpośrednio jak wyjaśnię kilka kwestii związanych z działką.
Administrator
Dodano : 30/7/2015
Przybliżony koszt materiałów potrzebnych do wykończenia elewacji oraz dachu z blachy cynkowo-tytanowej to ok.40 tys. zł nie licząc robocizny. Koszt materiału na pokrycie samego dachu w projekcie Nowoczesny 2 wynosi ok. 12,5 tys. zł, zakładając powierzchnie dachu jak w wersji 1 będzie to ok. 15 tys. zł. Reasumując różnica tylko na materiale to ok. 25 tys. zł, a trzeba pamiętać, że robocizna w przypadku wykończenia blachą na pewno będzie droższa.
dariusz
Dodano : 23/4/2015
Projekt super czy mógłbym się dowiedzieć gdzie mogę taki dom obejrzeć już pobudowany jestem ciekawe jak wygląda to wykończenie blachą. Jeden z kuj-pomorskiego.
Sara
Dodano : 15/3/2015
Witam. Czy projekt przewiduje taras nad garażem lub czy jest możliwość zaadaptowana tej powierzchni na taras? Pozdrawiam
Administrator
Dodano : 15/3/2015
W projekcie jest przewidziany niewielki taras z wyjściem naprzeciwko schodów. Nie zakładaliśmy wykorzystania większej powierzchni dachu nad garażem bo jest to jednak duży wydatek, ale jest możliwe. Wszystko zależy od indywidualnych potrzeb inwestora.
Maciej
Dodano : 16/12/2014
Witam, ten projekt jak i wszystkie pozostałe jest rewelacyjny ! Świetny układ pomieszczeń, funkcjonalność no i estetyka, wspaniałe aranżacje wnętrz, mam pytanie: jakiej firmy jest kanapa w salonie i gdzie można takie meble kupić?
Paula
Dodano : 23/10/2014
Witam. Jesteśmy z mężem o krok żeby sie zdecydować na ten projek. Jest rewelacyjny! Chcialabym tylko wiedzieć czy jest możliwość kupienia aranżacji wnetrz dla tego budynku? Wasze aranżacje sa perfekcyjne, aż sie chce zobaczyć reszte!
Administrator
Dodano : 23/10/2014
Nie sprzedajemy projektu aranżacji wnętrz, namawiamy raczej naszych klientów do korzystania z usług lokalnych biur projektowania wnętrz ponieważ w tym temacie jest bardzo ważny miejscowy nadzór nad wykonawcami. Naszą aranżację można potraktować jako materiał wyjściowy-inspirację.
Pawel
Dodano : 15/9/2014
Witam, projekt jest genialny! Nasz absolutny faworyt, zresztą pozostałe Wasze propozycje też są świetne. Mam pytanie czy byłaby mozliwośc zrobienia łazienki zamiast garderoby w pokoju na piętrze? Powstałby w ten sposób niezalęzny pokój gościnny co dla nas ma znaczenie. Drugie pytanie: czy w łazience dużej sypialni na dole zmiesci sie jeszcze kabina prysznicowa? Np rezygnując z jednych z drzwi (wejście mogłoby byc przez garderobę. Jeszcze raz gratuluję pomysłów i projektów.
Administrator
Dodano : 15/9/2014
Dziękujemy. Na oba pytania odpowiedź jest twierdząca. Na poddaszu w miejscu garderoby można wykonać łazienkę, natomiast na parterze likwidując przejście z sypialni można ulokować kabinę prysznicową.
Anna
Dodano : 08/6/2014
Projekt jest swietny. Czy jest mozliwosc wykonania zmian w projekcie by glowna czesc dachu posiadala okapy?Niestety miejscowy plan zagospodarowania przestrzennego narzuca nam wybory projektow domow z dachami posiadajacymi okapy.
Administrator
Dodano : 08/6/2014
To jest możliwe, ale dodanie okapów będzie wymagało zmiany kąta nachylenia dachu do 40-42 stopni ze względu na konieczność zachowania właściwych proporcji budynku.
Piotr
Dodano : 07/6/2014
Witam, jaka jest wysokość pionowej ścianki w pokojach na piętrze pod skosami? Projekt jest moim faworytem, ale obawiam się o ustawność pokoi na piętrze.
Administrator
Dodano : 07/6/2014
Nie ma absolutnie powodów do obaw. Ścianka kolankowa od poziomu wykończonej podłogi do załamania wykończonej połaci ma 115 cm wysokości, co w połączeniu z 45 stopniowym nachyleniem dachu gwarantuje pełny komfort użytkowania pomieszczeń na poddaszu.
Katarzyna
Dodano : 23/4/2014
Projekt bardzo mi się podoba. Chciałabym jednak zapytać o komin z kotłowni. Nie widać go ani na wizualizacjach ani na elewacjach. Na jaką wysokość wystaje on ponad część jednokondygnacyjną? A także czy jest możliwość zmiany technologii wykonania ścian zewnętrznych na ścianę trójwarstwową? przynajmniej na części budynku, w podobny sposób jak w projekcie Atrakcyjny 1? Dziękuję :)
Administrator
Dodano : 23/4/2014
Komin z kotłowni wystaje 1,2 m ponad poziom attyki części garażowej. Jest to komin stalowy. Ze względu na jego niewielką wysokość oraz fakt, że jest umieszczony mniej więcej na środku bryły parterowej, to w bliskiej perspektywie budynku będzie niewidoczny. Zmiana technologii ściany jest oczywiście możliwa, tylko jeśli Pani pytanie jest podyktowane chęcią wprowadzenia klinkieru na elewację to nie ma takiej konieczności ponieważ można tutaj z powodzeniem zastosować płytkę klinkierową klejoną do styropianu.
Kris.
Dodano : 07/1/2014
witam,czy projekt jest przystosowany do nowych warunkow technicznych jeśli chodzi o współczynniki ciepla?
Administrator
Dodano : 07/1/2014
Oczywiście, wszystkie projekty dostępne w naszej ofercie spełniają aktualne normy izolacyjności cieplnej oraz wielkości parametru EP. W przypadku tego projektu, który od początku był projektowany jako budynek energooszczędny wartości obliczeniowe współczynników przenikalności cieplnej wszystkich przegród są znacznie lepsze od wymaganych.
Jan
Dodano : 12/12/2013
Projekt jest bezbłędny, ciężko znaleźć w naszej rzeczywistości i na naszym rynku równie ciekawe projekty! Patrząc po realizacji, mozna zobaczyć jak ważne jest przywiązanie do szczegółów wykończenia, co jest swietnie zaprezentowane na stronie. Styl jest nadany, odpowiedni. Trzeba tylko podążać pewnym schematem, zarówno w przypadku domu, działki, ogrodu, tak żeby całość była spójna. Realizacje pokazują, ze gdzieś to sie rozmija, przez detale domy sie zmieniają, niestety na gorsze, ale to zasługa juz indywidualnego wykończenia. Może warto pomyśleć o kompleksowym projektowaniu także wnętrz i dostarczaniu takich usług w pakiecie, szkoda tak ładnych projektów:) Pytanie dotyczące powyższej propozycji Nowoczesny 1: Nie potrzebne jest mi piętro, dom spelnia moje fukcje wyłącznie na parterze i jest to dla mnie wystarczająco dużo powierzchni, czy mozna pozbyć sie góry? Zdaje sobie sprawę z konsekwencji stylistycznych, wtedy aż nasuwa sie pomysł wysunięcia gabinetu i kuchni do przodu o około 1m oraz w przypadku płaskiego dachu wysunięcia go poza obrys domu o pół metra, zachowując wykończenie metalowe, dodając jednak, ciemniejszy kolor. Będę wdzięczny za pomoc
Administrator
Dodano : 12/12/2013
Nasze dokumentacje są przygotowywane bardzo szczegółowo, a mimo to realizacje często odbiegają od założeń autorskich. Trzy główne przyczyny tego zjawiska to indywidulane modyfikacje na etapie adaptacji, brak nadzoru nad zgodnością realizacji z dokumentacją projektową oraz przede wszystkim zła wola, lenistwo lub brak kompetencji wykonawców . Z doświadczenia wiemy, że osoby, którym udało się ukończyć budowę z sukcesem musiały się wykazać szczególną determinacją i konsekwencją w nadzorze nad wykonawcami.<br /> W kwestii proponowanych przez Pana zmian sugerujemy raczej projekt indywidualny niż modyfikację istniejącej wersji. Wychodzimy z założenia że zmiana w tak dużym zakresie funkcjonalnym i etstycznym jest obciążona dużym ryzykiem powstania karykatury oryginału. Lepiej zaprojektować to od nowa stosownie do Pana indywidualnych potrzeb.
Lilka
Dodano : 24/11/2013
Witam! Zakochałam się w tym projekcie, a szczególnie w tym przeszkleniu domu. Jestem ciekawa jakiej firmy są tak duże okna czy mogliby państwo podać nazwę .Pozdrawiam!
Administrator
Dodano : 24/11/2013
To okna w technologii drewniano-aluminiowej Partnera naszej Pracowni firmy INTERNORM.
Kamil
Dodano : 20/11/2013
Witam serdecznie. Jestem zachwycony projektem Nowoczesny 1, ale nie jestem pewny co do stropodachu. Słyszałem, że bardzo ważne jest dokładne wykonanie pokrycia, gdyż często zdarzają się przecieki. Dużo czytam na temat pokrycia stropodachu i jakoś nie mogę się przekonać do konkretnej metody. Czy mają państwo jakąś sprawdzoną technologię pokrycia stropodachu? Pozdrawiam.
Administrator
Dodano : 20/11/2013
Mamy i jest sprawdzona przez naszych klientów. To metoda izolowania membraną EPDM balastowaną żwirem.
Kasia
Dodano : 22/10/2013
Czy jest możliwe wykonanie adaptacji projektu Nowoczesny 1, tak, aby elewacja była jak w wersji Nowoczesnego 2 (tzn bez blachy i z cieplejszą wersją elewacji garażowej) ?
Administrator
Dodano : 22/10/2013
Oczywiście, taką zmianę może dokonać miejscowy architekt adaptujący. W celu ułatwienia lokalnemu projektantowi dokonania modyfikacji możemy do zakupionej wersji "1" dołączyć fragmenty dokumentacji z wersji "2".
Agnieszka
Dodano : 06/9/2013
Witam, Projekt jest przepiękny!. Gratulacje. Wasza strona to prawdziwa inspiracja dla przyszłych budowniczych. Przy okazji bardzo podoba mi się lampa w jadalni. Czy mogliby Państwo podesłać nazwę ewentualnie stronkę z inspiracjami oświetlenia. Pozdrawiam serdecznie, Agnieszka Obrębska
Administrator
Dodano : 06/9/2013
Lampa to model Heracleum II - produkt firmy Moooi, która ma bardzo ciekawą ofertę mebli, oświetlenia i przedmiotów użytkowych.
Marta
Dodano : 20/8/2013
witam rozumiem ograniczenia ale może warto jesli niie spacer wirtualny to przynajmiej zastosować szerszą galerię wizualizacji. Ogladając projekty oczywiście można sobie wyobrazić wiele ale co innego zobaczyc a co innego pomysleć :-) Zachęcam (pewnie nie tylko we własnym imieniu) to wprowadzenia większej ilości "zdjęć" wnętrz z perspektyw różnych pomieszczeń. Nie wszystkie przecież muszą być od razu publikowane... Ostatecznie i tak uważam , że Państwa pracownia staje na wysokości zadania wyróżniając się sposród konkurencji perfekcyjnościa w szerokim kotekście. No ale cóż...jak to zwykle bywa od najlepszych wymaga sie najwięcej . pozdrawiam serdecznie :-))
Administrator
Dodano : 20/8/2013
Pomyślimy o tym. Wszystkie Państwa opinie są dla nas bardzo cenne, zwłaszcza te, które mile głaszczą naszą próżność:)...
Kamil
Dodano : 20/8/2013
Witam. Które Państwa projekty domów można przystosować do domów pasywnych albo nisko energetycznych? Jakie jest Państwa zdanie o bloczkach ceramicznych Heluz Famili 2in1?
Administrator
Dodano : 20/8/2013
Większość projektów w naszej ofercie po niewielkich modyfikacjach spełnia wymogi budynków nisko energetycznych. Projekt "Nowoczesny 1" jest nisko energetyczny z założenia, m.in.standardowo jest uwzględniona wentylacja mechaniczna. Również izolacja termiczna na poszczególnych przegrodach jest znacznie grubsza od wartości normowych. Wkrótce do większości projektów pojawi się oferta pakietu NF40, który umożliwi otrzymanie dofinansowania z programu NFGWiOŚ. Co do wspomnianych przez Pana pustaków nie mamy wyrobionej opinii, dlatego, że jest to materiał rzadko spotykany na naszym rynku. Uważamy, że racjonalność zastosowania takiego materiału musi być przede wszystkim zależna od kosztów. Należy porównać cenę wykonania 1m2 ściany dwuwarstwowej oraz z tego materiału zakładając identyczny współczynnik przenikalności i wybrać tańsze rozwiązanie. Pewnym mankamentem tych pustaków jest nieco mała wytrzymałość na ściskanie -8MPa, my wykorzystujemy materiały w przedziale 10-15MPa.
Marta
Dodano : 19/8/2013
miałam na myśli oczywiście panoramę 360 :-)
Marta
Dodano : 19/8/2013
witam super , że jest wizualizacja....ale az sie prosi aby rozszerzyć ją o kolejne pomieszczenia... A może tak wirtualny spacer? taka wędrówka po domu to byłoby coś! :-) moznaby zajrzeć w kazdy zakamarek i zobaczyć jak dom wygląda tak naprawdę . Puszczam oko do właścicieli pracowni...może jednak...obok wizualizacji również spacery pozdrawiam
Administrator
Dodano : 19/8/2013
Niestety spacer wirtualny wykluczyły już jakiś czas temu nasze "wyśrubowane" wymagania co do jakości wizualnej takiego narzędzia prezentacji. Po pierwsze przygotowanie wirtualnej wycieczki w satysfakcjonującej nas jakości wymagałoby bardzo czasochłonnych obliczeń komputerowych. Po drugie wczytywanie takiego pliku przy zachowaniu odpowiedniej jakości również trwałoby długo. Dążenie do uzyskania najlepszego efektu jest przydatne w trakcie tworzenia koncepcji, ale dosyć uciążliwe przy tworzeniu materiałów wizualnych bo bardzo wydłuża proces publikacji nowości na stronie i uniemożliwia zastosowanie ciekawych form prezentacji.
Magda
Dodano : 19/8/2013
Witam, Jestem bardzo zawiedziona, ponieważ obiecywaliście wstawić 2 tygodnie temu kosztorys tego projektu i nadal cisza...
Administrator
Dodano : 19/8/2013
My również Pani Magdo, firma kosztorysująca zwodzi nas kolejnymi terminami tłumacząc się sezonem urlopowym. z naszej strony dopełniliśmy wszystkich formalności i czekamy...
Adam
Dodano : 30/7/2013
Witam, Wiadomo może kiedy będziemy mogli zobaczyć kosztorys tego wspaniałego projektu?
Administrator
Dodano : 30/7/2013
Dokumentacja projektowa została ukończona i przekazana do firmy kosztorysowej dlatego planujemy jego zamieszczenie na stronie pod koniec przyszłego tygodnia. My również oczekujemy wyników pracy kosztorysantów, a ostateczna kwota realizacji będzie decydująca w kwestii ewentualnego wprowadzernia do oferty tańszego wariantu.
Joanna
Dodano : 18/7/2013
Witam! Podzielam wcześniejsze opinie- dom piękny, z prostą bryłą i doskonałym rozkładem pomieszczeń. Dotychczas szukaliśmy projektów parterowych najlepiej z płaskim dachem, ale dla tej propozycji jesteśmy zdecydowani zmienić upodobania. Podnoszę jednak jeszcze raz pytanie o projekt z płaskim dachem w części dwupoziomowej. Czy wersja taka jest w przygotowaniu i jaki byłby realny termin ukazania się jej na stronie? Pozdrawiam
Administrator
Dodano : 18/7/2013
Obecnie nie pracujemy nad takim wariantem. W trakcie opracowywania koncepcji nowych projektów naturalnie pojawiają się pomysły na różne warianty wizualne i funkcjonalne. W tym przypadku również powstał pewien szkic koncepcji domu z płaskim dachem w części dwukondygnacyjnej, ale on miał odmienny układ wnętrza (m.in. strefa masterbedroom została przeniesiona na piętro). Nie wiemy czy w ogóle pojawi się taka wersja. Niestety projekty tego typu wymagają dużego nakładu pracy, a odbiorców jest niewielu.
Bartek
Dodano : 08/7/2013
Wspaniale, czekam zatem na kosztorys aby zakupić pełen projekt :) Mam również nadzieję, że pomogą mi Państwo w wyborze architekta oraz projektanta wnętrz, który zrozumie założenia projektu i w pełni wykorzysta jego liczne zalety. Pozdrawiam
Administrator
Dodano : 08/7/2013
Oczywiście:) nasi Klienci zawsze mogą liczyć na fachową pomoc.
Bartek
Dodano : 08/7/2013
Witam, Czy możliwe są następujące zmiany w projekcie: 1. Okno w kuchni powiększyć do rozmiarów okna tarasowego, na środku kuchni wyspa a zabudowa po obu stronach? 2. Zmniejszenie o połowę gabinetu aby kuchnia była większa - zamiast gabinetu spiżarnia z wąskim oknem zamiast narożnego lub brak okna? 3. Likwidacja gardereby na poddaszu i zrobienie otwartej przestrzeni na miejsce do pracy oraz wydzielenie małego 3 pokoju przez przedlużenie ściany wzdłuż łazienki i pralni - dodanie i przesunięcie okna w elewacji frontowej aby wyglądała jak elewacja ogrodowa? 4. Czy potrzebny jest komin do okapu jeżeli zdecydujemy się na wentylację mechaniczną? Pozdrawiam
Administrator
Dodano : 08/7/2013
1-2. Tak, z oknem nie ma problemu, co do zabudowy kuchennej z dużą wyspą również, ale pod warunkiem zmniejszenia gabinetu i w jego części wygospodarowania zabudowy wnękowej na lodówkę i blok piekarnika.<br /> 2. Jak wyżej, dla ergonomicznego rozwiązania kuchni gabinet musi się zmniejszyć, a w konsekwencji jego funkcja może ulec zmianie na spiżarnię.<br /> 3. Taka zmiana jest możliwa.<br /> 4. Wentylacja mechaniczna jest w tym projekcie standardem tzn. nie zakładaliśmy w nim wentylacji grawitacyjnej, ale kanał do okapu jest wskazany i takie rozwiązanie jest w projekcie. Tego typu kanał nie wpływa istotnie na straty ciepła ponieważ jest zamknięty okapem.
DOMY Z WIZJA
Dodano : 26/6/2013
Strych ponad poddaszem ma wymiar podłogi 3,63m x 15,05m, maksymalna wysokość w linii kalenicy to 167cm.
Elżbieta
Dodano : 25/6/2013
Pięknie :) Tylko jak sprawdza się odwodnienie w deszczowe dni? Pozdrawiam
Administrator
Dodano : 25/6/2013
Bardzo dobrze:), systemy odwodnienia zarówno części dachu płaskiego jak i spadzistego wykorzystują sprawdzone i istniejące od wielu lat rozwiązania technologiczne. Nie ma tam elementów nietypowych, które mogłyby powodować kłopoty eksploatacyjne.
DOMY Z WIZJA
Dodano : 25/6/2013
Zarówno kolektory słoneczne jak i kominek z płaszczem wodnym stanowią jedynie opcje do wyboru. W zakładce ROZWIĄZANIA ENERGOOSZCZĘDNE znajdują się krótkie charakterystyki poszczególnych instalacji, zachęcamy do zapoznania się z nimi.
DOMY Z WIZJA
Dodano : 25/6/2013
Jak tylko dokumentacja zostanie ukończona, prosimy o wyrozumiałość.
DOMY Z WIZJA
Dodano : 18/6/2013
Nad poddaszem użytkowym jest strych, który można wykorzystać np. do przechowywania przedmiotów. Wejście jest zlokalizowane na antresoli komunikacyjnej przy pomocy klapy z rozkładanymi schodami. Maksymalna wysokość strychu na linii kalenicy to ok.165cm
Kamil
Dodano : 18/6/2013
Kiedy można spodziewać sie kosztorysu? Pozdrawiam i gratuluje projektu...
Administrator
Dodano : 18/6/2013
Niebawem, prosimy o cierpliwość.
filip
Dodano : 17/6/2013
Czy można zamiast garażu zrobić salę kinową a na tarasie zamknięty basen ?
Administrator
Dodano : 17/6/2013
Z salą kinową nie będzie problemu, nie rozumiem do końca gdzie chciałby Pan umieścić ten basen? na dachu garażu ??
Iza
Dodano : 06/6/2013
Witam, Mam pytanie dotyczące kuchni. Czy byłaby możliwość, aby wysoką zabudowę umieścić po drugiej stronie ( na ścianie łączącej kuchnię z pokojem) , a w miejscu zabudowy wstawić duże okno, takie jak w jadalni? Kuchnia byłaby wówczas o wiele lepiej doświetlona. Wyspę odwróciłabym wówczas o 180 stopni, aby hokery, stały przy oknie. pozdrawiam
Administrator
Dodano : 06/6/2013
Oczywiście, jak najbardziej, tak na marginesie taki był nasz pierwotny zamysł tzn. duży poziomu pas przeszklenia obejmujący jadalnię i kuchnię, ale ze względu na konieczność ograniczania kosztów realizacji zredukowaliśmy jego wielkość do jadalni.
RADEK
Dodano : 05/6/2013
Witam, Projekt bardzo przypadł mi do gustu. Moje pytanie dotyczy adaptacji projektu. Czy istnieje możliwość poszerzenia kuchni o 1,5 m kosztem pokoju/gabinetu i umiejscowienie w zamian łazienki. I zamiast obecnej łazienki i schowka umieścić schody. i czy nad garażem istnieje możliwość stworzenia sypialni z osobistą garderobą i łazienką oraz z wyjściem na mały taras .
Administrator
Dodano : 05/6/2013
Kuchnię można poszerzyć kosztem gabinetu, zmianę usytuowania schodów również chociaż jest to istotna zmiana konstrukcyjna i funkcjonalna, która będzie miała wpływ na cały podział poddasza. Zdecydowanie nie polecam dobudowywania kolejnej kondygnacji nad garażem bo to kompletnie zmienia koncepcję całego budynku i wymaga zaprojektowania go od nowa.
Sebastian
Dodano : 05/6/2013
Witam, czy Państwo może planują projekt "stodoły" + klocek gdzie na piętrze będą normalne okna a nie dachowe? Pozdrawiam
Administrator
Dodano : 05/6/2013
Niewykluczone, ponieważ taka forma pojawiała się już w naszych planach na przyszłość.
Tomasz
Dodano : 16/5/2013
Witam, Projekt zapiera dech w piersiach :) Mocno doświetlona sypialnia na parterze z narożnym oknem oraz garderobą i łazienką - marzenie. Niestety projekt dla bezdzietnej pary jest zbyt duży. Zastanawiam się czy istnieje możliwość zrezygnowania z piętra przy zachowaniu parteru bez zmian? Rozumiem, że bryła domu nie będzie już tak okazała a nowy projekt będzie zupełnie inny ale czy jest to w ogóle możliwe? Pozdrawiam serdecznie
Administrator
Dodano : 16/5/2013
Rezygnacja z samego piętra nie wchodzi w grę, nie tyle ze względów estetycznych co funkcjonalnych, bo po takim zabiegu powstałby całkiem duży dom z ...dwoma pokojami, a na takie rozwiązanie raczej nie byłoby zbyt wielu chętnych:) Na pocieszenie dodam, że wkrótce planujemy wprowadzić do oferty niewielki dom parterowy o pow. ok. 140m2, który będzie miał podobne rozwiązanie strefy masterbedroom.
Marcin
Dodano : 15/5/2013
Witam serdecznie, Projekt świetny! Oboje z żoną od razu się nim zachwyciliśmy! Ponowię pytanie o kosztorys? Czy już wiadomo kiedy będzie?
Administrator
Dodano : 15/5/2013
Już niebawem, wiemy, że Państwo się niecierpliwią, ale chcemy to zrobić rzetelnie, a przez to nie da się tego wykonać tak szybko jakbyśmy chcieli i jak tego Państwo oczekują.
rafał
Dodano : 14/5/2013
Jaki to dokładnie model drewnianej podłogi jest na parterze?
Administrator
Dodano : 14/5/2013
Do wykonania aranżacji wnętrz naszych domów rzadko wykorzystujemy materiały konkretnych producentów, zazwyczaj są to textury tworzone przez nas w kolorze i fakturze, które wg nas odpowiednio oddają ducha naszej wizji projektowej.
Elżbieta
Dodano : 30/4/2013
Witam , czy jest jakaś wersja z podpiwniczeniem?Jestem bardziej zainteresowana przebudową tego co jest i adaptacją pod ten projekt - stąd moje zapytanie. Pozdrawiam
Administrator
Dodano : 30/4/2013
Nie mamy takiej wersji, ale podpiwniczenie można wykonać na etapie adaptacji projektu do warunków miejscowych oczywiście jeśli warunki gruntowe są sprzyjające, dlatego przed podjęciem decyzji o podpiwniczeniu należy bezwzględnie wykonać badanie gruntowe w planowanym miejscu posadowienia budynku.
Małgorzta
Dodano : 25/4/2013
Witam, Projekt jest bardzo oryginalny i faktycznie jedyny w swoim rodzaju. My już jesteśmy w tarkcie budujowy Naszego domku - Stylowy 2 (także jest cudowny-polecam) ale mimo tego mam pytanie dot: wizualizacji kuchni w tym projekcie. Jeżeli nie stanowi to "tajemnicy handlowej: to z jakiej firmy zaczerpnięty jest pomysł mebli kuchennych i stołu w jadalni - oczywiście w tym projekcie (nowoczesny 1), pozdrawiam
Administrator
Dodano : 25/4/2013
Kuchnia nie jest wzorowana na konkretnym producencie, ale raczej ogólnie inspirowana bieżącymi trendami projektowymi. Producenci tego typu zabudowy np. firma Bulthaup są jak na Polskie warunki abstrakcyjnie drodzy, dlatego większość projektantów wnętrz posiłkuje się indywidualnymi pracowniami stolarskimi, które mogą wykonać na wzór dowolne meble. Jeszcze parę lat temu to stanowiło problem jakościowy i technologiczny, ale w chwili obecnej dobra firma stolarska potrafi wykonać bez problemu tego typu kuchnie. Stół to produkt szwajcarskiej firmy Willisau, a krzesła to oczywiście klasyk czyli Eames chair.
Tomasz
Dodano : 21/4/2013
witam, kiedy bedzie dostepny kosztorys?
Administrator
Dodano : 21/4/2013
Rzetelny kosztorys można wykonać jedynie na podstawie kompletnej dokumentacji, a ta jest jeszcze na etapie opracowania dlatego proszę jeszcze o odrobinę cierpliwości, jak tylko kosztorys będzie dostępny poinformujemy o tym na naszym profilu facebook-owym.
Tomasz
Dodano : 07/4/2013
Witam i gratuluje projektu. Naprawdę jeden z lepszych jakie znalazłem. Jednak mam pytanie..czy możliwe jest aby boczna ściana garażu, łazienki i garderoby były po stronie północnej? Znalazłem działkę o takim właśnie położeniu. Proszę o ewentualne sugestie. Pozdrawiam Tomasz.
Administrator
Dodano : 07/4/2013
Takie zorientowanie działki względem stron świata umożliwia wykorzystanie tego projektu, ale raczej w wersji lustrzanej. Wprawdzie duże przeszklenie w jadalni będzie od strony północnej, ale za to narożnik tarasowy od strony najbardziej nasłonecznionej czyli południowo-zachodniej. Ogólnie tego typu położenie będzie korzystne dla większości pomieszczeń: kuchnia, gabinet, wejście od wschodu, salon, pokoje dzieci i strefa masterbedroom od południowego-zachodu i zachodu. Od lokalizacji budynku względem stron świata bardziej istotne przed zakupem działki jest znajomość przypisanych do niej warunków administracyjnych, czyli potocznej WZ-ki lub wypisu z miejscowego planu zagospodarowania przestrzennego bo to właśnie one zadecydują czy będzie Pan mógł zrealizować ten projekt na wybranej działce.
kasia
Dodano : 27/3/2013
Państwa projekty są genialne !!! Nie ma drugiej takiej pracowni. Pomimo tego że już buduje ( skromniejszy dom ), to uwielbiam zaglądać na Waszą stronę i nie ukrywam że prawie za każdym razem " pieję z zachwytu ". Pozdrawiam
Administrator
Dodano : 27/3/2013
Dziękujemy za ciepłe słowa i serdecznie zapraszamy do oglądania i komentowania nowych propozycji.
Jarek
Dodano : 19/3/2013
Kiedy pojawi sie kosztorys?
Administrator
Dodano : 19/3/2013
Projekt jest wysyłany do firmy kosztorysującej po opracowaniu kompletnej dokumentacji, a ta jest jeszcze na etapie opracowania. Mamy nadzieję, że pojawi się nie później niż za cztery tygodnie.
Iza
Dodano : 17/3/2013
Świetny projekt. Na taki właśnie czekałam. Brakowało mi projektu dla rodziny z 3 dzieci, sypialnią na parterze i w miarę dużą kuchnią ze spiżarnią. Jestem tylko ciekawa tych skosów - może dałoby radę wrzucić jakąś wizualizację pomieszczenia na piętrze:) Ja również zmieniłabym blachę np. na płytkę klinkierową lub drewno (cedr), ponieważ dom chciałabym urzędzić nowocześnie, ale z domieszką shabby chic. Teraz tylko wystarczy przekonać męża, że potrzebujemy nowy dom...:) pozdrawiam
Administrator
Dodano : 17/3/2013
Być może uda nam się przygotować jedną taką wizualizację. Proszę się zupełnie nie martwić o poddasze tego domu, przy kącie nachylenia połaci 45 stopni oraz wysokiej ściance kolankowej skosy nie są odczuwalne. Zmiana materiału elewacyjnego jest jak najbardziej możliwa. Jedną z zalet tego projektu jest jego uniwersalność wykończenia. Bryłę główną można otynkować i przekryć płaską dachówka zakładkową, można ją wykończyć również płytkami / płytami włóknocementowymi lub drewnem. Forma tego domu dobrze komponuje się z każdym materiałem stosowanym w nowoczesnej architekturze.<br /> Trzymamy kciuki za przekonanie Męża, to głównie dzięki wytrwałości i determinacji Kobiet powstaje tyle nowych domów w naszym kraju:)
marta
Dodano : 13/3/2013
Rewelacja! Nie macie sobie równych! :) Keep it up! pozdrawiam
Aneta
Dodano : 13/3/2013
Projekt fantastyczny,,,,ja już buduję Z Charakterem 4 ale chyba bym się pokusiła na ten projekt ! Pozdrawiam
Sebastian
Dodano : 13/3/2013
Projekt genialny, jak zobaczyłem Atrakcyjny 1 to on mnie powalił, chociaż denerwował mnie tym że na dole było wszystko w jednym ciągu i nie było widocznych granic co gdzie się co kończy a inne zaczyna. Tu rewelacja zakątki i zakamarki dużo by opisywać jedyne co mi nie pasuje to ta blacha na elewacji jakoś nie jestem fanem tego gdyby je zastąpić elewacja z Prostego 1 to dom marzenie. Więcej takich projektów z Waszego biura.
DOMY Z WIZJA
Dodano : 12/3/2013
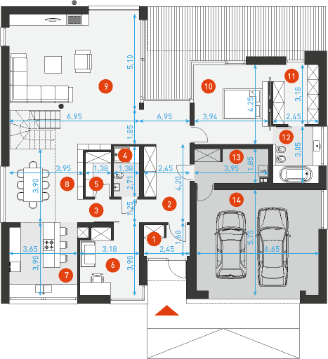
Zapraszamy do zapoznania się z nową propozycja naszej pracowni. Dom "Nowoczesny 1" wyróżnia się współczesną formą oraz bogatym programem pomieszczeń. Parter budynku obejmuje część dzienną domu oraz dużą i wygodną strefą masterbedroom ulokowaną od strony ogrodu. Na poddaszu znajdują się 3 pokoje. Charakterystycznym elementem wnętrza tej rodziny projektowej jest pustka nad jadalnią. Zapraszamy również do obejrzenia drugiej, pomniejszonej wersji tego domu.
Dodaj opinię