- Projekty domów
- Popularne
- Wielkość
- Kondygnacje
- Garaż
- Dach
- Działka
- Rodzaj zabudowy
- Inne kategorie projektów
- Projekty domów dla developera
- Projekty domów z pompą ciepła
- Projekty domów z rekuperacją
- Projekty domów z ogrzewaniem podłogowym
- Projekty domów z wyspą kuchenną
- Projekty domów z antresolą
- Projekty domów z wnętrzami
- Projekty domów z poddaszem do adaptacji
- Nietypowe projekty domów
- Projekty domów z płytą fundamentową
- Projekty premium
- Panoramy
- Realizacje
- Centrum informacji
- Dla dewelopera
- Kontakt



















Komentarze
Beata
Dodano : 01/5/2017
Bardzo proszę o wiadomość jaki rodzaj paneli zastosowana do wykończenia elewacji przy oknie, czy jest to drewno?
Administrator
Dodano : 01/5/2017
Tak, jest to romboidalny profil drewniany.
Edyta
Dodano : 01/3/2017
Witam, Czy ktoś może buduję dom po trasie Olsztyn-Warszawa-Łódź ? albo gdzie indziej :) Jeżeli tak i można by było zerknąć na dom, pomieszczenia w środku i poradzić się przed ostatecznym wyborem to będę bardzo wdzięczna, proszę o informację na priv edyta.liberdalowicka@gmail.com Dziękuję
Michał
Dodano : 04/11/2016
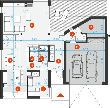
Witam, Na wstępie chciałbym pogratulować świetnych projektów. Mam pytanie, czy jest możliwe, aby przy rezygnacji z garażu dwu-stanowiskowego na rzecz jedno-stanowiskowego oraz rezygnacji z korytarza oraz gabinetu na parterze ( w jego miejscu umieścić wejście do budynku), zmieścić projekt na działce o szerokości 18 metrów?
Administrator
Dodano : 04/11/2016
Oczywiście taka zmiana jest możliwa. W przypadku jej wprowadzenia należy zastanowić się nad zasadnością lokalizacji wc i spiżarni w obecnym miejscu. Po likwidacji gabinetu można spróbować ulokować oba pomieszczenia w jego miejscu ponieważ podcień wejściowy nie musi być tak szeroki. Można rozważyć również lokalizację wc w części garażowej z jednoczesnym wygospodarowaniem miejsce na garderobę.
Paulina
Dodano : 05/10/2016
Czy jest możliwość pomniejszenia garażu na jednostanowiskowy ze względu na wąską działkę oraz zmianę kąta nachylenia dachu na 30 ?
Administrator
Dodano : 05/10/2016
P. Paulino o ile zwężenie garażu nie stanowi żadnego problemu to zmiana kąta nachylenia dachu już tak. Do założonej formy budynku 30 stopni to stanowczo za mało. Po takiej modyfikacji dom straci właściwe proporcje i nie będzie wyglądał dobrze.
maciek
Dodano : 02/10/2016
Dzień dobry, Mam 2-pytania: 1. Czy jest możliwość powiększenia garażu? 2. Czy jest możliwość umiejscowienia kominka w środku domu tak by komin nie był na zewnętrznej ścianie (ze względu na zalecenie by komin był ciepły)
Administrator
Dodano : 02/10/2016
1. Można, ale z technicznego punktu widzenia na pewno łatwiej go poszerzyć niż pogłębić. 2. Przewód spalinowy do kominka jest ciepły ponieważ komin systemowy jest usytuowany wewnątrz budynku i jest izolowany termiczne tak jak cały budynek. Dlatego pomimo tego, że jest przy ścianie zewnętrznej to nie można przyjąć, że jest zimny.
Paulina
Dodano : 16/9/2016
Czy jest szansa przerobić suszarnię/pralnię na poddaszu na oddzielną łazienkę zintegrowaną z sypialnią i garderobą? Może odbyć się to kosztem powierzchni sypialni
Administrator
Dodano : 16/9/2016
Oczywiście, taka modyfikacja nie stanowi większego problemu.
Krzysiek
Dodano : 08/8/2016
Czy mogę prosić o kontakt od osób, które są w trakcie budowy lub zakończyły ten projekt w okolicach Wrocławia.
Maciej
Dodano : 12/6/2016
Witam, kończymy NOWOCZESNEGO 2 na śląsku - jak ktoś jest zainteresowany to zapraszam do kontaktu. I pytanie do biura - co to za stół w jadalni?
Administrator
Dodano : 12/6/2016
Stół jest firmy Willisau: http://www.willisau-switzerland.ch/en/ niestety bardzo drogi. Polecamy za to ciekawe stoły w znacznie przystępniejszej cenie dostępne w Moma Studio: http://www.momastudio.pl/meble/stoly/stoly-prostokatne-kwadratowe
Marcin
Dodano : 05/5/2016
Czy skrzydło drzwi wejściowych ma 2,40m wysokości, czy jest przewidziana jakaś nadstawka w projekcie? Mam problem ze znalezieniem sprzedawcy takiego gabarytu.
Administrator
Dodano : 05/5/2016
Drzwi są wysokie ponieważ ich górny poziom określa podział elewacji wyznaczony w tym przypadku przez bramę garażową. Wprawdzie w projekcie nie przewidujemy górnego naświetla, ale jego ewentualne wykonanie nie wpłynie negatywnie na wygląd domu. Zazwyczaj drzwi tej wysokości wykonuje firma dostarczająca stolarkę. W takiej sytuacji często zamiast drzwi pełnych stosuje się ramę z przeszkleniem w środku, tak jak w drzwiach balkonowych.
Zofia
Dodano : 05/4/2016
Czy istnieje możliwość wygospodarowania piwnicy (o powierzchni pomieszczeń 9, 10, 11) z osobnymi schodami w kotłowni?
Administrator
Dodano : 05/4/2016
Jak najbardziej, podpiwniczyć można każdy budynek, o ile pozwalają na to warunki gruntowe. Zawsze przed podjęciem decyzji o wykonaniu piwnicy należy wykonać badania gruntowe, które m.in. określą rodzaj gruntu i występujący w nim poziom lustra wody. Jeśli grunt jest przepuszczalny, a woda nisko to można bez przeszkód zrealizować podpiwniczenie.
Marcin
Dodano : 25/3/2016
W Płocku i okolicach budują się 3 takie domy.
Dawid
Dodano : 18/3/2016
Czy ktos wybudowal ten projekt ? Zdjecia, szczegolowe wymiary. Chce sprawdzic czy zmiesci sie na dzialce
Arek
Dodano : 18/3/2016
Witam, Jako żywo zainteresowany Państwa projektem chciałem dodać swoją opinię nt rolet. Rzeczywiście podane przez Państwa argumenty przeciw roletom są trafne jednak zostaje jeszcze temat zacieniania okien w czasie upałów z czym mamy ostatnio do czynienia dość często oraz chyba najważniejsza rzecz to taka, iż latem słońce wstaje ok godz 4:30 -5:00. Ci z Państwa , którzy mają sypialnie od wschodu wiedzą o czym mówię..a zasłon na wizualizacjach nie widać... Swoją drogą w przypadku rezygnacji z rolet polecam zasłony z hoteli ***** , są genialne
Administrator
Dodano : 18/3/2016
P. Arku temat ochrony przed słońcem pozostawiamy projektantom wnętrz. Mogą to by zasłony , żaluzje wewnętrzne lub rolety, wybór dowolny wg indywidualnych preferencji i potrzeb. Z osłon zewnętrznych promujemy jedynie żaluzje elewacyjne, ale te muszą być uwzględnione na etapie projektowania. W tej wersji projektu nie proponujemy żaluzji ponieważ wg naszej oceny poziomy układ żaluzji "kłóci się" z wertykalnie ułożonym drewnem, dlatego do zacienienia sugerujemy raczej wewnętrzne zasłony lub rolety.
Marcin
Dodano : 12/3/2016
Maciej, poważnie zastanawiam się nad tym projektem. Jestem ze śląska. Gdybym mógł zobaczyć ten dom, ułatwiłoby mi to decyzję. Na jakim jesteście etapie?
Sławek
Dodano : 01/3/2016
Witam, Bardzo podoba mi się ten projekt i mam pytanie czy ktoś z Was buduje / wybudował taki dom ? Jeśli tam proszę o kontakt. Dzięki! PS wiecie, że zawsze jest dobrze zobaczyć budynek :)
Sandra
Dodano : 02/12/2015
Witam, Bardzo podoba mi się ten projekt. Czy ktoś z Was wykonał taki dom ? Jeśli tam proszę o kontakt. Pozdrawiam Sandra
Marcin
Dodano : 12/11/2015
Mam pytanie czy posiadacie Państwo projekt / kosztorys budowy domu pokrytego dachówką ? Rozumiem, że dość wysoka cena tak małego dachu wynika z zastosowanych materiałów i jestem ciekawy ile można zaoszczędzić korzystając z innego rozwiązania ?
Administrator
Dodano : 12/11/2015
Na wizualizacjach rzeczywiście tego nie widać, ale ta wersja projektu jest właśnie pokryta dachówką. Ewentualne oszczędności można uzyskać wybierając tańszy model niż przewidziany w projekcie.
Marcin
Dodano : 12/11/2015
Maciej, zdecydowaliście się na jakieś przeróbki ?
Maciej
Dodano : 02/11/2015
Do Grzegorza - my stawiamy na śląsku. Jak masz pytania to wal jak w dym
Grzegorz
Dodano : 23/6/2015
Witam. Bardzo interesuje nas ten projekt. Nie mniej mamy kilka pytań do właścicieli. Czy ktoś się ujawni gdzie taki dom postawił?
Bartek
Dodano : 29/10/2014
Dla mojej działki wydano warunki zabudowy z ograniczeniem wysokości gzymsu do 5 m. Czy ten projekt spełnia to wymaganie? Gdzie jest ten "poziom gzymsu" w przypadku dachu zlicowanego z elewacją?
Administrator
Dodano : 29/10/2014
Spełnia, w tym przypadku można przyjąć , że tzw. "gzyms" będzie linią na wysokości 467 cm, na której zaczyna się obróbka blacharska zlicowanego ze ścianą okapu.
Paweł
Dodano : 13/8/2014
Witam! Zastanawiamy się z żoną nad wyborem Nowoczesny 1, a Nowoczesny 2, z tą różnicą, że marzy się nam wielka piwnica (w warunkach i w MPZP jest zgoda na podpiwniczenie). Borykałem się już z problematyką garażu umiejscowionego w gruncie ze stromym podjazdem. Czas ułatwić sobie życie! Czy w Nowoczesnym 1 lub 2 można umiejscowić piwnicę pod częścią mieszkalną i czy kondygnacja piwniczna musi posiadać okna? Czy całą budowlę można wykonać tak aby ściany zewnętrzne były tylko ścianami nośnymi (tzn same mury bez żadnych ścian działowych)? Pozdrawiam i z góry dziękuję za wyczerpującą odpowiedź
Administrator
Dodano : 13/8/2014
Możliwość wykonania piwnicy jest głównie zależna od warunków gruntowych panujących na Pana działce. Piwnica nie musi posiadać okien jeśli nie będzie tam pomieszczeń przeznaczonych na stały pobyt ludzi. Przy istniejącej rozpiętości budynku może być trudne zaprojektowanie stropów tylko na ścianach zewnętrznych, na pewno będą musiały pojawić się podciągi dla oparcia i uzyskania sztywności oraz najprawdopodobniej 1 lub 2 słupy.
Michal
Dodano : 29/7/2014
Witajcie, kilka pytan odnosnie projektu: 1. Brakuje mi w tym projekcie wiatrolapu. Czy mozna wobec tego wydluzyc garaz do przodu (ktory swoja droga jest maly) i na wzor Nowoczesnego 1 zrobic wiatrolap? 2. Zastanawiam sie dodatkowo nad lekkim poszerzeniem garazu, tak zeby moc swobodnie parkowac motocykl. Czy takie operacje zabuza ogolny zamysl budynku i jakie moga byc dodatkowe koszty z tego tytulu? 3. Czy w przypadku zastosowania wen. mech z rekuperacja zniknie komin przy kuchni? Czy Wasz projekt rekuperacji uwzglednia gruntowy wymiennik ciepla? 4. Czy ten dom wraz z rekuperacja spelnia standard NF40? Interesuje mnie dofinansowanie z NFOŚiGW. 5. Czy Wasze kosztorysy sa relalne? Slyszalem, ze biura projektowe celowo zanizaja koszty, zeby przyciagac klientow. Pozdrawiam i z niecierpliwoscia czekam na odpowiedz, gdyz chcialbym jeszcze w tym roku rozpoczac budowe.
Administrator
Dodano : 29/7/2014
1. Można doprojektować wiatrołap. 2. Garaż również można poszerzyć, każdy dodatkowy m2 pow. użytkowej budynku to ok. 2500-2800 zł do stanu deweloperskiego. 3. Tak, większość kominów wentylacji grawitacyjnej będzie zbędna, ale przy kuchni pozostanie kanał do podłączenia okapu. Nasz projekt wentylacji nie uwzględnia GWC. 4. Żeby to sprawdzić trzeba wykonać oddzielny audyt w oparciu o metodologię obliczeniową zgodną z założeniami tego programu. 5. Realne, jako jedyna pracownia nie podajemy fikcyjnych kosztów tzw. systemem gospodarczym. Proszę jednak zwrócić uwagę na koszty wykończenia, my podajemy je w standardzie minimalnym. Jeśli zależy Panu na wysokim standardzie koszty wykończenia znacznie wzrosną.
Katarzyna
Dodano : 27/6/2014
Witam, Czy jest możliwość rezygnacji z dwustanowiskowego garażu i umiejscowienie kotłowni np. w miejscu łazienki na dole? Łazienkę natomiast ulokować np. w miejsce spiżarni. Uprzejmie proszę o odpowiedź. Dziękuję i pozdrawiam.
Administrator
Dodano : 27/6/2014
To jest możliwe pod warunkiem zastosowania jako źródła ogrzewania pieca gazowego lub pompy ciepła, które nie wymagają dużej powierzchni gospodarczej.
Rafal
Dodano : 01/4/2014
Witam, ponownie pisze do panstwa z prosba uzyskania odpowiedzi odnosnie producenta okapu umieszczonego na wizualizacji kuchni. Dziekuje i pozdrawiam
Administrator
Dodano : 01/4/2014
To okap podsufitowy firmy Falmec model Nuvola.
Kasia
Dodano : 28/3/2014
Witam, mam pytanie, w Państwa projektach nie widzę nigdzie rolet zewnętrznych. Z czego to wynika? Generalnie słyszałam, ze to taki "plastik fantastk", ale jednak rolety pełnią jakąś funkcję - tym bardziej przy domu bez okapowym? Pytanie czy nie zmieni ogólnego designu? Jaka jest Państwa opinia? Pozdrawiam:)
Administrator
Dodano : 28/3/2014
Rolety spełniają dwie zasadnicze funkcje: po pierwsze jako ochrona antywłamaniowa po drugie jako element izolujący termicznie, oczywiście kiedy są rozwinięte bo wtedy między szybą a roletą tworzy się warstwa powietrza, która poprawia izolacyjność przegrody. Tyle jeśli chodzi o teorie, w praktyce wygląda to tak, że dla włamywacza roleta nie stanowi żadnej przeszkody więc w tej kwestii jej funkcja redukuje się do poprawienia nastroju właściciela domu. Dlatego o wiele lepszym rozwiązaniem są pakiety antywłamaniowe dodawane do stolarki, w tym np. czujniki szkła połączone z instalacją alarmową. Jeśli chodzi o poprawienie izolacyjności to ten argument miał znaczenie kilka lat temu kiedy standardowy współczynnik przenikalności dla okien wynosił 2,0. Teraz wszyscy producenci stolarki oferują w standardzie rozwiązania, które jakiś czas temu były zarezerwowane do produktów energooszczędnych, dlatego okna o współczynniku 0,8 nie są niczym nadzwyczajnym. Według naszej opinii w dzisiejszych realiach rolety nie mają racjonalnego uzasadniania dlatego nie stosujemy ich w większości naszych projektów.
Tomek
Dodano : 24/3/2014
Czy istnieje mozliwos adaptacji projektu (przy zachowaniu garazu dwustanowiskowego) tak aby szerokosc budynku wyniosla 15m?
Administrator
Dodano : 24/3/2014
Tylko pod warunkiem przysunięcia garażu do budynku i ulokowaniu strefy wejściowej w miejsce gabinetu.
Daniel
Dodano : 29/1/2014
Projekt bardzo fajny , rozmieszczenie pomieszczeń idealne , boję sie tylko braku okapu i tych obróbek na szczycie z kominem chodzi o brudzenie elewacji , a co jeśli wykonać normalny okap ?drugie pytanie odnośnie drewna na elewacji czy to jest jakieś konkretne rozwiązanie jeśli tak to podajcie producenta i co z bramą garażową czy to tylko na potrzeby wizualizacji czy można wykonać taką samą
Administrator
Dodano : 29/1/2014
Prawidłowo wykonany dach bezokapowy nie będzie sprawiał kłopotów eksploatacyjnych więc nie należy obawiać się tego typu rozwiązania. Na tym budynku można wykonać dach okapowy, ale to wymagałoby przeprojektowania elewacji i dostosowania jej wizualnie do bardziej tradycyjnego charakteru. Brama garażowa jest realnym rozwiązaniem, wszystkie elementy widoczne na wizualizacji mają odzwierciedlenie w dokumentacji projektowej.
Andrzej
Dodano : 28/1/2014
Witam Od dłuższego czasu obserwuję wasze projekty i muszę przyznać że chyba jedyni jesteście co robicie i widać w projektach zwykłe domy a jednocześnie nie zwykłe . Przestronne zrobione na nowy styl z elegancją wdziękiem . Jedno co mnie martwi to drogie te projekty ale jak coś ładne to rozumiem że warte tych pieniędzy i to nagroda za waszą prace włożona w takie projekty a dom powinno się budować raz . Naprawdę jesteście wspaniali i że wam się chce robić coś innego niż wszyscy inni to podziwiam i oby tka dalej .
Administrator
Dodano : 28/1/2014
Dziękujemy za pozytywną recenzje naszej pracy. Cieszymy się, że w ogólnym natłoku bylejakości i wtórności ktoś dostrzega nasz wysiłek i twórcze zaangażowanie.
Magda
Dodano : 01/10/2013
Witam , czy istnieje możliwość adaptacji tak aby można było zrobić wyjście na tras nad garażem ,np.z głównej sypialni ? i czy projekt da się zmniejszyć tak aby mógł powstać na działce o szer 22 m .. dodam również , że z niecierpliwością czekam na kosztorys tego projektu . .Pozdrawiam
Administrator
Dodano : 01/10/2013
Odradzamy modyfikację polegająca na wykonaniu wyjścia z sypialni głównej na dach garażu ze względów na znaczną ingerencję w konstrukcję budynku oraz problem ustawienia łózka. Niestety nie da się dostosować tego budynku do podanej szerokości działki bez istotnych zmian funkcjonalnych np. rezygnacji z jednego miejsca postojowego w garażu.
KarolinaM
Dodano : 29/8/2013
Witam, Piękny na zewnątrz, idealny wewnątrz! Jest tylko jeden mały problem.. Posiadamy działkę z wjazdem od południa. Czy istnieje zatem możliwość sprytnej adaptacji, by projekt pasował do takiej działki? Pozdrawiam
Administrator
Dodano : 29/8/2013
Proszę przesłać na adres mailowy Pracowni skan mapy działki oraz warunki zabudowy lub wypis z miejscowego planu zagospodarowania. Przeanalizujemy sytuację i doradzimy jakie są możliwości.
DOMY Z WIZJA
Dodano : 28/8/2013
W dniu dzisiejszym podmieniliśmy wizualizacje zewnętrzne domu. W związku z tym, że większość osób zainteresowanych tym projektem planowała likwidację blachy dachowej i elewacyjnej zdecydowaliśmy się nie tworzyć dodatkowej wersji tylko wprowadzić stosowną korektę dokumentacji. Wraz ze zmianą pokrycia dachowego oraz wyglądu elewacji zmodyfikowaliśmy również układ poddasza: garderoba przy sypialni rodziców została przeniesiona na prawą stronę, tak aby po ewentualnej adaptacji pralni na łazienkę rodziców można było stworzyć zamkniętą strefę masterbedroom. Rzut poddasza zostanie niebawem zaktualizowany. Opóźnienie publikacji kosztorysu oraz dostępności dokumentacji wynikają właśnie z powodu powyższych zmian. Projekt i kosztorys będą dostępne za ok. 2 tygodnie
Marta
Dodano : 14/8/2013
WITAM PONOWNIE chciałabym się dowiedzieć czy okna widoczne na wizualizacjach i te które będą uwzględnione w kosztorysie to te same okna. Ponieważ Państwa pracownia współpracuje z firma INTERNORM to ciekawa jestem czy w kosztorysach uwzględniane są produkty tej właśnie firmy. Rozwiązanie z przesuwnymi oknami o duzych przeszkleniach i wąskich konstrukcjach ościeznicy dodatkowo ze schowanymi okuciami jest BARDZO ATRAKCYJNE. Pytanie czy uwzględniacie to w kosztorysie.pozdrawiam
Marta
Dodano : 05/8/2013
witam mam nadzieję, że zmiany elewacyjne będa jedynymi, wnętrze bowiem oceniam jako doskonałe. Jedyne o co chcę dopytać to czy z kotłowni można zrobić pomieszczenie kotrłownia-pralnia, a co za tym idzie zamienić pralnię na piętrze w 2-gą łazienkę do której wejście byłoby z sypialni. Konsekwencją takiej zmiany dla mnie byłaby jeszcze konieczność przesunięcia garderoby. Gdyby mogłaby to być jedynie ścianka bez dzwi byłoby super. A zatem wejście do łazienki przez garderobę. pozdrawiam, Marta ps czekamy niecierpliwie na modyfikacje
Administrator
Dodano : 05/8/2013
Na chwilę obecną poza zmianą materiału dachowego i elewacji nie rozważamy innych modyfikacji, aczkolwiek ta wspomniana przez Panią polegająca na wydzieleniu strefy masterbedroom z przejściową garderobą jest godna uwagi:) Wracając do tematu pralni, jej przeniesienie do kotłowni jest możliwe pod warunkiem zastosowania pieca "czystego" czyli gazowego. Kocioł na paliwo stałe ze względu na "brudną" eksploatacje raczej wyklucza taką adaptacje. Można natomiast zastanowić się nad wydzieleniem oddzielnej pralni w miejscu obecnej garderoby przejściowej z garażu. Kotłownia może być dostępna tylko z garażu, a wejście do domu można zrobić bezpośrednio do holu naprzeciwko szaf.
KAROLINA
Dodano : 02/8/2013
Witam, Czy przy tej wielkości i takim usytuowaniu kotłowni możliwe jest zastosowanie ogrzewania na paliwo stałe jak np węgiel? I czy istnieje możliwość zrobienia wejścia do tej kotłowni od zewnątrz?
Administrator
Dodano : 02/8/2013
Jak najbardziej w tej kotłowni można umieścić piec na dowolne paliwo stałe. Nie ma również żadnego problemu z wprowadzeniem dodatkowych drzwi na elewacji bocznej.
Marta
Dodano : 26/7/2013
witam czy zatem przy założeniu , że opracowana zostanie kosztowo niższa alternatywna wykonania budynku, udostępniona zostanie również wizualizacja kolejnego wariantu "Nowoczesnego"?
Administrator
Dodano : 26/7/2013
Oczywiście, ponieważ zmiany na elewacji nie ograniczą się wyłącznie do likwidacji blachy, na pewno zajdzie konieczność wprowadzenia pewnych akcentów dla zróżnicowania ścian szczytowych i wyodrębnienia podziałów elewacji.
Marta
Dodano : 17/7/2013
witam kiedy będzie kosztorys? Projekt jest przecudny, pasuje nam idealnie ale boimy się, że koszty wybudfowania będą zblizone do Atrakcyjnego 1 lub wyższe....Spodziewamy sie ok 550 tyś ...czyli stanowczo za dużo. Kiedy będziemy mogli Panowie projektanci zweryfikować nasze przypuszczenia z rzeczywistościa ? :-)) pozdrawiam,
Administrator
Dodano : 17/7/2013
Kosztorys będzie dostępny dopiero za ok. miesiąc. Nie chcemy w tym momencie spekulować o kwocie realizacji , ale na pewno elementem budynku , który może ją znacznie podwyższyć jest pokrycie z blachy, dlatego po opracowaniu i analizie kosztorysu nie wykluczamy wprowadzenia do sprzedaży tańszej alternatywy z dachówką i elewacją tynkowaną. Racjonalność takiego wariantu uzależniamy od wysokości różnicy w kosztach realizacji, jeśli będzie duża na korzyść dachówki to na pewno wprowadzimy taką wersję.
Adam
Dodano : 17/6/2013
czy planujecie kolejne projekty z użytkowym piętrem o powierzchni użytkowej 100-120m2
Ewa
Dodano : 12/6/2013
Witam, również interesuje mnie jak technicznie możliwe jest uzyskanie elewacji drewnianej zlicowanej z bramą garażową w tym samym materiale. Bardzo jestem zainteresowana tym projektem, ale wiem, że gdyby brama garażowa była cofnięta(jak większość bram występujących na rynku), to cały efekt byłby mierny. Czy w ogóle istnieje taki system zlicowany ze ściną i otwierany w górę? czy może w projekcie budowlanym już będzie brama cofnięta
Administrator
Dodano : 12/6/2013
Konstrukcja bramy jest wysunięta poza obręb ściany konstrukcyjnej na dystansownikach. Nie jest to standardowe rozwiązanie, ale będzie uwzględnione w projekcie. Model trójwymiarowy jest przygotowywane na podstawie detali technicznych dlatego większość rozwiązań widocznych na wizualizacjach jest zgodnych z dokumentacją.
Krzysztof
Dodano : 06/6/2013
Czy projekt znajduję się już w bieżacej sprzedaży?
Administrator
Dodano : 06/6/2013
Projekt jest jeszcze na etapie opracowania.
Darek
Dodano : 29/4/2013
Witam, w nawiązaniu do pytania Małgorzaty do projektu Nowoczesny 1, jak również pytania Magdy poniżej, ja również chciałbym dopytać o materiał zastosowany na bramie garażowej, jak również z tyłu domu na ścianie pomieszczenia gospodarczego - kotłowni. Tonacja sygeruje kolor dąb bielony, jeśli to nie tajemnica handlowa, czy zdradzilibyście Państwo jaki to materiał? Dom rzeczywiście rewelacyjnie prezentuje się jako połączenie blachy tytanowo-cynkowej, białego tynku i tego materiału.
Tomasz
Dodano : 09/4/2013
Witam i pytam ponownie,czy możliwe jest aby boczna ściana garażu, łazienki i garderoby (lub kotłowni jak w tym projekcie) były po stronie północnej? Znalazłem działkę o takim właśnie położeniu. Proszę o ewentualne sugestie.
Administrator
Dodano : 09/4/2013
Takie zorientowanie działki względem stron świata umożliwia wykorzystanie tego projektu, ale raczej w wersji lustrzanej. Wprawdzie duże przeszklenie w jadalni będzie od strony północnej, ale za to narożnik tarasowy od strony najbardziej nasłonecznionej czyli południowo-zachodniej. Ogólnie tego typu położenie będzie korzystne dla większości pomieszczeń: kuchnia, gabinet, sypialnia i wejście od wschodu, salon i pokoje dzieci od południowego zachodu. Od lokalizacji budynku względem stron świata bardziej istotne przed zakupem działki jest znajomość przypisanych do niej warunków administracyjnych, czyli potocznej WZ-ki lub wypisu z miejscowego planu zagospodarowania przestrzennego bo to właśnie one zadecydują czy będzie Pan mógł zrealizować Nowoczesnego 2 na tej działce.
Magda
Dodano : 09/4/2013
WITAM. MAM PYTANIE ODNOSNIE MATERIALU Z JAKIEGO WYKONANA JEST BRAMA GARAZOWA ? WYKORZYSTANE W PROJEKCIE MATERIALY WYKONCZENIOWE (CHODZI MI O WIZUALIZACJE)SA ABSOLUTNIE TRAFIONE W 100% PYTANIE CZY SA OGOLNODOSTEPNE? BO BEZ NICH TRZEBA PRZYZNAC ZE DOM WIELE BY STRACIL
Krzysztof
Dodano : 05/4/2013
Czy wiadomo kiedy ukaże sie kosztorys i rysunki szczegółowe do tego projektu. Czy ktos zakupił już ten projekt?
Administrator
Dodano : 05/4/2013
Pracujemy nad tym, projektu jeszcze nikt nie zakupił bo jest nadal w fazie opracowywania. Już wkrótce zostanie wprowadzony do bieżącej sprzedaży.
Mariola
Dodano : 15/3/2013
Bardzo dziękuje za odpowiedz.Faktycznie usytuowanie budynku jest ważnym aspektem finansowym.No cóż poczekam na wizualizację Komfortowego.Jednak mam kolejne pytanie:jak mozna rozwiązać problem braku zadaszenia od strony północnej w Komfortowym?
Administrator
Dodano : 15/3/2013
Można to zrobić modyfikując geometrię dachową, mieliśmy nawet koncepcję takiej wersji, ale uznaliśmy, że nie ma sensu powiększać kosztów inwestycji znacznie większym dachem jeśli główny taras musi być zlokalizowany od południa. Tak więc wykonanie podcienia od strony północnej jest możliwe, ale powinno być to rozwiązanie indywidualne.
Mariola
Dodano : 14/3/2013
Witam ponownie ,mam pytanie,czy blacha na elewacji może zostać zastąpiona tynkiem tak jak w np.Prostym?czy jest możliwość wstawienia drzwi wyjściowych w pomieszczeniu kotłowni od strony ogrodu ,no i najważniejsze ,czy ten projekt spełnia wymogi dla wjazdu od strony południowej(zaznaczam że od strony północnej mam przepiękna ścianę lasu i chcę się nią cieszyć z perspektywy tarasu) .Pozdrawiam serdecznie
Administrator
Dodano : 14/3/2013
Blacha na elewacji oczywiście może zostać zastąpiona tynkiem, można również wykonać drzwi wyjściowe z kotłowni, ale sugerujemy umieszczenie ich raczej na elewacji bocznej niż ogrodowej. Niestety ten dom nie nadaję się na działki z wjazdem od południa, w takim usytuowaniu strefa tarasowa będzie w ciągłym zacienieniu, a duże przeszklenia zorientowane na północ będą wychładzały budynek. Czasami inwestorzy mimo wszystko decydują się na takie niekorzystne położenie domu, ale zazwyczaj robią to ze świadomością niedogodności jakie będą z tym związane.
DOMY Z WIZJA
Dodano : 12/3/2013
Prezentowany projekt jest pomniejszoną wersją "Nowoczesnego 1". W celu zredukowania powierzchni użytkowej budynek został zmniejszony w obrysie zewnętrznym. Układ funkcjonalny również został podporządkowany redukcji powierzchni, dlatego sypialnia główna została przeniesiona na poddasze bryły głównej.
Mariola
Dodano : 12/3/2013
Witam serdecznie ,jak zwykle gratulacje za cudeńko,warto było poczekać i nacieszyć wzrok.Teraz czas na wizualizację Komfortowego. Mnie osobiście każdy Wasz projekt wprawia w osłupienie,jesteście najwspanialszym zespołem w necie.Jeszcze raz gratulacje pozdrawiam serdecznie
Administrator
Dodano : 12/3/2013
Dziękujemy za entuzjastyczną opinię. Wszystkie pozytywne sygnały, które do nas docierają dają ogromną satysfakcję i motywację do dalszej pracy. Wizualizacje Komfortowego powinny pojawić się na stronie pod koniec przyszłego tygodnia, obecnie nad tym pracujemy.
Dodaj opinię