- Projekty domów
- Popularne
- Wielkość
- Kondygnacje
- Garaż
- Dach
- Działka
- Rodzaj zabudowy
- Inne kategorie projektów
- Projekty domów dla developera
- Projekty domów z pompą ciepła
- Projekty domów z rekuperacją
- Projekty domów z ogrzewaniem podłogowym
- Projekty domów z wyspą kuchenną
- Projekty domów z antresolą
- Projekty domów z wnętrzami
- Projekty domów z poddaszem do adaptacji
- Nietypowe projekty domów
- Projekty domów z płytą fundamentową
- Projekty premium
- Panoramy
- Realizacje
- Centrum informacji
- Dla dewelopera
- Kontakt













Komentarze
Piotr
Dodano : 23/7/2017
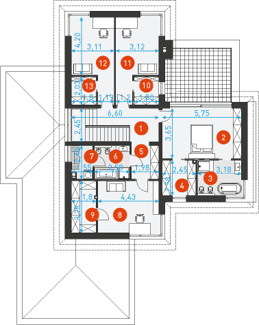
Witam, czy jest możliwe, aby bazując na tym projekcie uzyskać dodatkowo "wysoki sufit" (czyli przestrzeń) nad jadalnią lub salonem? Chodzi o pewne podobieństwo do rozwiązań z innych Państwa projektów, lecz z zachowaniem tej samej ilości i powierzchni pomieszczeń co właśnie w projekcje "Wyjątkowy 1". Pozdrawiam.
Administrator
Dodano : 23/7/2017
Niestety bez redukcji liczby pomieszczeń i zmiany układu funkcjonalnego na poddaszu nie da się tego wykonać.
Aneta
Dodano : 08/5/2017
Czy w tym projekcie można zastosować stolarkę z aluminium? jaką mają Państwo opinię na temat stolarki aluminiowej z ciepłym montażem do domku jednorodzinnego?
Administrator
Dodano : 08/5/2017
Jak najbardziej, jeżeli to będą profile aluminiowe o wysokiej izolacyjności cieplnej to nic nie stoi na przeszkodzie.
Darek
Dodano : 08/5/2017
Czy da się w ramach adaptacji przenieść garaż z przed budynku na jego lewą stronę (w wersji lustrzanej) tak aby lepiej przystosować projekt do płytkiej ale szerokiej działki ? Kotłownia straciłaby wyjście na zewnątrz ale nie jest to problemem.
Administrator
Dodano : 08/5/2017
Można, nie stanowi to problemu technicznego. Należy jedynie prawidłowo zaprojektować elewację frontową domu.
Arek
Dodano : 16/3/2017
Witam, planujemy z żoną budowę tego domu. Jeżeli ktoś chciałby udostępnić zdjęcia z realizacji tego projektu będę bardzo wdzięczny:) kontakt: arek.jakubowski6@wp.pl
Katarzyna
Dodano : 18/11/2016
Witam. Niewątpliwym atutem projektu są jego duże okna. Zastanawiam się czy jest miejsce na montaż rolet zewnętrznych chowanych pod tynkiem?
Administrator
Dodano : 18/11/2016
W większości okien parteru byłaby możliwość zastosowania rolet w ociepleniu, poza narożnym przeszkleniem jadalni, tam nie ma miejsca pod płytą stropową żeby umieścić skrzynki rolet. My ogólnie nie jesteśmy zwolennikami rolet ze względu na to, że jako zabezpieczenie antywłamaniowe nie stanowią żadnego problemu do obejścia i o wiele lepszym rozwiązaniem są pakiety antywłamaniowe np. z czujnikiem szkła i szybą bezpieczną. Ponadto, producenci stolarki robią obecnie tak ciepłe okna, że ewentualny argument izolowania roletami stracił na znaczeniu. Uważamy, że całkiem duży koszt rolet automatycznych lepiej przesunąć na dodatkowy pakiet antywłamaniowy przy zakupie stolarki.
Damian
Dodano : 20/10/2016
Witam. Jestem zainteresowany budową tego domu.Czy ktoś chciałby pochwalić się zdjęciami z realizacji budowy tego projektu ? info na maila: stolar2_81@o2.pl
Piotrek
Dodano : 16/10/2016
Witam Planuje budowę tego domu. Czy ma może ktoś zdjęcia z realizacji? Jeśli tak to proszę o przesłanie na adres piotrekm130@op.pl Z góry bardzo dziękuję. Pozdrawiam
Mariusz
Dodano : 18/8/2016
Piękny projekt
Konrad
Dodano : 11/5/2016
Witam, Czy jest może ktoś z okolic Warszawy, kto buduje ten domek i chciałby pokazać jak wygląda w rzeczywistości? Jeżeli tak to proszę o kontakt: kondik@go2.pl Byłbym bardzo wdzięczny! Z góry dziękuję za odzew i pozdrawiam, Konrad
Andrzej
Dodano : 14/4/2016
Mam pytanie czy podcień nie zabiera światła i w związku z tym jadalnie nie jest zbyt ciemna,
Administrator
Dodano : 14/4/2016
Bez obaw, okna w jadalni są naprawdę duże i jest tam wystarczająca ilość światła.
Damian
Dodano : 16/2/2016
Witam. Czy ktoś chciałby pochwalić się zdjęciami z realizacji budowy tego projektu ? :) info na maila: damian.1234@op.pl
Anne
Dodano : 26/1/2016
Wspaniały projekt ponadczasowej, eleganckiej rezydencji. Wyrazy uznania dla architektów za stworzenie czegoś tak ponadprzeciętnego. Idealny projekt! PS. Wielka prośba do architektów o dodanie wizualizacji wnętrz tego projektu.
Administrator
Dodano : 26/1/2016
Dziękujemy za pozytywną opinię, jak tylko czas pozwoli przygotujemy wizualizacje wnętrz. Ze względu na to, iż projekt cieszy się dużym powodzeniem, niewykluczone, że pierwszy pokaże się materiał z realizacji:)
Anna
Dodano : 13/1/2016
Witam! Rowniez kupilismy projekt i juz jestesmy na etapie fundamentow. Prosze o maila pania Iwone i Joanne aby wymienic opinie na temat projektu :)
Damian
Dodano : 11/1/2016
Czy jest możliwość usunięcia ściany pomiędzy pokojem a garderobą od frontu? Czy w tym miejscu jest jakis bal lub cos?
Administrator
Dodano : 11/1/2016
To jest ścianka działowa i można ją bez problemu usunąć powiększając tym samym pokój. Jedyna zmiana, jaką należy wykonać przy okazji likwidacji ścianki, to przeniesienie kanału wentylacji grawitacyjnej garażu w inne miejsce.
Kosztorysant
Dodano : 05/10/2015
Super projekt - jeden z ładniejszych budynków w naszej karierze - niesamowicie elegancki i przestronny ! Pokłony dla Domy z Wizją za tak dopracowany temat - w trakcie realizacji nie dostrzegliśmy żadnych błędów w projekcie i wszystkie roboty odbywały się płynnie! Firma House Technology jest w trakcie realizacji Wyjątkowy 2 - zainteresowanych zdjęciami i wyceną zapraszamy do kontaktu. www.house-technology.pl
DOMY Z WIZJA
Dodano : 29/9/2015
Poniżej link do relacji fotograficznej z montażu stolarki okiennej w jednej z realizacji tego projektu: https://www.facebook.com/media/set/?set=a.635013533265727.1073741853.294930433940707&type=3
Iwona
Dodano : 14/9/2015
Budujemy ten dom w wersji lustrzanej od maja 2015. Wprowadziliśmy drobne zmiany rozmieszczenia niektórych ścian działowych i drzwi do niektórych pomieszczeń (np. sypialni, aby nie było ono na wprost klatki schodowej). Obecnie jesteśmy na etapie przygotowania stropu nad drugą kondygnacją. Bardzo dużo czasu zajęło przygotowanie zbrojenia i wylanie stropu nad parterem. PS. Okna w tym domu będą naprawdę wielkie. :)
Monika
Dodano : 25/8/2015
Czy ktoś już może wybudował ten piękny dom i chciałby się pochwalić efektami? ;) Jeśli tak to proszę o info na maila nika235@op.pl ;) będę wdzięczna ponieważ chce kupić ten projekt ;)
Paweł
Dodano : 17/8/2015
Witam. Projekt domu zakupiłem pod koniec grudnia 2014. Wszystkie formalności trwały ok. 7 mc-y ale w końcu dzisiaj wbiłem łopatę :). Projekt optymalny do potrzeb, szalenie praktyczny no i przede wszystkim elegancki bez zbędnych fajerwerków .... Pozdrawiam z Lublina wszystkich posiadaczy w/w projektu.
Martin
Dodano : 23/6/2015
Kiedy bedzie gotowy kosztorys drodzy panstwo ? P.S Piekny dom
Administrator
Dodano : 23/6/2015
Kosztorys już jest dostępny.
Joanna
Dodano : 05/5/2015
Witam, kupliliśmy ten projekt i po niewielkich zmianach adaptacyjnych jesteśmy na etapie wyboru ekipy budowlanej. Szkoda, że zakładka kosztorys jest wciąż pusta (byłoby to jakieś odniesienie). Chętnie nawiążemy kontakt z osobami budującymi Wyjątkowego 1 :)
MARLENA
Dodano : 29/11/2014
Witam,serdecznie.Przepiękny dom, dużo przestrzeni,funkcjonalne rozmieszczenie powierzchni.Długo szukałam właściwego projektu.Ten wydaje się optymalny.Ale dla upewnienia się ,czy mogę prosić o przesłanie na e-maila mniejszej wersji? Z góry bardzo dziękuję.
Agnieszka
Dodano : 15/11/2014
Witam. Projekt świetny, jak zresztą większość waszych projektów :) Niestety dla mnie również ta wersja jest zbyt duża. Bardzo proszę o przesłanie mniejszego wariantu. Pozdrawiam
Administrator
Dodano : 15/11/2014
Mniejsza wersja już od pewnego czasu jest dostępna na stronie :)
Kamil
Dodano : 05/10/2014
Witam! Projekt domu spełnia wszystkie moje oczekiwania względem domu :) Super rozkład pomieszczeń! Jak większość tutaj czekam by zobaczyć wersję pomniejszoną. Można prosić o maila z rzutami? :)
Katarzyna
Dodano : 05/10/2014
Witam, ja również bardzo długo szukałam projektu domu dla mojej rodziny i znalazłam.... Wyjątkowy 1. Jest bardzo ładny, funkcjonalny, zadaszony taras, zabudowany górny balkon rewelacja, tylko troszeczkę za duży. Czy jest możliwość otrzymania rzutów mniejszej wersji na maila?
Małgosia
Dodano : 05/10/2014
Witam, super projekt, piękny dom :) Czytam w komentarzach, iż jest nowa mniejsza wersja tego projektu, czy ja również mogłabym prosić o przesłanie rzutu na maila?
Grzegorz
Dodano : 08/9/2014
Witam Czy macie państwo zdjęcia z fizycznie wybudowanego domu? Czy można było by go gdzieś obejrzeć? Wszystkich sympatyków tego projektu bardzo serdecznie pozdrawiam...
Magda
Dodano : 08/8/2014
Witam, bardzo długo szukałam odpowiedniego domu dla mojej rodziny. Ponieważ zawodowo zajmuję się projektowaniem wnętrz od wielu lat, doświadczenie powoduje, że funkcjonalność i praktyczność musi iść dla mnie w parze z idealnym wyglądem i estetyką - wasze projekty właśnie takie są! Jesteście chyba jedyną pracownią, która to wszystko tak doskonale łączy. Obecnie pracuję nad projektem wnętrz PROSTEGO1, natomiast WYJĄTKOWY1 urzekł mnie osobiście. Kiedy pojawi się kosztorys oraz mniejsza wersja tego domu, bo jestem zainteresowana? Pozdrawiam serdecznie i gratuluję WIZJI!
Administrator
Dodano : 08/8/2014
Dziękujemy za pozytywną opinię. Projekt mniejszej wersji opublikujemy na stronie niebawem. Opóźnienie było spowodowane ciągłymi udoskonaleniami drugiego wariantu, z którego nie byliśmy do końca zadowoleni. Po ostatnich korektach układu funkcjonalnego i wyglądu bryły koncepcja uzyskała docelowy kształt i teraz pracujemy nad materiałami prezentacyjnymi dlatego prosimy o cierpliwość. Tak jak do tej pory osobom zainteresowanym wysyłamy rzuty na maila.
Agnieszka
Dodano : 07/8/2014
Witam, Bardzo podoba mi się ten projekt i od pewnego czasu go śledzę i mam pytanie odnośnie zdjęć z aranżacji wnętrz kiedy można ich się spodziewać?jednak bardzo ułatwiają wybór:).Gratuluje i Pozdrawiam.
Martyna
Dodano : 02/6/2014
Witam:) Świetny projekt, to jest mniej więcej to czego szukałam tylko powierzchnia troszkę za duża:) Czy ja również mogłabym dostać rzuty nowej wersji na maila?
krzysztof
Dodano : 29/4/2014
witam, czy w mniejszej wersji tego projektu, bedzie mozna ulokowac garaz w z boku domu, tak aby miec jak najwiekszy ogrod z tylu? mamy szeroka dzialke, lecz niezbyt długą pozdrawiamy
Administrator
Dodano : 29/4/2014
Nowa mniejsza wersja ma garaż wbudowany w bryłę główną, a zatem cały dom jest krótszy o wysuniętą część garażową wersji "1".
Grzegorz
Dodano : 27/4/2014
Witam Bardzo spodobał nam się ten projekt. Jednak w planie zagospodarowania mamy warunek o kącie nachylenia dachu min 30 stopni. Czy jest to możliwe do zmiany? Kiedy możemy się spodziewać pomniejszonej wersji domu? Czy w tym projekcie jest możliwa zmiana tak aby gabinet na dole był równo ze ścianą garażu? (ograniczenie ze względu na szerokość działki). Bardzo dziękuję za odpowiedz i pozdrawiam wszystkich sympatyków tego projektu...
Administrator
Dodano : 27/4/2014
Zmianę kąta nachylenia dachu można wykonać na etapie adaptacji projektu do warunków miejscowych. Taka modyfikacja może się w tej wersji wiązać z koniecznością obniżenia dachu nad częścią garażową. W nowym wariancie ten problem nie występuję ponieważ fragment budynku obejmujący garaż i pokój gościnny został usunięty. Premiera projektu nastąpi niebawem tymczasem wszystkim zainteresowanym przesyłamy rzuty nowej wersji na maila.
Gosia
Dodano : 24/4/2014
Świetny projekt z niecierpliwością czekam na jego mniejszą wersję i kosztorys. Dobrze pomyślane spiżarki przy kuchni. Podzielam zdanie Pana Roberta w kwestii przedpokoju, mógłby być troszkę przestronniejszy kosztem pomieszczeń koło garażu. Reszta bez zastrzeżeń. Gratuluje projektu !!!
ROBERT
Dodano : 21/4/2014
Podoba mi się duża powierzchnia pomieszczeń przy wejściu.Trochę bym ją przerobił na większe przestronniejsze pomieszczenia. Taki dom nie może przedsionka w którym nie możemy swobodnie minąć się z gośćmi, a zimą rodzina ubiera się na sanki na raty bo się nie mieszczą gdy wypinają pupy zakładając buty. Zadaszony taras, w naszym klimacie to konieczność. Może kominek/grill dostępny od tarasu? Ilość pomieszczeń daje komfort 4 osobowej rodzinie. Babcia pilnując wnuków przenocuje na piętrze w pokoju z wejsciem na wprost ich wejść.
Aga i Seba
Dodano : 18/4/2014
Nam też bardzo się podoba, prosimy o więcej zdjęć i kosztorys. Dziękujemy i czekamy na więcej aby Nasza decyzja została podjeta już w 100% :) Czas goni,,, pozdrawiamy serdecznie
Marta
Dodano : 17/4/2014
Codziennie zaglądam na stronę czy pojawiło się więcej informacji dot. projektu tego domu, zwłaszcza jej mniejszej wersji.
Administrator
Dodano : 17/4/2014
Prosimy jeszcze o odrobinę cierpliwości, pracujemy nad tym. W tej chwili mamy już przybliżoną powierzchnię użytkową pomniejszonej wersji - wynosi ok. 210m2 + 38 m2 garażu oraz wymiary zewnętrzne: szerokość 14,75m i długość 15,85 m. Jak tylko zamieścimy projekt na stronie poinformujemy o tym na facebooku.
Kamil
Dodano : 16/4/2014
Doskonały, nowoczesny, funkcjonalny projekt, gratuluję! Kiedy można się spodziewać rysunków szczegółowych oraz wizualizacji wnętrz tego domku? Pozdrawiam.
Administrator
Dodano : 16/4/2014
Kosztorys pojawi się niebawem, na wnętrza niestety trzeba jeszcze trochę poczekać. Wszystkich zainteresowanych tym projektem informujemy, że wkrótce zaprezentujemy mniejszą wersję tego domu.
Marcin
Dodano : 07/4/2014
Gratuluję kolejnego udanego projektu. Ten akurat trafia 100% w nasze potrzeby. Mam w związku z tym pytania: • kiedy pojawi się kosztorys? • na projekcie pojawił się basen - czy możliwe jest również otrzymanie projektu tego basenu? • to samo tyczy się aranżacji kostki, zieleni, tarasu etc.
Administrator
Dodano : 07/4/2014
Kosztorys pojawi się najwcześniej za 2 tygodnie. Dokumentacja projektowa uwzględnia jedynie elementy związane bezpośrednio z budynkiem, czyli np. wejście do domu i taras od strony ogrodu. Pozostałe obiekty widoczne czasem na naszych wizualizacjach takie jak basen, mała architektura lub zagospodarowanie ogrodu leżą w gestii inwestora.
DOMY Z WIZJA
Dodano : 04/4/2014
Zapraszamy na premierę nowego piętrowego domu o nazwie Wyjątkowy. To projekt, którego pierwotna koncepcja przeszła chyba najdłuższą ewolucję w historii naszej pracowni. Pierwsze szkice powstały niemal 3 lata temu, potem przygotowaliśmy kilka kolejnych wersji, które nieustannie modyfikowaliśmy, aż do uzyskania finalnego zadowalającego nas efektu. Ostateczną formę i program funkcjonalny widoczny na stronie projekt otrzymał rok temu, a następnie przeleżał w naszych szufladach do dnia dzisiejszego. Cieszymy się, że koncepcja wytrzymała próbę czasu i teraz możemy ją Państwu zaprezentować.
Dodaj opinię