- Projekty domów
- Popularne
- Wielkość
- Kondygnacje
- Garaż
- Dach
- Działka
- Rodzaj zabudowy
- Inne kategorie projektów
- Projekty domów dla developera
- Projekty domów z pompą ciepła
- Projekty domów z rekuperacją
- Projekty domów z ogrzewaniem podłogowym
- Projekty domów z wyspą kuchenną
- Projekty domów z antresolą
- Projekty domów z wnętrzami
- Projekty domów z poddaszem do adaptacji
- Nietypowe projekty domów
- Projekty domów z płytą fundamentową
- Projekty premium
- Panoramy
- Realizacje
- Centrum informacji
- Dla dewelopera
- Kontakt

























Komentarze
Danuta
Dodano : 25/7/2017
Witam, czy istnieje możliwość udostępnienia zmiany o których wspomina Beata ·07.05.2015
Administrator
Dodano : 25/7/2017
Nie mamy opracowanej takiej modyfikacji, ale z opisu wynika, że jest to prosta zmiana i można ją bez problemu wykonać na etapie adaptacji projektu do warunków miejscowych.
Sylwia
Dodano : 03/7/2017
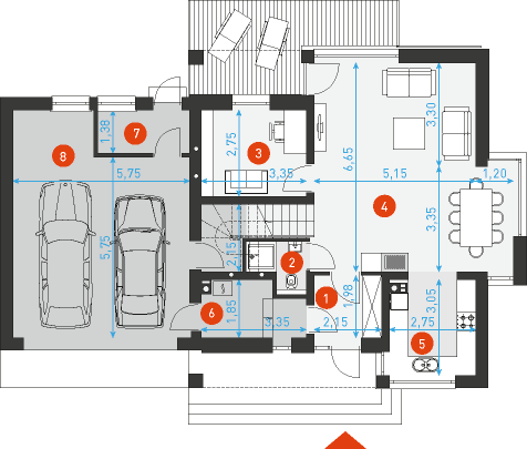
Witam, mogłabym prosić o wymiary dużego okna w kuchni?
Administrator
Dodano : 03/7/2017
210 x 150 cm.
Aga
Dodano : 19/4/2017
Dzień dobry, Proszę mi powiedzieć czy można zaadoptować garaż pod małe osobne mieszkanko? Czy jest szansa tak dostosować z zewnątrz żeby cała bryła tworzyła harmonijną całość?
Administrator
Dodano : 19/4/2017
Jak najbardziej. Przestrzeń garażu o powierzchni użytkowej dochodzącej do 40 m2 można bez problemu zaadaptować na dwupokojowe mieszkanie. Nie widzimy też ewentualnych problemów natury estetycznej z dopasowaniem elewacji garażu do pozostałej części budynku.
justyna
Dodano : 12/4/2016
Witam. czy ktoś z okolic Wrocławia buduje lub wybudował dom praktyczny 4 lub 4a i byłby skłonny go pokazać? proszę o kontakt jsloninska@gmail.com
Administrator
Dodano : 12/4/2016
Pani Justyno, poniżej wspominaliśmy, że na forum muratora jest bardzo rozbudowany wątek dotyczący całej rodziny projektów Praktycznych, tam na pewno szybciej znajdzie Pani osoby skłonne pokazać dom.
Piotrek
Dodano : 18/3/2016
Czy ktoś może polecić dobrego kierownika budowy w woj. mazowieckim? Czy ktoś wybudował ten projekt? Intensywnie myślimy z żoną o tym projekcie i wszelkie uwagi / wskazówki będą bardzo pomocne. Proszę o kontakt na loostro+projektyzwizja@gmail.com .
Administrator
Dodano : 18/3/2016
P. Piotrze odsyłamy na forum muratora, gdzie znajduje się bardzo rozbudowany wątek projektów z rodziny Praktycznych, tam najszybciej znajdzie Pan pomoc i poradę innych budujących.
Justyna
Dodano : 09/3/2016
Witam my budujemy dom w Opolu jesteśmy na etapie elektryki
Tomasz
Dodano : 21/7/2015
@BEATA dzięki za publikacje Twoich zmian! 1. Jakie są możliwości zmiany technologi ściany na jednowarstwowy mur z ytong energo gr. 48? Czy tego typu zmiana jest możliwa na etapie adaptacji? Czy jest to "prosta" zmiana? 2. Czy jest możliwość zmiany technologi stropu na strop gęstożebrowy teriva lub systemowy ytonga? Czy z jakiegoś konkretnego powodu zdecydowano się na strop monolityczny w tym projekcie? 3. Czy jest możliwość z punktu widzenia estetyki, przeniesienie komina spalinowego z kotłowni do pomieszczenia gospodarczego? (w celu przeniesienia kotłowni). W chwili obecnej oba kominy są symetryczne umieszczone względem lukarny i to raczej nie był przypadek. 4. W przypadku zamiany kotłowni na łazienkę, czy korzystnie byłoby dodać okno? A jeżeli tak, to jakie? 5. I ulubione pytanie architektów: o ile można podnieść ściankę kolankową aby nie zaburzyć proporcji budynku? I na koniec: świetne projekty, pierwszy raz po bardzo długich poszukiwaniach znalazłem projekty które mi się podobają. Czekam z niecierpliwością na następne projekty.
Administrator
Dodano : 21/7/2015
1. Ytong ma znacznie mniejszą wytrzymałość na ściskanie od zakładanego przez nas materiału dlatego jest to bardzo istotna zmiana konstrukcyjna, której nie polecamy 2. Zmiana na strop gęstożebrowy jest możliwa. 3. Komin można przenieść. 4. To zależy od rozplanowania łazienki 5. Typowa odpowiedź architektów: Najlepiej wcale nie podnosić! a jeśli już to maksymalnie na wysokość 10-15 cm wylewając wyższy wieniec.
Agnieszka
Dodano : 12/5/2015
Witam wszystkich. Czy ktoś może buduje ten dom w dolnośląskim lub opolskim i nie mial by nic naprzeciw aby zobaczyc na żywo z zewnatrz?
Beata
Dodano : 07/5/2015
My wprowadziliśmy kilka zmian: kotłownia przeniesiona do pomieszczenia za grażem, w miejscu pierwotnej kotłowni powstała łazienka z oknem. W pierwotnej łazience na dole przejscie do garażu, otwarte schody. Na poddaszu powiększyliśmy lazienkę kosztem garderoby, z mniejszej łazienki zrobiliśmy pralnię. W sypialni nad garażem po prawej stronie wydzieliliśmy garderobę. Reszta bez zmian.
Tomasz
Dodano : 16/3/2015
Witam. Czy ktoś buduje ten dom w okolicach Katowic ? Chciałem wprowadzić kilka zmian wewnątrz, dlatego chciałem zobaczyć go przed zakupem projektu. Bardzo rposzę o kontakt.
Grzegorz
Dodano : 25/12/2014
Witam Czy juz powstal nowy projekt praktyczy ze spizarka przy kuchni obiecywany byl ze powstanie w niedlugim czasie
Administrator
Dodano : 25/12/2014
Tak, przygotowaliśmy taki wariant w wersji 3 i 4 pod nazwą Praktyczna 3A i Praktyczny 4A. Projekty będą dostępne w sprzedaży lada dzień, tymczasem wysyłamy rzuty na maila.
Kasia
Dodano : 17/9/2014
Witam! Czy ktoś z Państwa buduje / wybudował ten projekt w okolicach Szczecina? Zastanawiamy się z mężem nad jego zakupem, wspaniale byłoby go zobaczyć na żywo. Z góry dziękuję za kontakt.
Łukasz
Dodano : 02/9/2014
Witam, Czy ktoś może pobudował Praktycznego 4 w okolicach Warszawy? Rozważamy z żoną zakup tego projektu, ale chcielibyśmy móc wcześniej obejżeć już dom postawiony. Proszę o mail na adres: lukasz . bednarski (at) gmail . com (w podanym adresie usunac spacje i (at) zamienic na @)
DOMY Z WIZJA
Dodano : 01/9/2014
Wszystkich zainteresowanych rodziną Praktycznych odsyłamy do bardzo licznej grupy budujących na Forum Muratora. Na pewno znajdą tam Państwo odpowiedzi na wszystkie pytania i wątpliwości.
Marek
Dodano : 22/7/2014
Witam, czy zrealizowali już Państwo projekt, który został wydłużony o wspomniane poniżej 90-120 cm? Jeśli tak, jak zmieniły się powierzchnie poszczególnych pomieszczeń?
kuba
Dodano : 13/7/2014
Witam, czy jest możliwość uzyskania w tym projekcie 37st kąta dachu, ponieważ w pzp taki jest minimalny??
Administrator
Dodano : 13/7/2014
Tak zmiana kąta nachylenia o dwa stopnie nie wpłynie znacząco na proporcje budynku.
andrzej zalewski
Dodano : 09/7/2014
Witam.Może ktoś wysłac pare fotek praktycznego 4,tzn chodzi mi jak wygląda projekt wykończony.W projekcie wygląda fajnie,ale czy również tak wygląda w realu???bede wdzięczny za info.Pozdrawiam
Sajmon
Dodano : 05/7/2014
Witam Czy ktoś buduje ten dom w okolicach Łodzi lub Warszawy. Podoba mi się ten projekt, jego nowoczesny wygląd. Chcę kupić ten projekt, jednak wymaga on troszkę zmian wewnątrz, dlatego chciałem zobaczyć go przed zakupem projektu. Pozdrawiam
Michał
Dodano : 21/6/2014
Witam Czy istnieje możliwość w ramach adaptacji likwidacja pokoju nad garażem i stworzenie w tym miejscu tarasu oraz przeniesienie kotłowni do pomieszczenia za garażem i jednocześnie powiększenie go o 1,5m (zrównanie z podcienią tak aby wejście było naprzeciwko wyjścia z salonu), powstało by wtedy fajne pomieszczenie gospodarcze z kotłownią 3,05m na 2,88m
seba
Dodano : 06/3/2014
Hej Andzi, dziękuję za odzew moj adres email to sebastian.bednarz@gmail.com czekam na kontakt :) pozdrawiam
Andzi
Dodano : 08/2/2014
w razie pytan prosze pisac andzidom@wp.pl co do zmian to rezygnacja z pokoju na dole ,wysuniecie sciany w str ogrodu i mamy duzy salon z dwoma oknami po 2,7 szer ,otwarcie schodow na salon ,uzyskuje sie duzo swiatła ,przestrzeni ktora my lubimy ,szkoda ze kuchni nie mozna powiekszyc ,ale mamy juz projekt i u nas zabudowa bedzie po dwuch stronach ,jedna wysoka ze sprzetami na prawo ,szafy po 2m ,str lewa niskie szafki ,pod oknem nie bedzie szafek ,projekt wyglada ciekawie ,u góry trzy sypialnie ,łazienka ,nad garazem pomieszczenie gosp-pralnia ,i obok gabinet ,zmien jest jeszcze pare ale to najwazniejsze ,ogolnie domek bardzo fajnie sie prezentuje ,polecamy
Andzi
Dodano : 26/1/2014
do Seba podaj email to sie odezwe :) budujemy 5 min od wrocławia kier wschód
Marcin
Dodano : 18/1/2014
Witam! Zainteresował mnie bardzo ten projekt. Prośba do Andzi o kontakt. Bardzo chcielibyśmy zobaczyć wprowadzone przez Was zmiany i oczywiście realizacje :-)
Hania
Dodano : 18/1/2014
Witam, realizujemy Praktyczny 4. Dodaliśmy drugie okno oraz garderobę w pokoju nad garażem na 1/3 powierzchni. Na dole zmieniliśmy kierunek schodów, łazienka pod schodami. Wejście do gabinetu na przeciw okna. Pomieszczenie za garażem przez całą jego szerokość.
seba
Dodano : 09/1/2014
Do Andzi, czy istnieje możliwość informacji od Was gdzie dokładnie pod Wrocławiem budujecie Praktycznego??? Też jesteśmy nim zainteresowani i jeżeli to nie byłby problem dla Was bardzo by nam zależało aby zobaczyć jak wygląda w rzeczywistości, coś podpytać itp. Będę wdzięczny za jakieś info na mejla np telefon pozdrawiamy sebastian
Monika
Dodano : 23/9/2013
Witam, Czy bylaby mozliwosc adaptacji tego projektu do szerokosci dzialki 22,25? Zalezy mi na posiadaniu garazu dwustanowiskowego. Dziekuje za odpowiedz!
Administrator
Dodano : 23/9/2013
To jest możliwe, ale pod warunkiem likwidacji bocznego okna w wykuszu jadalni oraz na ścianie szczytowej pomieszczenia nad garażem. Ponadto wykusz jadalni należy skrócić o 30 cm. Zmiany te umożliwią przysunięcie budynku do bocznych granic na odległość 3 m.
Andzi
Dodano : 13/9/2013
Witam budujemy nasz Praktyczny pod Wrocławiem ,my na dole zrezygnowalismy z gabinetu ,na górze chyba wszystkie pomieszczenia przeroblismy ,nad garazem bedzie pralnia i gabinet pozdrawiamy
Magda
Dodano : 22/8/2013
Witam, Mi również bardzo brakuje miejsca na spiżarkę przy kuchni, dlatego ze zeniecierpliwieniem czekam na kolejny wariant domu uwzględniający jego powiększego m.in o pomieszczenie gospodarcze. Pozdrawiam, Magda
Karolina
Dodano : 28/6/2013
Witam, Wizualnie projekt podoba mi sie najbardziej ze wszystkich, dlatego chcialabym sie dowiedziec czy powstaly jeszcze inne wersje o ktore juz pytano, np takie, ktore zawieraja spizarke i pomieszczenie gospodarcze na dole, i gdzie ewentualnie bryla budynku zostala rozciagnieta? Interesowalby mnie tez troche wiekszy gabinet, ktory bylby oddzielony od salanu lub wyguszony (miejsce na fortepian). Dziekuje
Administrator
Dodano : 28/6/2013
Niestety nie mamy przygotowanej takiej wersji, ale rzeczywiście zmiany, o których Pani wspomina jak np. rozciągnięcie budynku czy dodanie spiżarni są dosyć często wprowadzane dlatego nie wykluczamy powstanie nowego wariantu.
Piotr
Dodano : 29/4/2013
Witam Pisaliście Państwo o pojawieniu się wersji spełniającej warunki NF40 pod koniec I kwartału.Czy jest to tylko opuźnienie czy może zrezygnowaliście Państwo z publikacji tekiej wrsji Praktycznego 4?? Pozdrawiam Piotr
Administrator
Dodano : 29/4/2013
To jedynie opóźnienie, czekamy na materiały od firmy BuildDesk.
Patrycja
Dodano : 05/2/2013
Witam, Czy istnieje mozliwość obejrzenia wybudowanego domu. Będę bardzo wdzięczna za informację. Pozdrawiam Patrycja
Edyta - do Maja
Dodano : 16/1/2013
Witam, W jakim rejonie Panstwo buduja ten dom ? Wprowadzone zmiany sa interesujace i praktyczne ;-) Czy maja Panstwo jakies fotki w obecnym stanie ? Pozdrawiam, Edyata
Piotr
Dodano : 03/1/2013
Witam, Chętnie poznam odpowiedź na poniższe pytanie Pana Łukasza ponieważ czytałem, iż niektóre banki już planują wprowadzać kredyty połączone ze wspomnianymi dopłatami do budowanych domów energooszczędnych a odpowiednio dostosowane projekty będą wymogiem koniecznym uzyskania wspomnianej dopłaty. pozdrawiam, Piotr
Łukasz
Dodano : 02/1/2013
Witam. Projekt Praktycznego jak dla mnie rewelacja i pewnie mimo wszystko na niego się zdecyduję, póki co mam jeszcze jedno pytanie (na początek), od 2013 roku wchodzą dopłaty z NFOŚiGW na budowę domów energooszczędnych, moje pytanie, czy przewidują Państwo dostosowania (a może już jest) tego projektu do wymogów domu energooszczędnego. Pozdrawiam Łukasz
Administrator
Dodano : 02/1/2013
Obecnie wspólnie z firmą BuildDesk pracujemy nad przygotowaniem oferty projektów z dopłatą w kategorii NF40, NF15 nie planujemy. Oferta będzie obejmowała pakiet projektu podstawowego + projekt wentylacji mechanicznej oraz audyt informacyjny dla projektantów adaptujących jakie zmiany należy dokonać aby spełnić warunki programu dopłat. Ponieważ cały program zostanie uruchomiony najwcześniej pod koniec pierwszego kwartały, to również w tym okresie na naszej stronie powinna pojawić się oferta.
Maja
Dodano : 20/12/2012
Witam, od wiosny zaczynamy wykonczenie naszego Praktycznego 4. Wprowadzilismy toche zmian w projekcie: - powiekszenie kuchni o szafe, - przeniesienie samej toalety pod schody - zmiane kierunku schodow - grzwi do gabinetu na sciane na przeciwko okna - przez to z salonu nie na widoku na drzwi 3 szt drzwi a sciane mozna ciekawie zaaranzowac ... naszym zdaniem to byl duzy feler projektu ... - rezygnacja z 2 lazieniek na gorze - jedna duza podzielona na 2 strefy, - pralnia w mniejszej" lazience. Pytanie: - jaki jest podany orginalny kolor stolarki okiennej? (nazwa) - czy jest to taki jak na wizualizacji ?? Pozdrawiam:)
Administrator
Dodano : 20/12/2012
Proponowana przez nas kolorystyka jest opisana w projekcie w części architektoniczno-budowlanej na rysunkach elewacji. Są to oczywiście kolory konkretnych producentów, a nie wiem czy zdecydowali się Państwo na jednego z nich. Jeśli nie to prosimy o przesłanie na nasz adres mailowy informacji na temat wybranego producenta, pomożemy wybrać odpowiedni kolor.
Zbyszek
Dodano : 17/12/2012
Witam. Chciałbym dowiedzieć się w jaki sposób zrealizowano odwodnienie dachu znajadującego się nad wykuszem jadalni.
Administrator
Dodano : 17/12/2012
Jest to membrana dachowa EPDM balastowana żwirem, woda spływa poprzez wpust dachowy w warstwie izolacji termicznej do "rzygacza" a potem łańcucha.
Marcin
Dodano : 01/11/2012
Podoba się nam ten projekt jest jedna kilka rzeczy, które chcielibyśmy zmienić. Prosimy o informację czy można dokonać takich adaptacji: • wydłużyć bryłę domu (o ile maksymalnie) aby powiekszyć salon, jadalnię i kuchnię • zmienić klatkę schodową na szerszą i bardziej eksponowaną • w kuchni dodać spiżarkę • przenieść wyjście na taras z tyłu domu na bok domu od strony jadalni i salonu oraz dodać zadaszenie
Administrator
Dodano : 01/11/2012
Wszystkie zmiany są możliwe do wprowadzenia. Najpoważniejszą modyfikacją jest oczywiście wydłużenie bryły budynku i tutaj ze względu na możliwość zachowania konstrukcji stropu krzyżowo zbrojonego bez podciągów sugeruję maksymalne powiększenie o 90-120cm w osiach konstrukcyjnych. W kwestii pozostałych zmian: wygospodarowanie spiżarni pociągnie za sobą konieczność likwidacji szafy we wiatrołapie, zadaszenie nad przeniesionym wyjściem z salonu proponuję w formie przedłużenia dachu nad wykuszem jadalni. Schody można bardziej wyeksponować likwidując ścianę oddzielającą je od gabinetu tworząc w ten sposób otwarty aneks , który powiększy optycznie część dzienną domu. Funkcję pokoju gościnnego w takiej sytuacji może spełniać pokój nad garażem.
Ewa
Dodano : 17/10/2012
Czy mogłabym się dowiedzieć jakie są dokładne wymiary obrysu zewnętrznego budynku? pozdrawiam
Administrator
Dodano : 17/10/2012
Wymiary podane są na rzucie działki i w rysunkach szczegółowych dostępnych w bocznym menu. Jeśli ma Pani na myśli wymiary poszczególnych fragmentów budynku prosimy o kontrakt telefoniczny.
Kamil
Dodano : 08/10/2012
Jako, że jestem osobą wysoką ważna jest dla mnie wysokość ściany kolankowej - proszę o jej podanie. Niestety nie ma tej informacji w rysunkach szczegółowych :(
Administrator
Dodano : 08/10/2012
W głównej bryle budynku 105 cm, w części poddasza nad garażem 121 cm.
Patrycja
Dodano : 24/6/2012
Witam, Projekt super, domek nie tylko ładny w środku ale na zewnątrz również. Mam pytanie czy istnieje możliwość dokonania dwóch zmian: - na górze połączenie łazianek w jedną większą - zwiększenie kuchni. Pozdrawiam Patrycja
Administrator
Dodano : 24/6/2012
Funkcjonalne połączenie obu łazienek nie stanowi żadnego problemu, nie ma pomiędzy nimi żadnych elementów konstrukcyjnych. Niewielkie powiększenie kuchni można uzyskać poprzez likwidację szafy wnękowej we wiatrołapie. Jeśli jednak zależy Państwu na większej powierzchni to taka modyfikacja będzie jednoznaczna z wydłużeniem bryły części mieszkalnej domu.
Anna
Dodano : 28/5/2012
Witam, czy będzie można liczyć na jakąś realizację Praktycznego 4? Jestem bardzo ciekawa jak wygląda "na żywo" :)
Administrator
Dodano : 28/5/2012
My również oczekujemy na pierwsze zdjęcia z realizacji, a ponieważ ten projekt cieszy się ogromną popularnością wśród inwestorów mamy nadzieję, że nastąpi to niebawem.
Kasia
Dodano : 24/2/2012
Witam, bardzo mi się podoba ten projekt, jest prawie idealny, choć myślę, że wizualizacje robią swoje. Chciałabym się zapytać o możliwość takich zmian: 1. na parterze: w miejsce kotłowni zrobić garderobę a kotłownię przenieść za garaż, wyjście na taras zrobić od strony salonu i jadalni, a likwidując podcień powiększyć pokój na dole. 2. na pięrze: zamiast łazienek zrobić pokój a łazienkę z pralnią zrobić w miejscu pokoju nad wejściem.
Administrator
Dodano : 24/2/2012
Wszystkie proponowane przez Panią zmiany są możliwe do wprowadzenia przez lokalnego projektanta w ramach adaptacji projektu do warunków miejscowych. Zapraszam do działu Partnerzy gdzie można odszukać regionalne biura zajmujące się adaptacją.
Dodaj opinię