- Projekty domów
- Popularne
- Wielkość
- Kondygnacje
- Garaż
- Dach
- Działka
- Rodzaj zabudowy
- Inne kategorie projektów
- Projekty domów dla developera
- Projekty domów z pompą ciepła
- Projekty domów z rekuperacją
- Projekty domów z ogrzewaniem podłogowym
- Projekty domów z wyspą kuchenną
- Projekty domów z antresolą
- Projekty domów z wnętrzami
- Projekty domów z poddaszem do adaptacji
- Nietypowe projekty domów
- Projekty domów z płytą fundamentową
- Projekty premium
- Panoramy
- Realizacje
- Centrum informacji
- Dla dewelopera
- Kontakt


























Komentarze
Marta
Dodano : 31/10/2016
Jestem zakochana w tym projekcie domu, ale niestety nasza działka ma wjazd od południa. Wjazd teoretycznie można też zrobić od wschodu lub zachodu. Czy jest szansa na postawienie tego domu na działce z wjazdem od południa, żeby dalej był funkcjonalny?
Administrator
Dodano : 31/10/2016
Proszę wysłać skan mapy działki oraz WZ-kę, ewentualnie wypis z planu zagospodarowania przestrzennego. Sprawdzimy możliwości lokalizacji budynku.
Darek
Dodano : 02/5/2016
Witaj Aniu, widzialem, widzialem, ja ostatecznie zakupilem Atrakcyjny 1 ;)) Ci sami architekci robia mi adaptacje co developerowi z Lowieckiej
Anna
Dodano : 26/3/2016
@Darek: mysle, ze powinienes obczaic rejon ul. Łowieckiej w B-B, wg mnie jest tam kilka domow wg tego projektu.
Darek
Dodano : 19/8/2015
Witam, czy ktos budowal ten projekt w rejonie Bielska-Białej, bardzo chciałbym zobaczyć efekt końcowy na własne oczy, pozdrawiam Darek
Agnieszka
Dodano : 04/11/2014
Witam serdecznie, w przypadku chęci zastosowania wentylacji mechanicznej rury rozprowadza się najczęściej w podwieszanym suficie. W związku z tym wypada zapewne podnieść wysokość ścian. Mam pytanie - o jaką wartość należy podwyższyć ściany i co zrobić by zachować proporcje domu (dachu, stolarki okiennej)? Czy kupując projekt wentylacji mechanicznej z państwa pracowni w rzutach domu uwzględnione są zmiany wysokości?
Administrator
Dodano : 04/11/2014
W naszych projektach wentylacji mechanicznej maksymalnie redukujemy powierzchnię sufitów konieczną do podwieszenia instalacji. Zazwyczaj ogranicza się ona do pomieszczenia kotłowni, garażu i wiatrołapu. Główne piony nawiewne i wywiewne są prowadzone na poddasze nieużytkowe, a następnie sprowadzane punktowo na parter. Dzięki temu nie ma konieczności podwyższania stropu przy montażu rekuperacji.
Leon
Dodano : 07/3/2014
Czy sa jakies ograniczenia aby lazienke na pietrze wraz z pralnia przeniesc nad garaz? o czym nalezy pamietac?
Administrator
Dodano : 07/3/2014
Nie ma przeciwwskazań do przeniesienia obu pomieszczeń nad garaż. W takiej sytuacji można jedynie rozważyć nieco grubsze ocieplenie stropu w garażu oraz należy pamiętać by przewody wentylacji grawitacyjnej miały wywiewki wspomagane wyciągiem elektrycznym. Przy niewielkiej wysokości przewodu nie wytworzy się "ciąg" wentylacyjny i pomieszczenia będą wymagały ciągłego wietrzenia do odprowadzenia wilgoci. W przypadku zastosowania wentylacji mechanicznej ten problem nie występuje.
Marcin
Dodano : 07/12/2013
Witam, czy posiadają Państwo wersje projektu "praktyczny 3" bez zadaszonego garażu i czy istnieje możliwość przeniesienia kotłowni do pomieszczenia za garażem ?
Administrator
Dodano : 07/12/2013
Nie posiadamy takiej wersji, ale modyfikację tego typu można bez problemu wykonać na etapie adaptacji projektu do warunków miejscowych. Kotłownie można przenieść do pomieszczenia za garażem, pod warunkiem, że nie będzie to kocioł na paliwo stałe, który wymaga znacznie większej przestrzeni.
Łukasz
Dodano : 25/6/2013
Witam, chciałbym się dowiedzieć czy istnieje możliwość zaprojektowania balkonów na poddaszu z przodu i tyłu budynku?
Administrator
Dodano : 25/6/2013
Nie ma przeciwwskazań natury konstrukcyjnej do zaprojektowania balkonów. Można to bez problemu wykonać na etapie adaptacji projektu do warunków miejscowych.
Sylwia
Dodano : 14/6/2013
W jakim rozmiarze jest duże okno w kuchni? Po prostu piękne okno panoramiczne.
mimi
Dodano : 31/5/2013
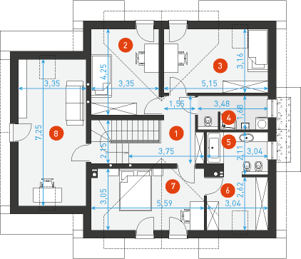
My dokonalismy sporo zmian bo uwazamy ze projekt nie do konca ma praktyczne rozwiazania: lazienki okropnie male, ciasne, nie praktyczne, dla osob o mini rozmiarach :). Wprowadzone przez nas zmiany to zabudowanie przejscia z garderoby do lazienki (obawa przed wilgocia), z garderoby zrobilismy lazienke z wanna, dzieki czemu mamy swoja lazienke przy sypialni. Obok lazienka z prysznicem. Idelane jak dla nas rozwiazanie, ja kocham wanne, maz prysznic. Z drugiej lazienki (wg projektu) zrobilismy wspolna garderobe. Pomysl wydaje nam sie bardzo udany, dlaczego? Bo po pierwsze garderoba ma sluzyc do przechowywania roznych rzeczy, a zamknieta w sypialni ograniczalaby ogolna dostepnosc. Pomysl super, prosta, szafa na calej dlugosci pomiesci wiele rzeczy. Drugie nie zaciekawe rozwiazanie to kotlownia, strasznie mala, na piec z grosikiem i boilerem na wode nie wystarczajaca. Powiekszylismy ja likwidujac prysznic na dole. Dodatkowy prysznic zbedna rzecz skoro w domu sa juz dwie lazienki. Zrobilismy scianke dzialowa od strony kotlowni dzieki czemu nam sie ona powiekszyla. A kibelek z umywalka nam na dole wystarczy. I ostatnia rzecz to zmiana okna stalego w salonie przy tarasie na drzwi rozsuwane. Proste wyjscie na taras, na kazdym robi wrazenie.
adrian
Dodano : 14/5/2013
witam chciałbym sie dowiedziec czy ten budynek mozna podpiwniczyc czesciowo lub na całosci.czyby to trzeba było zmieniac u was w biurze czy mozna to zrobic podczas adaptacji.
Administrator
Dodano : 14/5/2013
Ten budynek jak najbardziej można podpiwniczyć, ale racjonalność takiej modyfikacji jest uzależniona indywidualnymi warunkami gruntowymi, które należy bezwzględnie sprawdzić wykonując wcześniej badanie gruntowe. Takie badanie wykonują firmy geologiczne, polega ono na wykonaniu min. 2 odwiertów w planowanym miejscu posadowienia budynku na głębokość ok.5m. Jeżeli wyniki wykażą wysoki poziom lustra wody pod gruntem, lub na pewnej głębokości występowanie warstw nieprzepuszczalnych jak np. glina, które mogą powodować okresowe podnoszenia lustra wody nie należy projektować piwnicy bo jej prawidłowa izolacja będzie kosztowna i nie wyeliminuje w 100% późniejszych kłopotów eksploatacyjnych. Optymalnie takie badania powinny być wykonywane wiosną i jesienią kiedy wody w gruncie jest najwięcej. Badanie gruntu jest również konieczne ze względu na określenie parametrów jego nośności niezbędnych do zaprojektowania odpowiednich ław fundamentowych. Jeśli wyniki badań będą korzystne to można już bez problemu doprojektować piwnicę przy pomocy lokalnego projektanta w ramach adaptacji projektu do warunków miejscowych. Co do wielkości podpiwniczenia to jesteśmy zwolennikami wykonywania go tylko na ograniczonym fragmencie stosownie do potrzeb użytkownika, takie rozwiązanie jest jednak nieco trudniejsze wykonawczo bo wymaga wykonywania stóp fundamentowych schodkowych. Za duża piwnica może być przyczyną niepotrzebnego gromadzenia przedmiotów i tworzenia w domu zbędnej „rupieciarni”.
Marcin
Dodano : 26/4/2013
Czy technicznie jest mozliwe przeniesienie łazienek na górze do pomieszczenia 12.5m2 wg projektu. Głównie chodzi o podłączenie pionów kanalizacyjnych, czy będą miały własciwą przepustowość i spad przy założeniu że odpływy z budynku sa pod kuchnią?
Administrator
Dodano : 26/4/2013
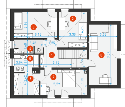
Oczywiście jest to możliwe, w budynku nie musi występować tylko jeden główny pion kanalizacyjny. W przypadku przeniesienia łazienki do jednego z pokoi tworzy się kolejny pion przy czym ze względów technicznych łatwiej jest go wykonać w pokoju od strony garażu niż nad salonem.
Mariusz
Dodano : 07/4/2013
Jaki jest przewidziany rodzaj pokrycia dla tego projektu tzn. blacha czy dachowka? Ewentualnie czy jest to jakis konkretny model/firma blachy lub dachówki? Czy możecie Państwo podać konkretny model? Na załączonym zdjęciu widać, że pokrywa się wykonanie z projektem i wyglada ciekawie :).
Marek
Dodano : 04/10/2012
Czy jest mozliwa adaptacja projektu do działki o szerokosci 21m?
Administrator
Dodano : 04/10/2012
Tak, ale pod warunkiem likwidacji okna na ścianie szczytowej garażu oraz skrócenia wykusza jadalni o 38 cm. Można również pozostawić jego obecny wymiar, ale to z kolei wymusi konieczność zamurowania dużego bocznego okna i pozostawienie tylko dwóch wąskich okien z przodu i tyłu wykusza. Po takich modyfikacji można umieścić budynek na działce w odległości 3 m do granicy po lewej i prawej stronie.
Paweł
Dodano : 01/8/2012
Witam. Czy w tym projekcie są przewidziane kolektory słoneczne? I czy projekt przewiduje ich montaż?
Administrator
Dodano : 01/8/2012
Dokumentacja projektowa tego domu nie uwzględnia paneli solarnych. Problem stanowi miejsce lokalizacji zasobnika wodnego, który wymaga dosyć dużo miejsca, W tym konkretnym przypadku w ulokowaniu bufora w pomieszczeniu gospodarczym przeszkadzają drzwi do garażu. Są dwa sposoby rozwiązania tego problemu, zasobnik można umieścić w pomieszczeniu pod schodami lub przenieść kotłownię do pomieszczenia za garażem, taki zabieg będzie wymagał przesunięcia drzwi do tego pomieszczenia w stronę szczytowej ściany garażu.
Ania
Dodano : 10/5/2012
witam, proszę o informację jakie okna są w łazienkach górnych .. ? wyglądają na nieotwierane .. zastanawiam się jak je myć :) pozdrawiam
Administrator
Dodano : 10/5/2012
Okna w łazienkach są otwierane.
Asia
Dodano : 04/5/2012
Czy w ramach dostosowania projektu jest możliwe wykonanie go bez garażu? A może przewidują Państwo sporządzenie takiego projektu?
Administrator
Dodano : 04/5/2012
Tego typu modyfikacja nie wymaga wykonywania oddzielnej wersji , po prostu na etapie adaptacji projektu do warunków miejscowych lokalny projektant wykreśla bryłę garażu na naszej dokumentacji.
Marcin
Dodano : 21/2/2012
witam, czy w kotłowni zmieści się piec na olej opałowy z pojemnikiem na olej? jeśli nie czy da się coś zmienić w projekcie pod tą metodę ogrzewania?
Administrator
Dodano : 21/2/2012
Utrudnieniem zainstalowania pieca na paliwo stałe może być przejście z garażu do kotłowni, komunikacja zabiera dosyć dużo miejsca z tego pomieszczenia, natomiast lokalizacja takiego kotła nie jest wykluczona. W takich przypadkach sugerujemy wysyłanie zapytań do producentów konkretnych modeli kotłów ponieważ poszczególne piece charakteryzuje się odmiennym wymiarami, wymaganiami powierzchniowymi oraz warunkami montażu.
Dodaj opinię